Pronájem nebytového prostoru • 76 m² bez realitkyWeiserstraße 28 Salzburg Schallmoos Salzburg 5020
Weiserstraße 28 Salzburg Schallmoos Salzburg 5020MHD 2 minuty pěškyWzhledem k nadcházejícímu odchodu do důchodu nabízím od 1. září 2025
BEZ PROVIZE
své obchodní prostory v bezprostřední blízkosti salzburského HLAVNÍHO NÁDRAŽÍ.
Obchodní prostory se nacházejí v přízemí obytného domu s celkem 42 byty a 3 dalšími komerčními prostory.
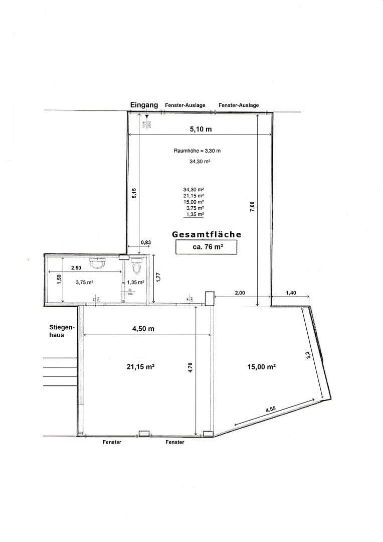
Celková obchodní plocha o rozloze cca 76 m² je rozdělena do 3 místností:
1. Prodejní místnost (cca 50 m²)
a
2. Kancelářské prostory (cca 21 m²) – tyto dvě místnosti jsou odděleny pouze provizorní příčkou, kterou lze v případě potřeby odstranit.
3. Skladovací místnost s připojením vody (resp. malá kuchyň o rozloze cca 5 m²) a WC (cca 1 m²)
K obchodním prostorům vedou 2 vstupní dveře: jedna z ulice a druhá (těžké bezpečnostní dveře) v zadním dvoře obytného domu resp. ve vstupní chodbě domu.
Skladovací místnost v obchodních prostorech je oddělena od kancelářských prostor bezpečnostními dveřmi.
Všechny výklady, dvě velká okna do dvora a vstupní dveře jsou navíc chráněny žaluziemi.
Celé obchodní prostory byly před několika lety pečlivě a nákladně kompletně zrekonstruovány: byly vyměněny veškeré elektrické kabely, zásuvky, vypínače, radiátory a dveře.
Podlaha byla pokryta kameninovými dlaždicemi.
Celý obchodní prostor byl nedávno nově natřen.
Byl instalován kabelový alarmový systém (který je nyní technicky zastaralý), ale stále funguje.
Nabízené obchodní prostory se vynikajícím způsobem hodí také jako kancelář.
Měsíční nájem činí 1.600,- EUR. Nájemce rovněž hradí provozní náklady, které momentálně činí cca 378,- EUR včetně DPH, přičemž obchodní prostory v posledních letech nebyly vytápěny. Bezprostředně pod obchodem se nachází topná místnost celého obytného domu, díky čemuž teplota v místnostech v zimě sotva klesá pod 19 stupňů.
P.S. Pro gastronomický provoz nevhodné.
Salzburg Schallmoos / Neustadt v bezprostřední blízkosti zadní části rozhlasové tabule salzburského hlavního nádraží, resp. cca 250 metrů od hlavního vchodu HBF Salzburg.
Cca 60 m ke zastávkám autobusů v obou směrech.
Cca 100 metrů k 24hodinově obsluhované policejní stanici.
Parametry nemovitosti
| Stáří | Nad 50 let |
|---|---|
| Číslo inzerátu | 972584 |
| Cena za jednotku | 21 € / m2 |
| Stav | Po rekonstrukci |
|---|---|
| Plocha nebytového prostoru | 76 m² |
Co tato nemovitost nabízí?
| Bezbariérový přístup | |
| MHD 2 minuty pěšky |
V okolí nemovitosti najdete
Stále hledáte to pravé?
Nastavte si hlídacího psa. Nabídky vybrané na míru dostanete souhrnně 1× denně e-mailem. S Premium profilem máte k ruce hlídačů rovnou 5 a když se něco objeví, informují vás obratem.























