
Prodej bytu 3+1 • 65 m² bez realitkyK. Světlé, Zlín - Prštné, Zlínský kraj
K. Světlé, Zlín - Prštné, Zlínský krajMHD 2 minuty pěšky • Částečně vybaveno • Parkování • Sklep 2 m² • Lodžie 4,2 m²Tato nemovitost již od 19 732 Kč měsíčně s roční úrokovou sazbou od 4,29 %.
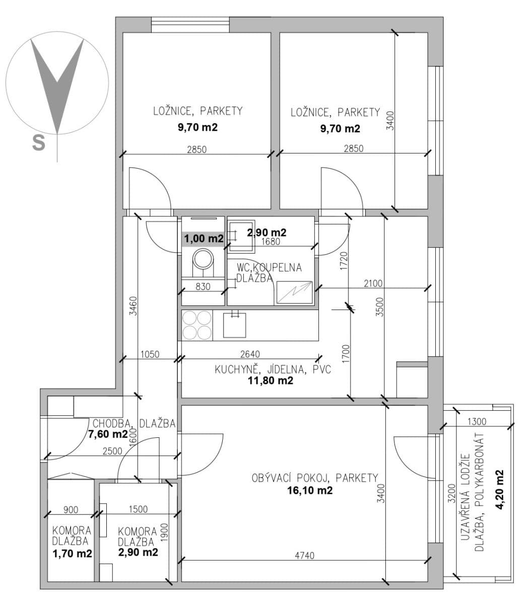
K prodeji nabízíme světlý byt 3+1 o podlahové ploše 65 m² s uzavřenou lodžií 4,2 m² a sklepem 2 m² v oblíbené zlínské lokalitě Podhoří. Byt se nachází ve 13. patře panelového domu s výtahem a díky jihozápadní orientaci nabízí dostatek denního světla a velmi příjemný výhled na Zlín a okolní krajinu.
Byt je v udržovaném stavu, s rekonstruovaným zděným jádrem (koupelna a samostatné WC jsou po rekonstrukci – obklady, dlažba, sprchový kout, umyvadlová skříňka), ostatní části bytu jsou vhodné k modernizaci podle vkusu nového majitele. Díky tomu je možné byt přetvořit přesně podle vlastních představ.
Mezi přednosti patří uzavíratelná lodžie o rozloze 4,2 m², která dodá prostoru svěžest a možnost relaxace a sklep o ploše 2 m², který je ideální pro uložení sezónních věcí či sportovních potřeb.
V obytných místnostech jsou původní dřevěné parkety, v předsíni a sanitě keramická dlažba, v kuchyni pvc. V bytě jsou plastová okna, topení je centrální dálkové. Vaření na plynu. Bytový dům je zateplený.
Parkování je zajištěno před domem, což výrazně usnadňuje každodenní pohodlí a mobilitu. Nemovitost se prodává v osobním vlastnictví. Energetický štítek budovy má hodnotu G (bude upřesněno).
Náklady na bydlení:
měsíční zálohy do SVJ činní cca 4.100 Kč (správa domu, fond oprav, teplo, teplá a studená voda, společná elektřina, služby správce)
zálohy na elektřinu a plyn jsou nyní nastaveny cca 800 Kč/měsíc
(byt je v současné době neobývaný)
Lokalita Podhoří patří mezi vyhledávané části Zlína díky kompletní občanské vybavenosti v docházkové vzdálenosti:
zastávky MHD
základní škola a mateřská škola
potraviny a další obchody a služby
lékaři, pošta, sportoviště
dětská hřiště a zeleň v okolí domu
Dobrá dostupnost centra Zlína i napojení na hlavní tahy dělá z bytu vhodnou volbu jak pro rodinné bydlení, tak jako investici k pronájmu.
Pokud Vás nabídka zaujala, kontaktujte mě prosím skrze zprávy či komunikační platformu.
Parametry nemovitosti
| Dostupné od | 11. 12. 2025 |
|---|---|
| Konstrukce budovy | Panel |
| Vybaveno | Částečně |
| Vytápění | Ústřední |
| Vlastnictví | Osobní |
| Rekonstrukce | Jádro |
| Užitná plocha | 65 m² |
| Cena za jednotku | 76 769 Kč / m2 |
| Stav | Dobrý |
|---|---|
| Dispozice | 3+1 |
| Podlaží | 13. podlaží z 13 |
| Číslo inzerátu | 972681 |
| PENB | C - Úsporná |
| Umístění | Sídliště |
| Rizika | Prověřit » |
Co tato nemovitost nabízí?
| Sklep 2 m² | |
| Lodžie 4,2 m² | |
| MHD 2 minuty pěšky |
| Parkování |
V okolí nemovitosti najdete
Tato nemovitost již od 19 732 Kč měsíčně s roční úrokovou sazbou od 4,29 %.
Stále hledáte to pravé?
Nastavte si hlídacího psa. Nabídky vybrané na míru dostanete souhrnně 1× denně e-mailem. S Premium profilem máte k ruce hlídačů rovnou 5 a když se něco objeví, informují vás obratem.



















