
Pronájem nebytového prostoru • 326 m² bez realitkyKöln Niehl Nordrhein-Westfalen 50735
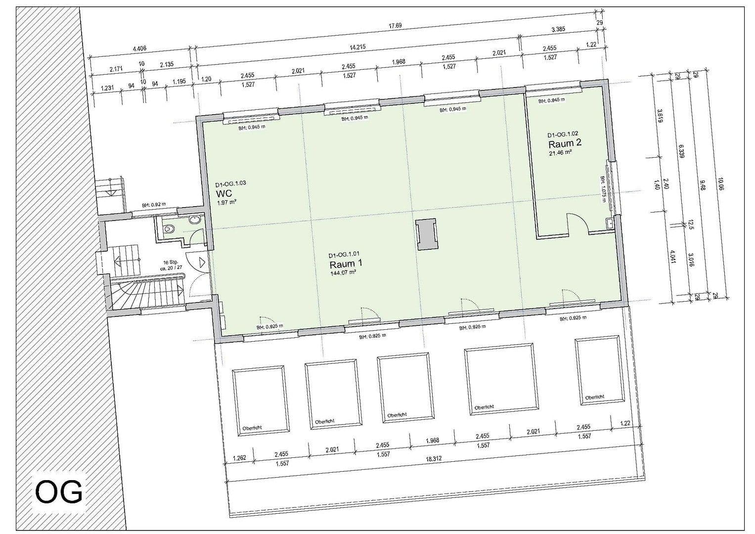
Köln Niehl Nordrhein-Westfalen 50735MHD 4 minuty pěškyNemovitost se skládá z přízemní skladové haly/dílny a nad ní se nachází multifunkční prostor o přibližné ploše 170 m². Patro je přístupné přes samostatné schodiště. Výška stropu činí zhruba 3 metry. Vstup do objektu se řeší přes velká vrata.
Místnost v prvním patře je dobře osvětlená a v minulosti byla využívána jako dílna, poté jako ateliér. Částečně stále zachovaná stará industriální okna a otevřený prostor dodávají místnosti jedinečný charakter a umožňují její flexibilní využití.
Vlastník bohužel vylučuje využití v oblasti automobilové techniky.
Budova se nachází v ulici Bremerhavener, která je díky průmyslové ulici vynikajícím způsobem napojena jak na centrum, tak i na dálnici A1 (spojení Köln-Niehl). Také dálnice A57 (spojení Köln-Ossendorf) je dosažitelná během několika minut po vojenském okruhu. Zastávka Niehl na lince KVB č. 12 je vzdálena pouhé tři minut chůze. V bezprostřední blízkosti se rovněž nachází výrobní prodej (25 %) pekárny Merzenich.
Topení je zajištěno radiátory, které jsou napojeny na centrální topení. I když není v přiloženém půdorysu zatím vyznačeno, přízemí také disponuje WC.
Parkovací místa jsou v hojnosti k dispozici a lze je při potřebě pronajmout.
Nemovitost je připojena k optické síti. Záloha na provozní náklady zahrnuje náklady na topení. Nájemné a provozní náklady jsou uvedeny bez zákonné DPH, která je momentálně 19 %.
Pronájem probíhá přímo od vlastníka bez provize výhradně firmám oprávněným k odpočtu DPH.
Dotazy zasílejte prosím e-mailem s krátkým popisem vaší společnosti nebo plánovaného využití.
Vlastník bohužel vylučuje využití v oblasti automobilové techniky.
Parametry nemovitosti
| Stáří | Nad 50 let |
|---|---|
| Plocha nebytového prostoru | 326 m² |
| Číslo inzerátu | 972817 |
|---|---|
| Cena za jednotku | 0 € / m2 |
Co tato nemovitost nabízí?
| MHD 4 minuty pěšky |
V okolí nemovitosti najdete




Pronájem nebytového prostoruWaltherstraße 49-51 Köln Dellbrück Nordrhein-Westfalen 50739- 1638 m²
8 190 € + 2 757 €
Stále hledáte to pravé?
Nastavte si hlídacího psa. Nabídky vybrané na míru dostanete souhrnně 1× denně e-mailem. S Premium profilem máte k ruce hlídačů rovnou 5 a když se něco objeví, informují vás obratem.


















