Pronájem bytu 2+1 • 50 m² bez realitkyRezepterstraße 7, , Severní Porýní-Vestfálsko
Nový
Rezepterstraße 7, , Severní Porýní-VestfálskoMHD 2 minuty pěškyMěsíční nájemné500 €
+ Poplatky za služby120 €
+ Vratná kauce1 500 €
Přeloženo pomocí AI
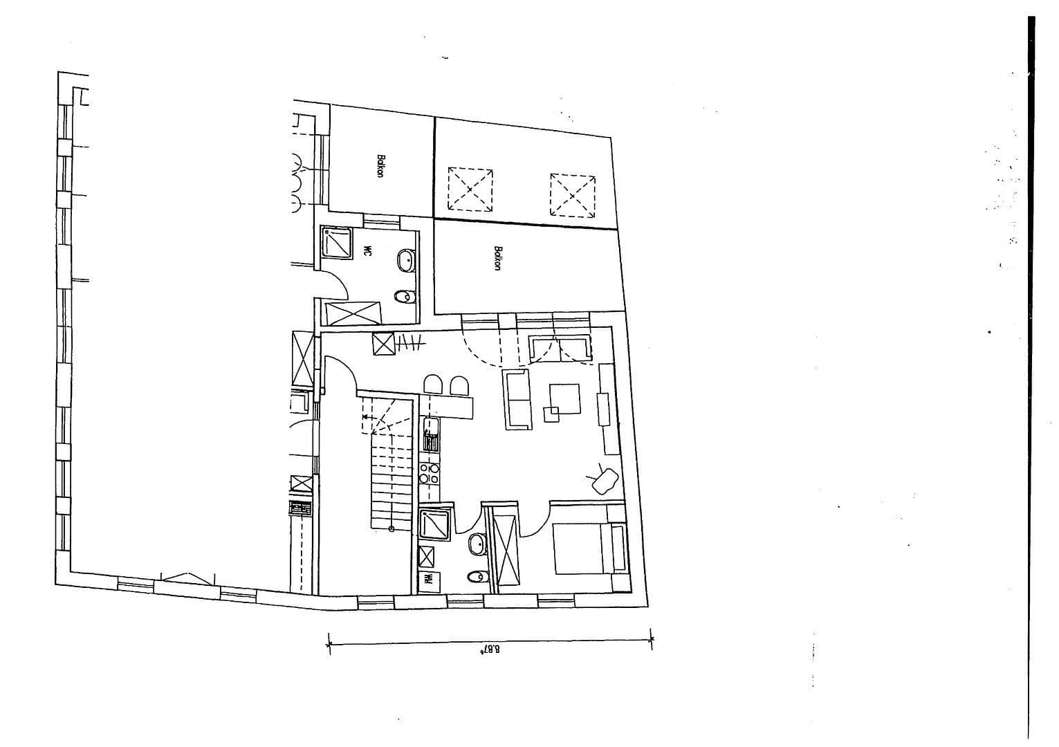
Dvojpokojový byt v prvním patře klidné obytné a obchodní budovy v centru města Stadtlohn k pronájmu. Bytové prostory – viz půdorys – zahrnují obývací a kuchyňský prostor, ložnici a koupelnu. Dále je zde balkon a sklep. Uprostřed centra města Stadtlohn. Parkovací místo není k dispozici.
V okolí nemovitosti najdete
MHDMarkt
🚶 142 m (2 min)
PoštaHermes PaketShop
🚶 203 m (2 min)
ObchodSchlüter
🚶 62 m (1 min)
BankaVolksbank Westmünsterland eG (KompetenzCentrum Stadtlohn)
🚶 60 m (1 min)
RestauraceSchlüter
🚶 92 m (1 min)
LékárnaSonnen-Apotheke
🚶 87 m (1 min)
Školavhs, aktuelles forum
🚶 319 m (4 min)
Mateřská školaDie Kinderburg
🚶 355 m (4 min)
SportovištěDreifach-Sporthalle Burgstraße
🚶 528 m (6 min)
Hřiště
🚶 293 m (4 min)
Vzdálenost k:
Měsíční nájemné500 €
+ Poplatky za služby120 €
+ Vratná kauce1 500 €
Stále hledáte to pravé?
Nastavte si hlídacího psa. Nabídky vybrané na míru dostanete souhrnně 1× denně e-mailem. S Premium profilem máte k ruce hlídačů rovnou 5 a když se něco objeví, informují vás obratem.

