Prodej bytu 3+1 • 55 m² bez realitkyStuttgart Kaltental Baden-Württemberg 70569
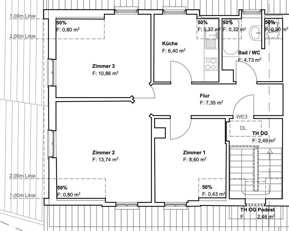
Velmi udržovaný 3-pokojový byt se představuje v příjemném stavu a je ideální jak pro okamžité vlastní bydlení, tak k pronájmu. Světlé, sluncem zalité místnosti vytvářejí přátelskou atmosféru. Byt disponuje moderní vestavěnou kuchyní, denním koupelnou s vanou a účinným plynovým vytápěním v bytě. Skříň poskytuje další úložný prostor. Celkově byt přesvědčuje svou dobrou vybaveností a okamžitou připraveností k nastěhování.
Nemovitost se nachází v klidné a rodinně přívětivé lokalitě v oblíbené části Stuttgartu, v Kaltentalu (čtvrť Süd). Jedná se o ulici pro obyvatele s malou dopravou, obklopenou udržovanými obytnými domy a zelenými plochami. Nákupní možnosti pro každodenní potřeby, mateřské školy, školy, stejně jako lékaři a lékárny se nacházejí v bezprostřední blízkosti a jsou pohodlně dostupné pěšky nebo autem.
Dopravní spojení je vynikající: Městská dráha je vzdálena jen několik minut chůze a za přibližně deset minut vás doveze přímo do centra Stuttgartu. Také autem jste díky nedalekému vjezdu na dálnici rychle a flexibilně v pohybu.
Okolí navíc nabízí řadu možností pro odpočinek a volnočasové aktivity, jako je Dornhalde-Haldenwald, různé dětská hřiště a také dobré spojení s nedalekou univerzitou v Pfaffenwaldu. Tímto způsobem byt spojuje městský život s bydlením v blízkosti přírody. Je ideální pro ty, kteří si cení klidného prostředí, ale zároveň nechtějí vzdát velmi dobrou infrastrukturu a rychlou dostupnost. Ať už jsou to rodiny, páry nebo dojíždějící profesionálové, byt nabízí ideální výchozí bod pro komfortní a vyvážený život ve Stuttgartu.
• Velmi udržovaný stav – připraven ke styku nebo pronájmu
• 3 místnosti, kuchyně, koupelna, sklep
• Plynové vytápění bytu
• Světlé, sluncem zalité prostory
• Vestavěná kuchyně
• Koupelna s vanou a denním světlem
• Dobrá vybavenost
Bez provize
V okolí nemovitosti najdete
Stále hledáte to pravé?
Nastavte si hlídacího psa. Nabídky vybrané na míru dostanete souhrnně 1× denně e-mailem. S Premium profilem máte k ruce hlídačů rovnou 5 a když se něco objeví, informují vás obratem.






