Prodej pozemku • 451 m² bez realitkySchwester-Raphaela-Händler-Straße 23, , Severní Porýní-Vestfálsko
Schwester-Raphaela-Händler-Straße 23, , Severní Porýní-VestfálskoMHD 4 minuty pěškyNemovitost se nachází v mladé stavební oblasti Nottuln Nord, přičemž většina sousedství již dokončila výstavbu svých domů.
Po dokončení tak budete moci využívat klidné prostředí s vyzrálým sousedstvím.
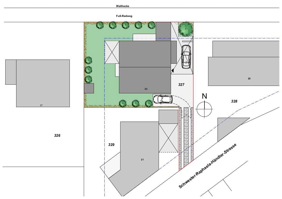
Zpevněná parcela je využitelná podle územního plánu "Nottuln-Nord" a je ideální pro výstavbu rodinného domu nebo dvojdomku – dle individuálních preferencí.
Stavební povolení pro stávající návrh architekta maximálně povolené stavby s čistou zastavěnou plochou 260 m², resp. obytnou plochou 180 m², již existuje.
Předložený návrh nabízí možnost vytvořit rodinný dům pro jednu rodinu nebo dům pro dvě domácnosti.
Tento návrh lze převzít.
Díky existujícímu stavebnímu povolení lze již na jaře okamžitě zahájit realizaci vašeho projektu.
Závěr:
Jedná se o vzácnou nabídku v této prvotřídní lokalitě, bez omezení vyplývajících z kritérií výběru obce, což vám umožní krátkodobě postavit si nový domov.
Tato parcela o výměře 451 m² na severním okraji Nottulnu vám poskytuje nejlepší příležitost vytvořit si vlastní domov přímo u rekreační oblasti Baumberge.
Adresa je: Schwester-Raphaela-Händler-Straße 23, 48301 Nottuln
Poloha na okraji obce umožňuje přímý přístup k procházkám nebo cyklistickým výletům v malebném okolí.
Současná blízkost k centru obce (s jeho nádhernou historickou strukturou) nabízí veškeré výhody plně vybavené infrastruktury, počínaje novým mateřským školkou pouhých 100 m dále, základními a středními školami v obci, až po krátké vzdálenosti pro denní zásobování.
Díky blízkosti dálnice A43 a veřejné dopravě je Nottuln vynikajícím spojením s nadregionálním centrem Münster.
Parametry nemovitosti
| Dostupné od | 15. 12. 2025 |
|---|---|
| Plocha pozemku | 451 m² |
| Číslo inzerátu | 972891 |
|---|---|
| Cena za jednotku | 441 € / m2 |
Co tato nemovitost nabízí?
| MHD 4 minuty pěšky |
V okolí nemovitosti najdete
Stále hledáte to pravé?
Nastavte si hlídacího psa. Nabídky vybrané na míru dostanete souhrnně 1× denně e-mailem. S Premium profilem máte k ruce hlídačů rovnou 5 a když se něco objeví, informují vás obratem.








