Prodej domu • 899 m² bez realitkyHardtstr. 35, , Severní Porýní-Vestfálsko
Reprezentativní klenot
Panský dům z roku 1890 disponuje dvěma plnými podlažími a jedním mezaninem. Ve všech částech nese budova z konce 19. století řadu původních detailů. Zvláště okouzluje původní schodiště s velkou skleněnou kupolí, stejně jako luxusní dubové parkety a schody či nádherné stukové zdobení.
Kromě hlavního schodiště je zde i druhé „personální schodiště“. Objekt byl postaven jako rodinná vila, ale v současnosti slouží jako bytový dům s šesti prostornými byty a jedním loftem.
V přízemí vstoupíte do vily přes prostornou, světlem zalitou vstupní halu s velkou recepční zónou. Následně se na vyšším přízemí nachází 2 byty:
• Jeden 3+1 byt o rozloze 117 m²,
• vedle něj 5,5+1 byt s moderní ostrovní kuchyní a balkonem o rozloze 167 m².
Obě jednotky jsou moderně zrekonstruovány, ale stále si zachovávají půvab původních detailů, jako jsou dubové parkety a stukové zdobení na stropech s výškou 3,60 m.
Na Bel Etage v prvním patře byly dva byty spojeny tak, že vznikla jednotka s více než 300 m² obytné plochy a obrovským jižním balkonem. I zde se rýsuje veškerá nádhera klasicistní minulosti v podobě dubového parketového podlahového krytu a bohatého stukového zdobení na stěnách a stropech s výškou 3,60 m. Ze velmi prostorného obývacího pokoje máte přímý přístup na jižní balkon s přímým výhledem na nádherný park. Dále se na této úrovni nacházejí dvě moderní koupelny, moderní a špičkově vybavený kuchyňský ostrůvek, elegantní jídelna a dalších pět vynikajících obytných prostor.
V podkroví se nacházejí dva 3+1 byty v moderním standardu rekonstrukce o rozloze přibližně 91 m² a 114 m², kancelář o přibližně 25 m² a loft o rozloze přibližně 80 m². Výška stropů je cca 2,65 m. Loft je současně spojen s bytem v 1. patře, má však samostatný vstup. Celková pronajímatelná plocha činí zhruba 900 m².
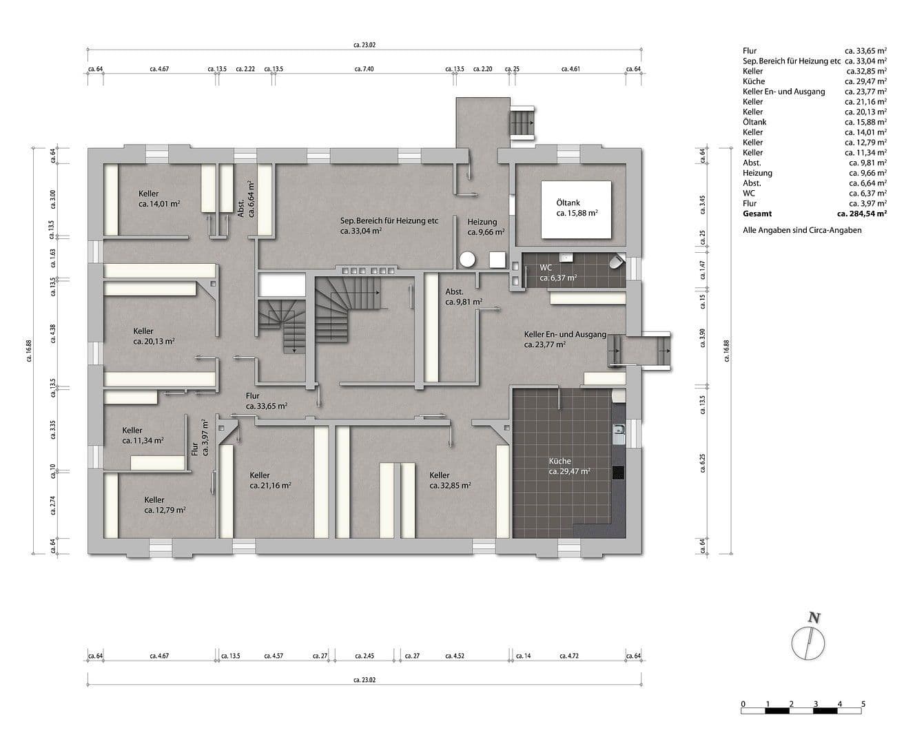
V suterénu se nachází sklep s klenutou stropní konstrukcí a šesti místnostmi, dílna, vinný sklep, prádelna, samostatná toaleta a několik servisních a skladovacích místností.
Téměř 1 hektar velký pozemek je takřka neviditelný zvnějšku a skládá se z nádherně upravené zámecké parkové zahrady a přilehlého zeleni zdobeného stavebního pozemku. Návštěvník se dostane na pozemek po dlouhé, uspokojivé příjezdové cestě, která po boku prochází upraveným parkem a zahradou. Pozemek na jedné straně sousedí s řekou a po pár schodech máte přímý, zcela soukromý přístup k řece Wupper.
V zahradě stojí vzácný zahradní pavilon (čajovna) s osmi zdobenými kovovými sloupy a přírodní kamennou podlahou, či další zahradní domek, který je v současnosti využíván jako ateliér. Dvě grilovací místa a nádherně zapuštěný porost stromů, kde najdeme obrovské červené buky, tvoří srdce této úchvatné, pečlivě udržované oblasti.
Všechna podlaží byla v posledních letech komplexně a řádně rekonstruována a kompletně obnovena. Nové plynové centrální topení z roku 2021.
Celkový kontext a charakter nemovitosti tvoří pevný základ pro rozvoj koncepce v oblasti soukromého bydlení; turistického sektoru, např. jako zařízení exkluzivního butikového hotelu, nebo další komerční využití, např. jako centrum pro soukromé specialisty či luxusní senior rezidence. Nebo dům můžete obnovit do původního stavu rodinné vily.
Budova kombinuje šarm historických panských domů s moderním komfortem. Je zařazena na seznam památkově chráněných objektů, což nabízí investorcům mimořádné možnosti designu.
Obecné informace | Specifika | Poznámky:
Katastrální plán z Radevormwald, list 3553, územní jednotka 46, parcely: 272 (spojená s 273), 273, 274, 563
Daň z nemovitosti B 2024:
Parcela 273: 369,17 €
Parcela 274: 996,07 €
Parcela 563: 0,00 €
Energetický průkaz: Není k dispozici, jelikož se jedná o památkově chráněný objekt.
Topení: V roce 2021 bylo instalováno nové plynové centrální topení, které je zásobováno kapalným plynem ze spojené podzemní nádrže.
Radevormwald je malebná obec s přibližně 25 tisíci obyvateli v řídícím úřadu Köln. V Radevormwald-Dahlhausen, uprostřed pulzující metropolitní oblasti Köln – Düsseldorf – Ruhr, se nachází toto reprezentativní sídlo v klasicistním stylu, bývalá fabrikantská vila Hardt, o přibližně 900 m² obytné plochy a zhruba 9 300 m² pečlivě udržované parkové a zahradní oblasti ve anglickém stylu. Všechna tato tři hlavní centra jsou dostupná během pouhé půlhodinové jízdy.
Radevormwald je jedním z nejstarších měst v Bergském okrese a je oblíbený jako hustě zalesněné rekreační území s několika přehradami. Obchody každodenní potřeby, jako je supermarket, lékárna, ordinace lékaře či základní škola, lze v Radevormwald-Dahlhausen dosáhnout za pár minut chůze. V řádu stovek metrů se nachází několik autobusových zastávek. Za méně než 10 minut autem jste přímo v centru Radevormwald nebo Remscheid, kde najdete veškeré druhy obchodů či služeb.
Vzdálenosti:
Letiště Düsseldorf: 55 km
Centrum Düsseldorfu: 50 km
Letiště Köln: 55 km
Centrum Kolína: 50 km
Letiště Dortmund: 60 km
Centrum Dortmundu: 55 km
Dronové video:
https://youtu.be/XQ4K85N2fIc
Nebo naskenujte QR kód.
Rekonstrukční a udržovací opatření v letech 2012 až 2023:
• Elektro- a vodovodní potrubí 2012–2022
• Topenářský systém (plynové centrální topení) 2021
• Okna, dveře 2020–2023
• Nová vnitřní omítka 2012–2022
• Střešní izolace 2021–2022
• Parkovací zařízení 2015–2022
• Restaurace parkového pavilonu 2020–2021
• Úprava podkroví 2022–2023
• Instalace krbu 2022–2023
• Nové internetové připojení ve všech bytech 2015–2016
Vybavení:
• Historická fabrikantská vila z období zakladatelů
• Pozemek o rozloze 9 275 m² s parkem a přístupem k vodě
• 899 m² obytné plochy, 26 místností
• Velmi soukromá poloha
• Komplexně a památkově citlivě zrekonstruováno, luxusní vybavení
• Celý sklep
• 4 garáže
• 6–10 parkovacích stání
• Velké balkóny a terasy
• Památková ochrana
Pozemek: 9 275 m²
Pronajímatelná plocha: cca 899 m²
Adresa objektu:
Hardtstr. 35, 42477 Radevormwald
Příjmy z nájmu: Hrubý roční nájem cca 52 500 € (při 3 z 7 bytů obývaných vlastníky (nebo 385 z 899 m²) a 1 z 4 garáží obsazených vlastníky).
Kupní cena: 4 600 000 € (bez provize pro kupujícího)
Máte zájem se dozvědět více o tomto pestrém snovém objektu? Rádi vám zodpovíme vaše dotazy a těšíme se na váš kontakt.
Kontaktní údaje:
Condé Immobilien
Alexander Condé
Tel.: +49 1573 73 06 118
E-mail: info@conde-immobilien.de
Impressum:
Condé Consulting UG (s ručením omezeným)
Ředitel: Alexander Condé
Graf-Adolf-Str. 11
D-42119 Wuppertal
Telefon: +49 (0) 202 514 266 11
Fax: +49 (0) 202 514 266 10
E-mail: info [at] conde-immobilien [dot] de
Celé impressum naleznete na --> https://www.conde-immobilien.de/impressum
Parametry nemovitosti
| Stáří | Nad 50 let |
|---|---|
| Číslo inzerátu | 972916 |
| Plocha pozemku | 9 275 m² |
| Cena za jednotku | 5 117 € / m2 |
| Stav | Po rekonstrukci |
|---|---|
| Užitná plocha | 899 m² |
| Celkem podlaží | 2 |
Co tato nemovitost nabízí?
| Balkón | |
| Garáž | |
| Parkování | |
| Terasa |
| Sklep | |
| MHD 3 minuty pěšky |
V okolí nemovitosti najdete
Stále hledáte to pravé?
Nastavte si hlídacího psa. Nabídky vybrané na míru dostanete souhrnně 1× denně e-mailem. S Premium profilem máte k ruce hlídačů rovnou 5 a když se něco objeví, informují vás obratem.






















































