
Pronájem nebytového prostoru • 999 m² bez realitkyBiederbacherstraße 28, , Bavorsko
Biederbacherstraße 28, , BavorskoMHD 7 minut pěšky • ParkováníDie zur Vermietung stehende Gewerbefläche befindet sich in der Biederbacher Straße 27 in Wolframs-Eschenbach, in einem langjährig eingeführten Nahversorgungszentrum. Mit einer Gesamtfläche von 999 Quadratmetern bietet die Fläche vielseitige Nutzungsmöglichkeiten, darunter Einzelhandel, Lager, Logistik oder kleinteiliges Gewerbe.
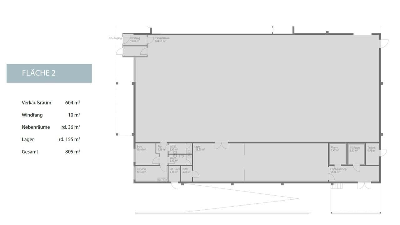
Die Fläche ist flexibel gestaltbar und bei Bedarf teilbar. Sie umfasst einen großzügigen Verkaufsraum von 615 m² (erweiterbar um 194 m²), 191 m² Nebenräume sowie ein Lager von 200 Quadratmetern.
Es handelt sich um die bestehende Penny-Markt Fläche. Die Filiale wird im Moment auf dem Parkplatz freistehend neugebaut. Die Eröffnung ist für Herbst 2026 geplant. Ab diesem Zeitpunkt steht die Fläche zur Anmietung zur Verfügung.
Lagebeschreibung
Die Gewerbefläche liegt in der Biederbacher Straße 27, einer der Hauptzufahrtsstraßen von Wolframs-Eschenbach. Der Ort hat etwa 3.300 Einwohner, jedoch ein starkes Einzugsgebiet:
5 Kilometer Radius: 13.000 Einwohner
10 Kilometer Radius: 48.000 Einwohner
Besonders vorteilhaft ist die Nähe zu den umliegenden Städten wie Mitteleschenbach, Merkendorf und Triesdorf, wobei letzteres mit seinen 5.500 Studenten ein wichtiger Standortfaktor ist.
Darüber hinaus ist Wolframs-Eschenbach für seine historische Altstadt und die Lage im Fränkischen Seenland bekannt, was jährlich bis zu 30.000 Übernachtungen generiert. Zusätzlich gibt es zahlreiche Wohnwagenübernachtungen, die die touristische Relevanz weiter steigern.
Auf dem Grundstück selbst befinden sich etwa 75 Parkplätze, die gemeinschaftlich mit einer Penny-Markt-Filiale genutzt werden können.
Die Gewerbefläche ist hochwertig ausgestattet und bietet zahlreiche praktische und technische Vorteile:
Heizungssystem: Eine Gaszentralheizung sorgt für zuverlässige Wärme, während in Teilbereichen eine komfortable Fußbodenheizung installiert ist.
Bodenbeläge: Die gesamten Flächen sind vollständig gefliest oder gepflastert, was sie besonders robust und pflegeleicht macht.
Internetanschluss: Ein leistungsstarker Internetanschluss mit bis zu 100 MB Geschwindigkeit ist bereits vorhanden und ideal für moderne Arbeits- und Kommunikationsanforderungen.
Barrierefreier Zugang: Alle Zugänge sind barrierefrei gestaltet, was eine einfache und flexible Nutzung ermöglicht.
Sozialräume: Ein Filialleiterbüro sowie ein Sozialraum mit Pantryküche und eigenem WC bietet optimale Bedingungen für Personal.
Mehrfachzugänge: Vier separate Zugänge, darunter ein Lagertor und eine Schiebetür an der Fassade, sorgen für eine flexible und funktionale Nutzung der Fläche.
Werbemöglichkeiten: Die Fläche bietet umfassende Optionen für Außenwerbung. Schaufensterflächen können individuell foliert werden, eine Leuchtreklame kann an der Fassade installiert werden, und es besteht die Möglichkeit, eine Werbestele an der Zufahrt anzubringen, um die Sichtbarkeit zu erhöhen.
Flexibilität: Die Fläche kann je nach Bedarf angepasst und bei Bedarf auch in kleinere Einheiten aufgeteilt werden.
Die Gewerbefläche ist ab sofort verfügbar. Die Kaltmiete ist individuell verhandelbar und richtet sich nach der geplanten Nutzung und Vertragslaufzeit. Es wird keine Kaution erhoben, was den Einstieg für neue Mieter besonders erleichtert.
---
Nyní následuje český překlad:
Pronajímatelná komerční plocha se nachází na adrese Biederbacher Straße 27 ve Wolframs-Eschenbach a je situována v dlouhodobě zavedeném centru pro základní zásobování. Celková plocha činí 999 čtverečních metrů, což poskytuje řadu možností využití, včetně maloobchodu, skladu, logistiky nebo drobného průmyslu.
Plocha je vybavitelná flexibilně a je možno ji dle potřeby rozdělit. Zahrnuje prostorný prodejní prostor o výměře 615 m² (s možností rozšíření o 194 m²), 191 m² přidružených místností a sklad o výměře 200 čtverečních metrů.
Jedná se o stávající prostor Penny Markt. Pobočka je momentálně znovu budována jako samostatná stavba na parkovišti. Plánované otevření je na podzim roku 2026. Od tohoto okamžiku bude plocha k dispozici k pronájmu.
Popis lokality
Komerční plocha se nachází na adrese Biederbacher Straße 27, jedné z hlavních příjezdových cest Wolframs-Eschenbach. Město má přibližně 3 300 obyvatel, ale disponuje rozsáhlým přitažlivým okruhem:
Poloměr 5 km: 13 000 obyvatel
Poloměr 10 km: 48 000 obyvatel
Zvláště výhodná je blízkost k okolním městům jako Mitteleschenbach, Merkendorf a Triesdorf, přičemž to poslední se svými 5 500 studenty představuje důležitý faktor pro lokalitu.
Dále je Wolframs-Eschenbach známý historickým starým městem a položením v Frankenjském jezerním kraji, což přináší až 30 000 noclehů ročně. Navíc je zde řada přesídlitelů karavanů, čímž se turistický potenciál dále zvyšuje.
Na pozemku se nachází přibližně 75 parkovacích míst, která mohou být využívána společně s pobočkou Penny Markt.
Komerční plocha je vybavena vysoce kvalitně a nabízí řadu praktických a technických výhod:
Vytápěcí systém: Plynové centrální vytápění zajišťuje spolehlivé teplo, přičemž v některých částech je instalováno pohodlné podlahové topení.
Podlahové krytiny: Celé prostory jsou kompletně obklazeny dlažbou nebo oblázkovány, což je činí velmi odolnými a nenáročnými na údržbu.
Internetové připojení: Výkonné internetové připojení až 100 MB je již k dispozici a je ideální pro moderní pracovní a komunikační požadavky.
Bezbariérový vstup: Všechny přístupy jsou bezbariérové, což umožňuje snadné a flexibilní využití.
Sociální místnosti: K dispozici je kancelář šéfa pobočky a společenská místnost s pantry kuchyní a vlastním WC, což poskytuje optimální podmínky pro personál.
Vícenásobné vstupy: Čtyři samostatné přístupy, mezi něž patří skladová vrata a posuvné dveře v fasádě, zajišťují flexibilní a funkční využití prostoru.
Možnosti reklamy: Plocha nabízí komplexní možnosti pro vnější reklamu. Výlohy lze individuálně polepilovat fólií, na fasádu lze instalovat světelnou reklamu a je také možné umístit reklamní pult na příjezdovou cestu, čímž se zvýší viditelnost.
Flexibilita: Plocha může být přizpůsobena dle potřeby a lze ji také rozdělit na menší jednotky.
Komerční plocha je ihned k dispozici. Základní nájemné je individuálně vyjednatelné a závisí na plánovaném využití a délce smlouvy. Nebyla vyžadována žádná kauce, což usnadňuje start novým nájemcům.
Parametry nemovitosti
| Stáří | Nad 50 let |
|---|---|
| Číslo inzerátu | 973155 |
| Plocha pozemku | 5 000 m² |
| Stav | Dobrý |
|---|---|
| Plocha nebytového prostoru | 999 m² |
| Cena za jednotku | 0 € / m2 |
Co tato nemovitost nabízí?
| Bezbariérový přístup | |
| Parkování |
| MHD 7 minut pěšky |
V okolí nemovitosti najdete
Stále hledáte to pravé?
Nastavte si hlídacího psa. Nabídky vybrané na míru dostanete souhrnně 1× denně e-mailem. S Premium profilem máte k ruce hlídačů rovnou 5 a když se něco objeví, informují vás obratem.






