Prodej domu 6+1 • 173 m² bez realitky, Bádensko-Württembersko
Polodům postavený v roce 1986 vám nabízí 6 pokojů, moderní samostatný byt a prostornou zahradu – spoustu místa pro celou rodinu. Dům se pyšní dobrým dispozicí, prostorným obývacím/jídelním pokojem, velkorysou pracovnkou v suterénu, klidnou polohou v obytné ulici a nezakrýtelným výhledem na Kaiserstuhl a Vosges. Moderní samostatný byt s vlastní kuchyní, sprchou/WC, úložným prostorem a krytou terasou může sloužit jako rozšířený obytný prostor, návštěvnická část nebo být k pronájmu. Masivně postavený dům je ve velmi pečlivě udržovaném stavu.
Kromě prostorné garáže jsou rovněž k dispozici 2 venkovní parkovací místa a příjezdná zahrada.
Ihringen je oblíbená vinařská vesnice mezi Freiburkem a Breisache (francouzská hranice). Četné cyklistické a turistické stezky, dobře vybudované spojení S-Bahn Freiburg–Breisach, blízkost k dálnici A5, a snadný přístup do Švýcarska a Francie činí z Ihringenu ideální výchozí bod pro nejrůznější sportovní a kulturní aktivity. Poštovní úřad, 2 supermarkety, různé drobné obchody, pekárna, kavárna, mateřské školy, základní škola, zubař, praktický lékař, čerpací stanice a řada restaurací jsou bez problémů dostupné pěšky, na kole nebo autem. Nejbližší dětské hřiště se nachází necelých 200 metrů od domu.
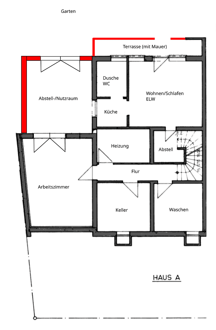
Pokoje/Vybavení:
Horní patro (OG):
• 1 ložnice – pravý dřevěný laminát z buku, podlahové topení, prostorná vestavěná šatní skříň s posuvnými dveřmi, balkónové dveře
• 2 dětské pokoje – pravý dřevěný laminát z buku a podlahové topení
• 1 koupelna – obložena dlaždicemi, s elektrickým podlahovým topením, podlahové topení, sprchou a rohovou vanou, okno
• 1 chodba – s pravým dřevěným bukovým laminátem
• Masivní dřevěné schody do horního patra z buku
Přízemí (EG):
• 1 hostinské WC – obloženo dlaždicemi, s podlahovým topením, okno
• 1 zásobovací místnost – obložena dlaždicemi
• 1 vstupní hala – obložena dlaždicemi, s podlahovým topením
• 1 kuchyně – obložena dlaždicemi se zabudovanou kuchyňskou linkou z břízového furniru
• 1 obývací/jídelna – dubový parket, centrální topení a krbové kamna
• 1 velký rohový balkón s elektrickou markýzou
Suterén (UG):
• Schody do suterénu – pokryté kamennými deskami (žula)
• 1 technická místnost (HWR) – nevyhřívaná, s pracovní deskou, umyvadlem a odtokem v podlaze, sklepní okno
• 1 sklepní místnost – nevyhřívaná, s oknem
• 1 kotelna
• 1 chodba – obložená dlaždicemi
• 1 pracovna – laminátová podlaha, s podlahovým topením a dvojitými skleněnými dveřmi
• 1 přístavba – uzavřená, se 3 okny, s dvojitými vedlejšími vstupními dveřmi a odtokem v podlaze
Samostatný vchod (ELW):
• 1 chodba/uložný prostor – obložený dlaždicemi, nevyhřívaný
• 1 obytná/spací místnost – laminátová podlaha, s podlahovým i elektrickým topením, 2 okna a vstupní i výstupní dveře vedoucí do zahrady
• 1 malá kuchyně – laminátová, se zabudovanou kuchyňskou linkou a oknem
• 1 koupelna/WC – obložena dlaždicemi, s prostornou sprchou, moderním umyvadlem, WC a oknem
• 1 krytá venkovní terasa s přímým vstupem do zahrady
Další vybavení:
• Všechna okna jsou vybavena elektrickými roletami
• Sluneční markýza nad vchodem do domu
• Plastová okna s dvojskly (součinitel prostupu tepla UW 1,3)
• Solární systém o výkonu 3 120 W včetně akumulátoru o kapacitě 11,8 kW pro vlastní spotřebu
• Zařízení pro odstranění vodního kamene z domácí vody
• Dešťová cisterna o objemu 3 000 litrů s čerpadlem v zahradě
• Zahradní chata
• Oplocení zahrady z modřínového dřeva
• Tepelná izolace fasády s 60 mm kamennou vlnou
• Bezpečnostní vstupní dveře
• Elektrická garážová vrata s vedlejší vstupními dveřmi
• Další tepelná izolace podkroví a horního patra
V okolí nemovitosti najdete
Stále hledáte to pravé?
Nastavte si hlídacího psa. Nabídky vybrané na míru dostanete souhrnně 1× denně e-mailem. S Premium profilem máte k ruce hlídačů rovnou 5 a když se něco objeví, informují vás obratem.















