Pronájem bytu 3+1 • 73 m² bez realitkyBeim Kloster Dohren 69, , Dolní Sasko
Beim Kloster Dohren 69, , Dolní SaskoMHD 4 minuty pěšky • ParkováníZde je překlad textu do češtiny:
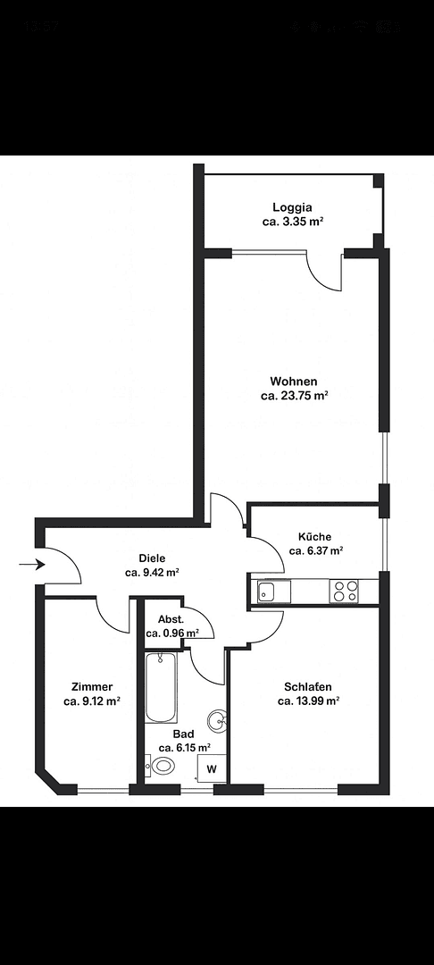
Na pronájem je nabízena velice atraktivní 3-pokojový byt ve vyhledávané lokalitě Buxtehude.
Výborné uspořádání
Nemovitost zaujme jedinečným, přehledným dispozicím, který zajišťuje maximální kvalitu bydlení. Všechny tři místnosti jsou přístupné samostatně z prostorné chodby – nejsou zde žádné místnosti propojené vzájemně. Rozložení je ideální pro malou rodinu nebo pár s velkou potřebou prostoru a přáním mít navíc pracovní místnost či pokoj pro hosty.
Detaily a vybavení
Bydlení a balkon: Prostorný obývací pokoj tvoří srdce bytu. Odtud máte přímý vstup na krytý balkon, který slouží jako prodloužený obytný prostor v teplých měsících.
Bezpečnost a komfort: Celý byt je vybaven roletami, které zajišťují optimální ochranu proti slunci, teplu i nežádoucímu pohledu a zároveň poskytují zvýšenou ochranu proti vloupání.
Spánek a práce: Kromě prostorné hlavní ložnice vám je k dispozici flexibilně využitelná třetí místnost (cca 9,12 m²), která je ideální například jako dětský pokoj, domácí kancelář nebo velká šatna.
Kuchyně a koupelna: Kuchyně je funkční a oddělená od obytného prostoru. Koupelna je zařízena jako vanová koupelna s oknem, což zajišťuje optimální větrání, a nabízí praktické připojení pro pračku.
Komfort a úložné prostory: Pro další úložný prostor je v chodbě k dispozici praktická vnitřní komora. K bytu patří také velký, samostatný sklep.
Extra: Pro vaše kolo je k dispozici společná místnost určená na kola. Výjimečné je také vlastní parkovací místo přímo před domem, které bytu náleží a usnadní vám hledání parkování.
Závěr
Zajistěte si pronájem nemovitosti, která díky optimálnímu a funkčnímu dispozici splňuje veškeré požadavky na moderní bydlení a svou centrální, dobře dostupnou polohou i atraktivními doplňkovými benefity (parkovací místo, sklep, místnost na kola) v Buxtehude zaujme.
Tato atraktivní lokalita
Adresa Beim Kloster Dorn 69 v Buxtehude nabízí ideální rovnováhu mezi centrální polohou a klidným útočištěm. Byt se nachází v zavedené a udržované obytné čtvrti, která se vyznačuje vynikající infrastrukturou:
Místní zásobování je výborné – velký obchodní řetězec Rewe je vzdálen jen několik set metrů a všechny další důležité obchody každodenní potřeby, pekárny a lékárny, jsou snadno dostupné. Centrum Buxtehude se svými rozmanitými nákupními možnostmi, moderními kavárnami a restauracemi je rychle a pohodlně dosažitelné a zve k posezení. Pro rodiny je poloha ideální, protože školy se nacházejí v bezprostřední blízkosti.
Pro volný čas a odpočinek nabízejí nedaleké zelené plochy a břehy řeky Este ideální možnosti. Největší benefitem této lokality je vynikající dopravní spojení, které je činí zvlášť atraktivní pro dojíždějící: Přes nádraží Buxtehude, dostupné pohodlně na kole nebo MHD, máte přímé spojení s hamburskými linkami S-Bahn a regionálním expressem. To umožňuje rychlou a pohodlnou dopravu do centra hanzaovského Hamburku (cca 30–40 minut) i do okolních oblastí. Optimální dostupnost B73 a dálnice A26 navíc zajišťuje flexibilní mobilitu automobilem.
Zajistěte si zde bydlení, které vás osloví svou vysokou kvalitou života a dokonalými dojížděcími podmínkami do metropolitní oblasti Hamburku.
V okolí nemovitosti najdete
Stále hledáte to pravé?
Nastavte si hlídacího psa. Nabídky vybrané na míru dostanete souhrnně 1× denně e-mailem. S Premium profilem máte k ruce hlídačů rovnou 5 a když se něco objeví, informují vás obratem.







