Prodej domu 4+1 • 124 m² bez realitkyGRUNDSTÜCK 15KM GRAZ EXKLUSIV NUR FÜR DANWOOD-HAUSBAU Kohldorf Steiermark 8323
GRUNDSTÜCK 15KM GRAZ EXKLUSIV NUR FÜR DANWOOD-HAUSBAU Kohldorf Steiermark 8323MHD 2 minuty pěšky • GarážKompaktní a promyšlený – zázrak prostoru na malém půdorysu.
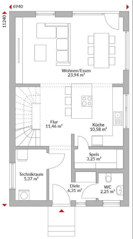
I přes malou zastavěnou plochu splňuje tento dům všechny požadavky moderního bydlení. Kuchyně je funkčně navržena, technická místnost nabízí dostatek prostoru pro domácí techniku a skladování. Koupelna je vybavena vanou i sprchou, navíc je k dispozici hostinská toaleta. Předsíň poskytuje prostorné věšáky, dětské pokoje a ložnice mají dobré možnosti úložného prostoru. Obývací a jídelní prostor zaujme velkými okenními plochami a otevřenými přechody, které opticky zvětšují místnost.
Ideální pro všechny, kteří se zaměřují na podstatné – aniž by museli obětovat komfort.
Na vašem pozemku nebo v…
Güssing: Přibližně 2 600 m², lokalita je zcela rovná. Rozměry i umístění pozemků lze volně vybírat. Dostupné rozlohy od 500 m² do 1 500 m².
Zde naleznete stavební pozemky první třídy! V nejlepší lokalitě a s úchvatným výhledem na nádherný hrad Güssing!
Güssing nabízí budoucnu jistý, dostupný a energeticky nezávislý život uprostřed přírody, což činí investici do nemovitosti zde strategickou hodnotovou investicí.
Proč Güssing
Energetický průkopník a udržitelnost:
Město je energeticky soběstačné a mezinárodně uznávané. Vysoké pokrytí (nad 85 %) regionálním biomasovým dálkovým vytápěním vede k stabilním a příznivým nákladům na vytápění.
Dostupné ceny nemovitostí:
Ceny jsou stále výrazně nižší než rakouský průměr, což umožňuje realizaci snu o vlastním domě se šťavnatým pozemkem.
Silná infrastruktura a kvalita života:
Jako příměstská oblast zajišťuje Güssing krátké vzdálenosti a nejlepší dostupnost služeb.
Plánované velké investice:
Nový vzdělávací kampus a moderní lékařské centrum (od roku 2026).
Kulturní centrum (hrad Güssing) a blízkost termálních lázní.
Plné otevření S7 přináší podstatné výhody pro Güssing a jeho obyvatele:
• Rychlejší napojení na metropolitní oblasti: Rychlostní silnice výrazně zkracuje dobu jízdy na dálnici A2 jižní, čímž se výrazně zkracují doby cestování do Grazu a Vídně.
• Odlehčení regionu: Nová trasa přesměrovává tranzitní dopravu, která dříve zatěžovala obce jako Fürstenfeld a Rudersdorf.
• Ekonomické impulsy: Nové napojení, mimo jiné přes přípojnici u Rudersdorf/Dobersdorf a blízkost spojení s Königsdorf, posiluje Güssing jako příměstskou oblast a ekonomické centrum díky zlepšené dostupnosti a podpoře nových průmyslových parků.
Stabilita hodnoty a rozvojový potenciál:
Cílené obecní investice do infrastruktury, oživení centra města a technologického centra zaručují dlouhodobou stabilitu hodnoty nemovitostí. Obecní strategie je zaměřena na zvládnutí demografických výzev a etablování Güssingu jako atraktivní lokality pro bydlení i podnikání.
Cílová skupina:
Rodiny, které hledají budoucnost, bezpečí a přírodu, a také všichni, kterým záleží na nízkých nákladech na energii a ekologické odpovědnosti.
Další pozemky v:
Pozemek, 8323 Kohldorf: Stavební pozemek se spoustou slunce v východostýrském pahorkatině, 15 km od Grazu!
Velikost: 758 m², kupní cena: € 66 000, --
Pozemek, 8323 Kohldorf: Slunečný stavební pozemek v Kohldorfu, 15 km východně od Grazu!
Velikost: 787 m², kupní cena: € 69 000, --
Pozemek, 8311 Markt Hartmannsdorf: Plně připravený, slunečný stavební pozemek v Markt Hartmannsdorfu
Velikost: 920 m², kupní cena: € 53 000, --
Pozemek, 9335 Lölling Graben: Stavební pozemek s nádherným výhledem do dálky v malebném kařinském horském prostředí
Velikost: 1001 m², kupní cena: € 50 000, --
Pozemek, 8075 Hart u Grazu: Slunečný pozemek před branami Grazu
Velikost: 1980 m², kupní cena: € 475 000, --
Pozemek ke koupi ve Stainzu: Slunečný pozemek na okraji obce Stainz
Velikost: 825 m², kupní cena: € 149 000
Mezi vlastníkem pozemku a stavitelem domu neexistuje žádná obchodní vazba.
Rodinný dům se 4 pokoji – exkluzivní vybavení!
Klíč k nastěhování včetně dodávky a montáže od horního okraje základů.
• Zesílená střešní konstrukce odolná vůči sněhové zátěži
• Tepelné čerpadlo vzduch-voda a podlahové vytápění
• Větrání obytného prostoru s rekuperací tepla (i pro letní chlazení)
• Elektrické rolety po celém domě
• Podlahové krytiny a sanitární zařízení volitelné dle přání
• Příprava pro fotovoltaiku
• Balíček „vše zahrnuto“ bez starostí
Pozemky dostupné od 500 m² do 1 500 m² podle přání!
Možnost vlastní účasti na stavbě – přesně podle vašich představ.
Poradenství & Prodej:
Paní Tatjana Wyss
Tel.: +43 676 553 77 47
E-mail: tatjana.wyss@danwood.at
Zajistěte si nyní konzultaci zdarma!
Požádejte o stavební popis a katalogy!
K tomu je nutné uvést vaše telefonní číslo, e-mail a adresu.
Děkujeme!
KALKULAČKA FINANCOVÁNÍ
https://www.finaustria.at/finanzierungsrechner
DALŠÍ NABÍDKY!
https://qr.scan.page/uploads/pdf/1752348182250_686ba1debcb60.pdf
V okolí nemovitosti najdete
Stále hledáte to pravé?
Nastavte si hlídacího psa. Nabídky vybrané na míru dostanete souhrnně 1× denně e-mailem. S Premium profilem máte k ruce hlídačů rovnou 5 a když se něco objeví, informují vás obratem.





















