
Pronájem bytu 3+1 • 67 m² bez realitkySchmidtstraße 8, , Hessen
Schmidtstraße 8, , HessenMHD 2 minuty pěškyDiese moderne Neubauwohnung in Rüdesheim am Rhein verbindet zeitgemäßen Wohnkomfort mit energieeffizienter Bauweise. Die Wohnung wurde in 2025 gebaut und ist frühestens zum 01.02.2026 einzugsbereit.
Tento moderní byt v novostavbě v Rüdesheim am Rhein kombinuje moderní bytový komfort s energeticky účinnou výstavbou. Byt byl postaven v roce 2025 a je k nastěhování nejdříve od 01.02.2026.
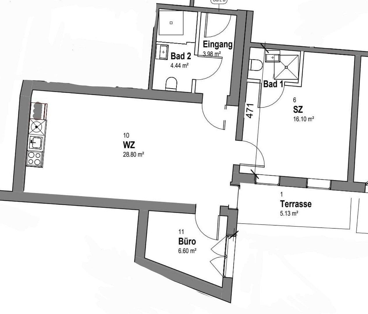
Ein besonderes Highlight dieser Wohnung ist die Terrasse, die Einbauküche, sowie eine hochmoderne Lüftungsanlage, die für konstant angenehme Innenraumluftqualität sorgt. Dank der energiebewussten KfW-Bauweise profitieren Sie von einer ausgezeichneten Dämmung, Niedertemperatur-Heizkörper und einem insgesamt sehr niedrigen Energieverbrauch. Fensterlüften ist optional, da das System die Frischluftzufuhr effizient und automatisch regelt.
Zvláštním lákadlem tohoto bytu je terasa, vestavěná kuchyň a špičkový větrací systém, který zajišťuje stálou příjemnou kvalitu vnitřního vzduchu. Díky energeticky uvědomělé výstavbě dle standardů KfW máte prospěch z vynikající izolace, nízkoteplotních topných těles a celkově velmi nízké spotřeby energie. Větrání oken je volitelné, neboť systém efektivně a automaticky reguluje přívod čerstvého vzduchu.
Die Wohnung überzeugt zudem mit einer hochwertigen Ausstattung, modernen Einbauküche und einer gemütlichen Terrasse.
Byt dále ohromuje svou prvotřídní výbavou, moderní vestavěnou kuchyní a útulnou terasou.
Optional steht Ihnen ein Außenstellplatz für 60EUR monatlich, oder ein Garagenstellplatz für 90EUR zu Verfügung.
Volitelně máte k dispozici venkovní parkovací místo za 60 EUR měsíčně, nebo garážové místo za 90 EUR.
Bei Interesse gerne per E-mail, Chat oder Telefon unter 017631645766 melden.
Pokud máte zájem, kontaktujte nás prosím e-mailem, prostřednictvím chatu nebo telefonicky na čísle 017631645766.
Die Wohnung befindet sich in einer angenehm ruhigen und dennoch zentral gelegenen Lage. Geschäfte des täglichen Bedarfs, Supermärkte, Bäckereien und Apotheken sind in wenigen Minuten erreichbar.
Byt se nachází v příjemně klidné a přitom centrálně situované lokalitě. Obchody pro každodenní potřeby, supermarkety, pekárny a lékárny jsou dosažitelné během několika minut.
Eine gute Verkehrsanbindung gibt es auch.
K dispozici je také dobré dopravní spojení.
Die Lage verbindet Ruhe und Komfort mit einer hervorragenden Alltagsinfrastruktur.
Lokalita spojuje klid a komfort s vynikající infrastrukturou pro každodenní potřeby.
- Hochglanz Weiße Einbauküche mit moderner Ausstattung (blaue Folie muss auf dem Bild noch ab)
- Vinylboden
- Terrasse
- elektrische Rollläden
- Spülmaschine
- Wasch-Trockner
- Lüftungsanlage
- Vysoce lesklá bílá vestavěná kuchyň s moderním vybavením (modrá fólie musí být z fotky odstraněna)
- Vinylová podlaha
- Terasa
- Elektrické rolety
- Myčka nádobí
- Kombinovaná pračka-sušička
- Větrací systém
Makleranfragen unerwünscht.
Dopyty od realitních makléřů nejsou vítány.
V okolí nemovitosti najdete
Stále hledáte to pravé?
Nastavte si hlídacího psa. Nabídky vybrané na míru dostanete souhrnně 1× denně e-mailem. S Premium profilem máte k ruce hlídačů rovnou 5 a když se něco objeví, informují vás obratem.











