
Pronájem bytu 4+kk • 155 m² bez realitkyHintere Dorfstraße 27, , Bavorsko
Hintere Dorfstraße 27, , BavorskoMHD 1 minuta pěšky • ParkováníPopis nemovitosti – 4,5-pokojový byt s přilehlou zahradou, balkonem a dvěma parkovacími místy
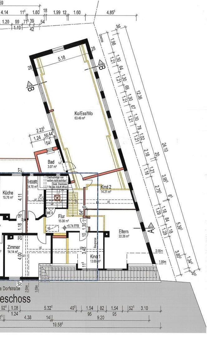
Tento zrekonstruovaný 4,5-pokojový byt v půdním podlaží obytného domu zaujme prostorným uspořádáním místností, kvalitními vybavitelskými prvky a blízkostí přírody. S přibližně 155 m² obytné plochy nabízí vynikající prostorový potenciál pro náročné nájemce.
Přehled vybavení:
• Nová vestavěná kuchyň včetně moderních elektrospotřebičů (trouba, sporák, myčka, lednice, digestoř)
• Prostorný balkon s výhledem do zeleně – ideální pro slunečné hodiny a klidné večery
• Nádherná část zahrady s dostatkem místa pro odpočinek, vhodná také pro rodiny s dětmi nebo zahrádkáře
• 4,5 dobře navržených pokojů – ideální pro obývací/jídelní prostor, dvě ložnice a domácí kancelář/dětský pokoj
• Sklepní kóje pro další úložný prostor
• Dvě parkovací místa přímo u domu pro pohodlné parkování
• Plánovaná obnova fasády včetně nového nátěru – estetické vylepšení v blízké budoucnosti
Náklady na pronájem v detailu:
• Základní nájemné: 1350 €
• 2× parkovací místo: po 40 €
• Paušál za používání kuchyně: 40 €
• Provozní náklady (včetně topení, vody atd.): 300 €
• Celkem pronájem (teplý nájem): 1.770 €
Tento byt nabízí nejen prostorný pocit z bydlení, ale také vysoce kvalitní vybavení s perspektivou budoucnosti díky plánované energetické rekonstrukci.
Popis lokality – bydlení v Sulzbach am Main, přímo u parku
Byt se nachází v klidné a žádané lokalitě Sulzbach am Main, bezprostředně vedle parku Sulzbachpark. Tato adresa spojuje bydlení blízko přírody s vynikající infrastrukturou.
Výhody lokality:
• Přímá poloha u parku – ideální pro procházky, sportovní aktivity nebo odpočinek v přírodě
• Centrální, přesto klidná obytná ulice bez průjezdové dopravy
• Blízké zásobování (supermarkety, pekárny, lékárny) dostupné během několika minut
• Vzdělávací instituce, jako jsou školy a mateřské školy, v bezprostředním okolí
• Dobré spojení s veřejnou dopravou (autobusové zastávky v docházkové vzdálenosti)
• Rychlá dostupnost silnice B469 – vynikající spojení do Aschaffenburgu a celého okresu Miltenberg
Závěr:
Tento atraktivní byt uchvacuje svou velikostí, vybavením a polohou. Je ideální pro ty, kteří si přejí prostorné a klidné bydlení, aniž by museli obětovat infrastrukturu a mobilitu. Nastěhujte se a cítíte se jako doma!
Byt je momentálně stále v rekonstrukci. Fotografie místností jsou upravené, aby bylo možné získat představu o tom, jak bude byt vypadat po dokončení rekonstrukce. Pokud máte zájem o byt, zašlete nám, prosím, vyplněný nájemní sebehodnotící formulář z Immoscout nebo Immowelt.
V okolí nemovitosti najdete
Stále hledáte to pravé?
Nastavte si hlídacího psa. Nabídky vybrané na míru dostanete souhrnně 1× denně e-mailem. S Premium profilem máte k ruce hlídačů rovnou 5 a když se něco objeví, informují vás obratem.







