Pronájem kanceláře • 393 m² bez realitkyWaldershoferstr. 49/51, , Bavorsko
Waldershoferstr. 49/51, , BavorskoMHD 2 minuty pěškyNíže naleznete překlad textu označeného XML tagem do češtiny:
Budova/prostory:
• Komerční prostory se nachází v přízemí, na celkové ploše 393 m², kterou je také možné dělit! V již energeticky zrekonstruované, vizuálně atraktivní budově.
• Klidný, čistý a udržovaný dům
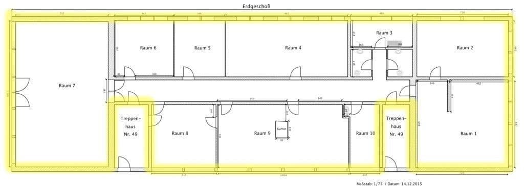
o Rozdělený na zasedací místnost, serverovnu, kuchyň, dámské/pánské toalety, 6 dalších místností různých velikostí, sklad nebo spisovnu s velkými dvojitými dveřmi vedoucími ven – určenými pro dodávky či podobné účely.
o A zároveň největší úspora nákladů díky dostupné síti napojené na všechna pracovní místa.
o Vlastní serverovna.
o Disponibilita měděného i optického (vláknového) připojení až k serveru.
• Bytovo-komerční dům postavený z masivních materiálů s místnostmi zalitými přirozeným světlem.
• Rozložení místností je variabilní a může být dle dohody přizpůsobeno požadavkům jednotlivých uživatelů, což umožňuje mnohostranné využití.
• Dostatečný reklamní prostor je k dispozici u a vedle budovy.
• Velká prosklená stěna, která je vhodná také jako výloha.
• Parkovací stání pro několik automobilů (pro zaměstnance či zákazníky) – až 14 ks. V přilehlé ulici je k dispozici další nabídka parkovacích míst.
• Centrální topení na olej.
• Na této úrovni se nacházejí oddělené dámské a pánské toalety.
• K budově vede několik vstupních možností.
Ostatní:
• Energetický štítek (hodnota energetické spotřeby 89 kWh/m²a).
• Bez makléřských poplatků a provizí.
• Předpokládaná volnost od července 2026, případně dle dohody.
• Další informace jsou k dispozici na vyžádání.
• Budova se nachází u vstupu do obce, na státní silnici č. 2177 – hlavní příjezdové komunikaci z Waldershofu do Marktredwitzu. V bezprostřední blízkosti sídlí firmy Cube, Scherdel, ABM Greiffenberger, Sievert (smíšené území). Budova je centrálně umístěná, pouhých 500 m od centra města.
• Zajištěno je optimální dopravní spojení s krátkou vzdáleností k dálnici A93 a silnici B303.
• Autobusová zastávka se nachází na hranici pozemku a železniční stanice je dosažitelná během několika minut pěšky.
• Příjezdová cesta k budově je prostorná a vhodná i pro nákladní dodávky – je zde k dispozici i nakládací rampa.
• V bezprostřední blízkosti (100 m) se nachází supermarket s řeznictvím a teplou obslužnou pultovou službou pro každodenní zásobování zaměstnanců.
• Komerční prostory se nachází v již energeticky zrekonstruované, vizuálně atraktivní budově.
• Klidný, čistý a udržovaný dům
o Rozdělený na zasedací místnost, serverovnu, kuchyň, dámské/pánské toalety, 6 dalších místností různých velikostí, sklad nebo spisovnu s velkými dvojitými dveřmi vedoucími ven – pro dodávky či podobné účely.
o Největší úspora nákladů díky existující síti napojené na všechna pracovní místa.
o Vlastní serverovna.
o Měděné i optické (vláknové) připojení až k serveru je k dispozici.
• Bytovo-komerční dům postavený z masivních materiálů s místnostmi naplněnými světlem.
• Rozložení místností je variabilní a může být dle dohody přizpůsobeno požadavkům jednotlivých uživatelů, což umožňuje různé možnosti využití.
• Dostatečný reklamní prostor je k dispozici na budově i vedle ní.
• Velká prosklená stěna je vhodná jako výloha.
• Parkovací stání pro několik osobních automobilů (zaměstnanců/k zákazníkům) – až 14 ks. V přilehlé ulici je k dispozici další nabídka parkovacích míst.
• Centrální topení na olej.
• Na této úrovni jsou k dispozici oddělené dámské a pánské toalety.
• Budova má několik vstupních možností.
Ostatní:
• Energetický štítek (hodnota energetické spotřeby 89 kWh/m²a).
• Bez makléřských poplatků a provizí.
• Předpokládaná volnost od července 2026, případně dle dohody.
• Další informace vám rádi poskytneme na vyžádání.
Parametry nemovitosti
| Stáří | Nad 50 let |
|---|---|
| Stav | Dobrý |
| Plocha kanceláře | 393 m² |
| Dostupné od | 1. 7. 2026 |
|---|---|
| Číslo inzerátu | 974406 |
| Cena za jednotku | 0 € / m2 |
Co tato nemovitost nabízí?
| MHD 2 minuty pěšky |
V okolí nemovitosti najdete
Stále hledáte to pravé?
Nastavte si hlídacího psa. Nabídky vybrané na míru dostanete souhrnně 1× denně e-mailem. S Premium profilem máte k ruce hlídačů rovnou 5 a když se něco objeví, informují vás obratem.














