
Pronájem kanceláře • 380 m² bez realitkyWilhelmstraße 78, , Bádensko-Württembersko
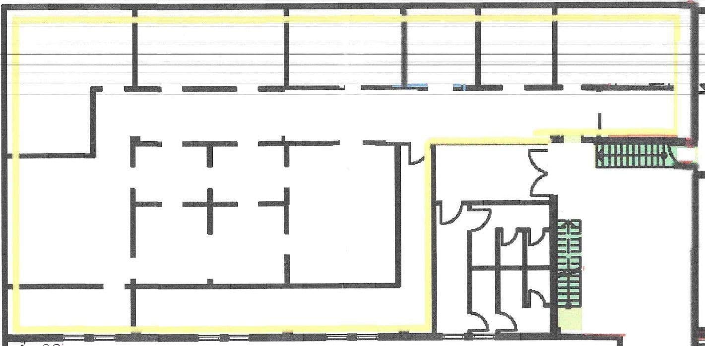
Wilhelmstraße 78, , Bádensko-WürttemberskoMHD 7 minut pěškyTato všestranně využitelná komerční plocha v prvním patře udržovaného obytného a obchodního domu nabízí na přibližně 380 m² prostorný základ například pro moderní pracovní, prezentační, fitness nebo školící koncepty.
Otevřená, protáhlá základní struktura je rovněž ideální pro firmy, které potřebují velké, souvislé prostory – například pro showroomy, školící místnosti, otevřené kancelářské prostory, kreativní zóny nebo prostory pro praxi.
Nesčetná okna zajišťují, že prostor je světlý a zalitý světlem, čímž poskytují velký prostor pro individuální uspořádání, pracovní ostrovy nebo prezentační plochy. Několik oddělených místností, sanitární zázemí a oblast bistr (kterou lze dle přání odstranit) doplňují nabídku.
Prostor je ve velmi dobrém stavu a může být po dohodě částečně zrekonstruován nebo renovován, což otevírá řadu možností, jak nemovitost přesně přizpůsobit vašemu konceptu využití.
Nemovitost se nachází ve dobře dostupné lokalitě v Reilingen. Tato lokalita nabízí dobrou dopravní dostupnost – přesně mezi dálnicemi A5 (6 km, 7 minut) a A6 (11 km, 10 minut) – a je snadno dosažitelná jak autem, tak hromadnou dopravou. V okolí se nachází řada obchodů, poskytovatelů služeb a gastronomických zařízení.
• Variabilní možnosti využití a prostorná, otevřená prostorová struktura – ideální například pro showroom, kancelář, školení, praxi, studio nebo agentury, stejně jako pro prezentační plochy, moderní pracovní prostředí až po malé skladové prostory
• Flexibilní uspořádání prostoru: Na přání lze přeměnit nebo doplnit příčkové zdi
• Parkování: Externí parkovací stání a podzemní garážová stání jsou k dispozici na vyžádání
• Sanitární zázemí dostupné
VYDAVATEL
SPGI Grundstücks GmbH
Wilhelmstraße 78
68799 Reilingen
Tel.: +49 (0)6205 977496
Fax: +49 (0)6205 977468
spgi@schaumaplast.de
Údaje dle § 5 DDG (Zákon o využívání telekomunikačních služeb)
Jednatelé: Bernhard Hauck, Markus Hoffmann
Sídlo společnosti je v Reilingen.
Zapsáno u rejstříkového soudu Mannheim, HRB 753795
Identifikační číslo DPH: DE 453291862
Parametry nemovitosti
| Stáří | Nad 50 let |
|---|---|
| Stav | Dobrý |
| Číslo inzerátu | 974457 |
| Cena za jednotku | 0 € / m2 |
| Dostupné od | 19. 12. 2025 |
|---|---|
| Podlaží | 1. podlaží |
| Plocha kanceláře | 380 m² |
Co tato nemovitost nabízí?
| MHD 7 minut pěšky |
V okolí nemovitosti najdete
Stále hledáte to pravé?
Nastavte si hlídacího psa. Nabídky vybrané na míru dostanete souhrnně 1× denně e-mailem. S Premium profilem máte k ruce hlídačů rovnou 5 a když se něco objeví, informují vás obratem.













