Prodej domu • 1109 m² bez realitky, Bavorsko
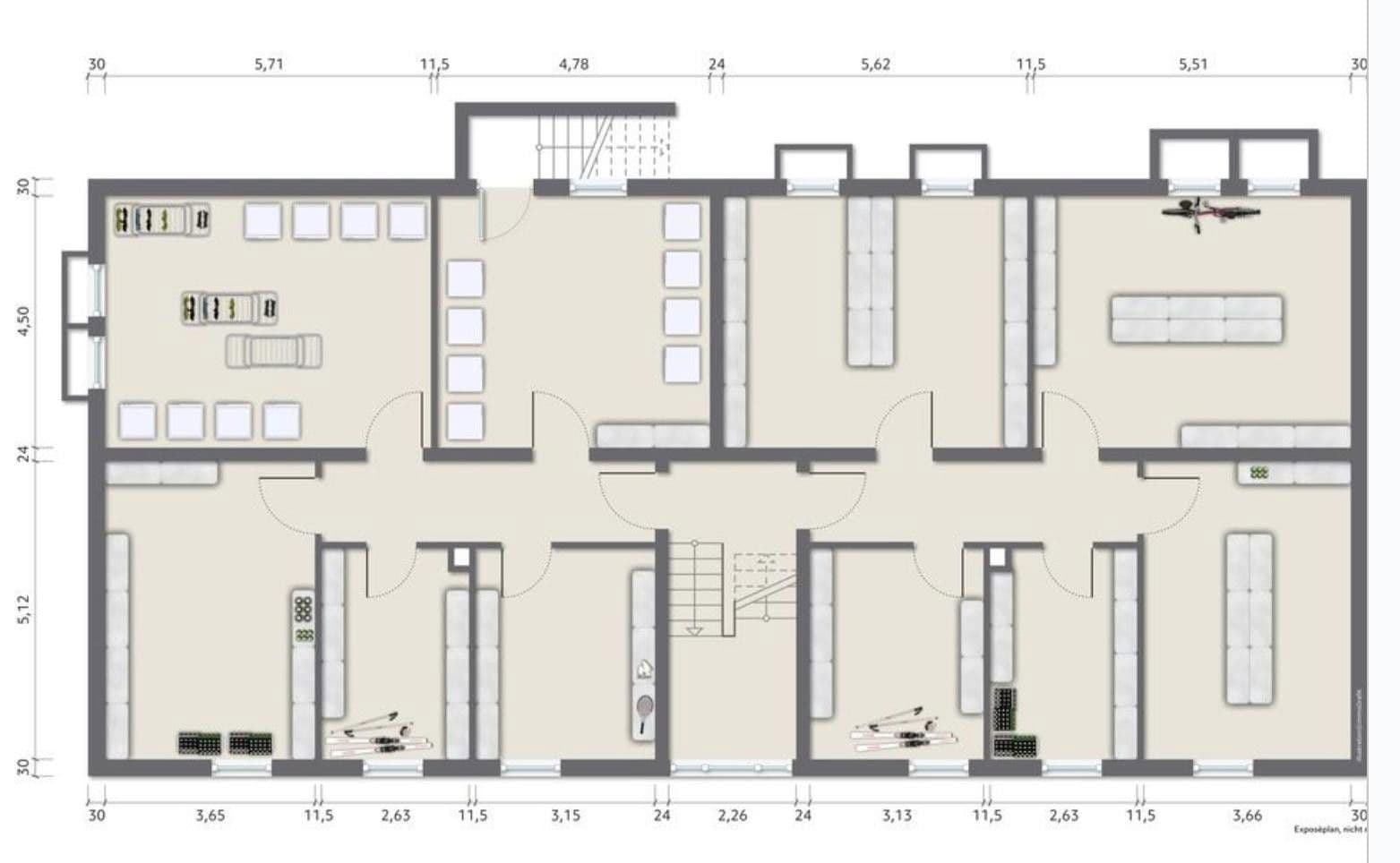
U této nemovitosti se jedná o dva řadové domy s více byty – jeden se čtyřmi a druhý se šesti bytovými jednotkami. Celkově objekt v jeho současném stavu zahrnuje 8 resp. 12 bytů (po rozšíření podkroví) s celkovou obytnou plochou přibližně 1.109 m². Potenciál spočívá ve zprovoznění podkroví (již částečně zrekonstruováno, včetně elektroinstalace, ohřevu vody a topení) pro vytvoření 4 bytů a také v možnosti změny dispozice. Budovy byly postaveny v roce 1960 a nacházejí se na pozemku o výměře 2.337 m².
Domy mají sklep, přízemí, patro a podkroví. Byty jsou přístupné prostřednictvím centrálního schodiště. Vybavení odpovídá solidnímu standardu. V domě č. 42 se nachází centrální olejové topení.
U domu číslo 40 je nutná instalace vlastního centrálního topení, protože doposud byla zásoba tepla zajišťována prostřednictvím sousední budovy. Kromě toho má pozemek další stavební potenciál.
Cena se vztahuje na akvizici nově založené společnosti Projekt GmbH. Existuje také možnost zakoupit domy bez této společnosti, přičemž cena činí 2,3 mil. €.
Nemovitost se nachází na jižním okraji města Herzogenaurach – klidně situovaná, ale přesto uprostřed dění. Veškeré obchody, školy, školky i zastávky veřejné dopravy jsou snadno dostupné pěšky. Navíc se za pár minut dostanete do centra města se svými obchody, restauracemi a kavárnami.
Herzogenaurach je známý nejen pro své půvabné historické centrum, ale také jako sídlo renomovaných společností jako Adidas, Puma a skupiny Schaeffler. Město tak nabízí ideální kombinaci vysoké kvality života a ekonomické síly. Díky blízkosti dálnice A3 jsou Erlangen a Norimberk rychle dostupné, což umožňuje optimální propojení pracovního života, volného času a bydlení.
Lokalita tedy spojuje vše, co moderní bydlení nabízí: klid v každodenním životě, krátké vzdálenosti ke všem důležitým zařízením a vynikající spojení s regionem.
Většina bytů je ideálně vhodná pro páry nebo rodiny! V budoucnu je také možné využití menších jednotek prostřednictvím speciálních modelů pronájmu, například pronájem pro expaty. Mezi největší přímé zaměstnavatele patří společnosti Schaeffler, Puma, Adidas, Siemens, Areva a FAU (Friedrich-Alexander-Universita).
• Sklepní místnost
• Není chráněný jako samostatný památkový objekt / součást chráněného celku
• Dostatek parkovacích míst, kolových stojanů a garáží
• Elektroinstalace je již u téměř všech jednotek modernizována
• Centrální topení je umístěno v domě č. 42; dům č. 40 je momentálně bez topení
• Venkovní rolety, částečně elektrické
• Balkony/terasy a prostorné zahrady – je možné jejich budoucí přidělení
• Podkrovní prostory s možností dalšího rozvoje pro 4 byty, o zahájení stavebních prací již bylo informováno
Údaje podle § 5 TMG
G & T Immobilien GmbH
Ředitelé: Sebastian Gleißner a Maximilian Troll
Kolbstr. 10,
90513 Zirndorf
Okresní soud Fürth
Obchodní rejstřík: HRB 22041
Kontakt:
Telefon: +49 1512 0105030
E-mail: verwaltung@smg-holding.de
Parametry nemovitosti
| Stáří | Nad 50 let |
|---|---|
| Číslo inzerátu | 974830 |
| Užitná plocha | 1 109 m² |
| Celkem podlaží | 2 |
| Dostupné od | 1. 1. 2026 |
|---|---|
| PENB | F - Velmi nehospodárná |
| Plocha pozemku | 2 337 m² |
| Cena za jednotku | 1 984 € / m2 |
Co tato nemovitost nabízí?
| Balkón | |
| Garáž | |
| Parkování | |
| Terasa |
| Sklep | |
| MHD 1 minuta pěšky |
V okolí nemovitosti najdete
Stále hledáte to pravé?
Nastavte si hlídacího psa. Nabídky vybrané na míru dostanete souhrnně 1× denně e-mailem. S Premium profilem máte k ruce hlídačů rovnou 5 a když se něco objeví, informují vás obratem.



























