
Prodej bytu 3+1 • 80 m² bez realitkyBremerhaven Klushof Bremen 27580
Hier wartet eine helle und vollumfänglich renovierte Wohnung auf Sie!
Zde na vás čeká světlý a kompletně zrekonstruovaný byt!
Diese gut geschnittene 3-Zimmer-Wohnung befindet sich im 3. Obergeschoss eines gepflegten Mehrfamilienhauses aus dem Jahr 1974 und bietet eine Wohnfläche von ca. 80 m².
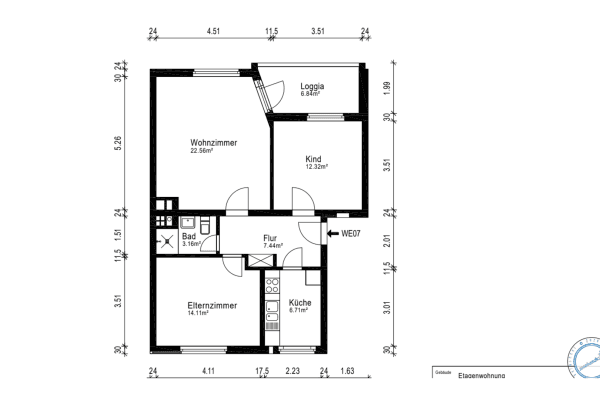
Tento prostorně řešený třípokojový byt se nachází ve 3. patře udržovaného bytového domu z roku 1974 a nabízí obytnou plochu přibližně 80 m².
Die Wohnung verfügt nicht nur über zwei große Balkone, sondern auch über ein großes Wohnzimmer und Schlafzimmer, ein Arbeits-/Kinderzimmer sowie ein Tageslichtbad mit Dusche.
Byt má nejen dvě velké balkony, ale také prostorný obývací pokoj a ložnici, pracovnu/ dětský pokoj a koupelnu s denní světlem a sprchovým koutem.
Zum Angebot gehören auch ein großer Kellerraum sowie ein gemeinschaftlicher Fahrradkeller.
Nabídce rovněž náleží velká sklepní místnost a společný sklep na kola.
Die Liegenschaft wurde in der Vergangenheit durch eine nachträgliche Außendämmung energetisch verbessert. Ende 2024 wurde zudem eine neue Gasheizung eingebaut.
Nemovitost byla v minulosti zlepšena energeticky díky dodatečné vnější izolaci. Na konci roku 2024 byla také instalována nová plynová topení.
Die Immobilie befindet sich in der Nordstraße in Bremerhaven. Einkaufsmöglichkeiten, ärztliche Versorgung, Apotheken, Schulen und ÖPNV sind in ganz unmittelbarer Nähe. Die nächste Bushaltestelle ist nur ca. 100 Meter entfernt.
Nemovitost se nachází v ulici Nordstraße v Bremerhavenu. Obchody, lékařská péče, lékárny, školy a veřejná doprava jsou v bezprostřední blízkosti. Nejbližší autobusová zastávka je vzdálena jen přibližně 100 metrů.
- Küche mit Zugang zu einem „Frühstücksbalkon“ (ca. 5 qm)
Kuchyně s přístupem na „snídaňový balkon“ (cca 5 m²)
- Bodenbeläge: neues modernes Laminat und helle Fliesen im Bad
Podlahové krytiny: nové moderní laminátové podlahy a světlé dlaždice v koupelně
- Weiße Innentüren
Bílé vnitřní dveře
- Wohnzimmer (ca. 26 qm) mit einem großen Balkon (ca. 9 qm) in Südwestausrichtung
Obývací pokoj (cca 26 m²) s velkým balkonem (cca 9 m²) orientovaným na jihozápad
- Großes Schlafzimmer (19 qm) mit Balkonzugang
Prostorná ložnice (19 m²) s přístupem na balkon
- Modernes Badezimmer mit Dusche und Fenster
Moderní koupelna se sprchou a oknem
- Großzügiger Eingangsbereich
Prostorná vstupní hala
- Kellerraum
Sklepní místnost
- Separater Fahrradkeller
Samostatný sklep na kola
- Energieausweis: Energieeffizienzklasse D
Energetický štítek: energetická účinnost třídy D
- E-CHECK geprüft
Prošel E-CHECKem
- Auf Wunsch kann auch eine Garage im Hof erworben werden.
Na vyžádání lze zakoupit i garáž v dvoře.
V okolí nemovitosti najdete
Stále hledáte to pravé?
Nastavte si hlídacího psa. Nabídky vybrané na míru dostanete souhrnně 1× denně e-mailem. S Premium profilem máte k ruce hlídačů rovnou 5 a když se něco objeví, informují vás obratem.













