
Prodej bytu 1+kk • 33 m² bez realitkyČakovická, Praha - Prosek
Čakovická, Praha - ProsekČástečně vybaveno • Výtah • Balkón 6,5 m²Využít program Bydlím hned, koupím později
Hledáte vlastní bydlení, ale nechcete nebo nemůžete řešit vysokou hypotéku?
Právě tady dává družstevní bydlení perfektní smysl.
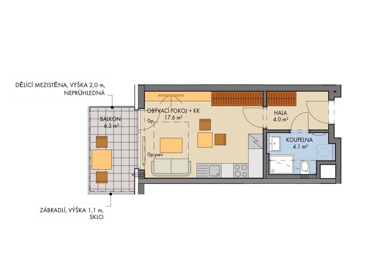
V moderní cihlové novostavbě nabízím k prodeji byt 1+kk o velikosti 34 m² (27 m² + 7 m²), umístěný ve 2. nadzemním podlaží, doplněný o prostorný balkon 6,5 m². Dispozice je praktická, vzdušná a nabízí velký potenciál pro chytré řešení interiéru.
Metro je vzdálené pouhé 4 minuty chůze, což zajišťuje rychlou dostupnost centra i skvělou dopravní obslužnost.
Tento byt je v družstevním vlastnictví, což výrazně snižuje nároky na financování:
2 700 000 Kč = odstupné (vstupní investice)
3 400 000 Kč = anuita, která se splácí formou měsíčního nájemného.
Ideální řešení pro ty, kteří:
- nedosáhnou na vysokou hypotéku
- nechtějí blokovat velkou část příjmů splátkami
- hledají chytřejší a dostupnější cestu k vlastnímu bydlení.
Pro koho je byt ideální?
- mladé jednotlivce a páry
- klienty, kteří nechtějí nebo nemohou čerpat velkou hypotéku
- investory hledající zajímavý investiční potenciál
Parametry nemovitosti
| Dostupné od | 28. 1. 2026 |
|---|---|
| Konstrukce budovy | Cihla |
| Vybaveno | Částečně |
| Číslo inzerátu | 975118 |
| PENB | B - Velmi úsporná |
| Užitná plocha | 33 m² |
| Stav | Novostavba |
|---|---|
| Dispozice | 1+kk |
| Podlaží | 2. podlaží z 5 |
| Vlastnictví | Družstevní |
| Umístění | Klidná část |
| Cena za jednotku | 81 818 Kč / m2 |
Co tato nemovitost nabízí?
| Balkón 6,5 m² | |
| Bezbariérový přístup | |
| Výtah |
V okolí nemovitosti najdete
Využít program Bydlím hned, koupím později
Stále hledáte to pravé?
Nastavte si hlídacího psa. Nabídky vybrané na míru dostanete souhrnně 1× denně e-mailem. S Premium profilem máte k ruce hlídačů rovnou 5 a když se něco objeví, informují vás obratem.










