Prodej pozemku • 486 m² bez realitkyUntere Dorfstraße 2b Eisenhofen Eisenhofen Bayern 85253
Okamžitě zhotovitelná stavba – Stavební povolení od září 2025 již bylo vydáno (uvolněný územní plán č. 71).
Optimální využití jižně orientovaného pozemku prostřednictvím individuálně navrženého duplexu pro 2 samostatné obytné jednotky ve standardu Energetická účinnost domu 55.
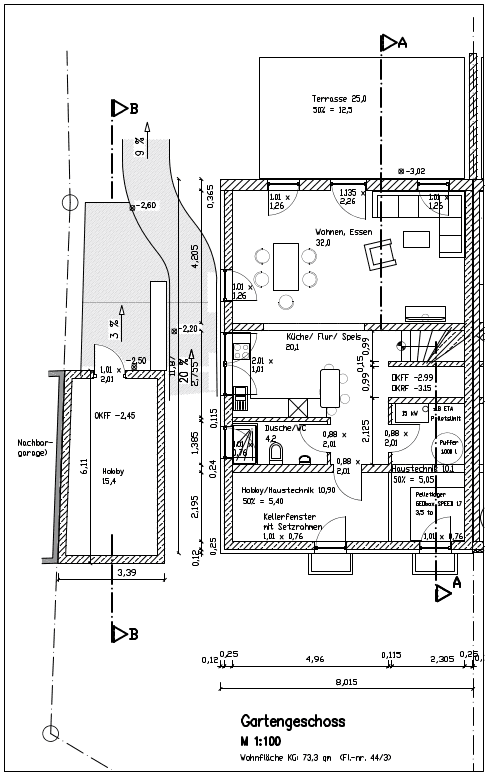
Garáž umístěná v suterénu.
Obytná jednotka 1 (dva spodní podlaží): 139 m² obytné plochy.
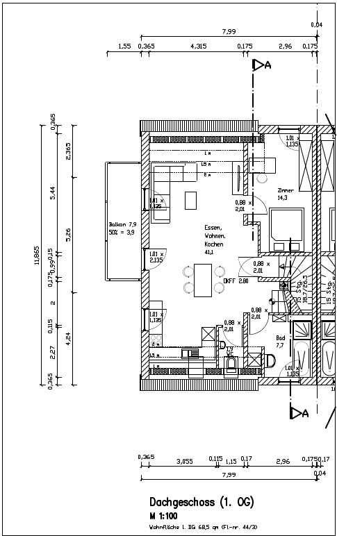
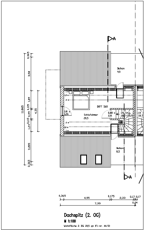
Obytná jednotka 2 (dva horní podlaží): 89 m² obytné plochy.
Stavební parcela o rozloze 486 m² – plně připojená k veřejné komunikaci se všemi inženýrskými sítí (voda, kanalizace, elektřina, T-com).
Stavební znalostní posudek, návrhová statika a výpočty výztuže již byly vyhotoveny.
Máme také povolení podle památkové ochrany.
Plánovací dokumentace ke stavebnímu povolení, rozloha pozemku, obytné plochy atd. jsou k dispozici v digitální podobě a může je v průběhu prohlídky nahlédnout zájemce.
Prodávám výhradně soukromě a žádám, aby se mi nepřihlašovali makléři. Všechna fotografie v tomto exposé jsou chráněna autorskými právy a nesmí být třetími stranami používána ani dále předávána.
Eisenhofen, s přibližně 900 obyvateli, se nachází v malebné oblasti Glonntal, uprostřed klidných kopců mezi Dachau a Altomünster, severozápadně od Mnichova. S-Bahn stanice Erdweg (linka S2) se nachází ve vzdálenosti 950 m a nabízí přímé vlakové spojení do Mnichova každých 30 minut. Vstupní bod na dálnici A8 vedoucí k Sulzemoos je vzdálen přibližně 11 km.
K odpočinku v Eisenhofenu zve řada pěších a cyklistických tras. V důsledku neustálého přílivu obyvatel do metropolitní oblasti Mnichova se infrastruktura neustále rozvíjí, např. v oblasti péče o děti, sportovních a volnočasových aktivit a nákupních možností.
Dále jsou poblíž k dispozici střední školy jako Realschule, gymnázium a FOS, které se nacházejí v Markt Indersdorf, pouhé 2 stanice S-Bahn. Základní a střední škola, EDEKA obchod, lékárna, radnice, restaurace, sportovní klub, fitness centrum apod. se nacházejí v hlavní části Erdwegu, přibližně kilometr odtud.
Parametry nemovitosti
| Číslo inzerátu | 975401 |
|---|---|
| Cena za jednotku | 926 € / m2 |
| Plocha pozemku | 486 m² |
|---|
Co tato nemovitost nabízí?
| MHD 1 minuta pěšky |
V okolí nemovitosti najdete
Stále hledáte to pravé?
Nastavte si hlídacího psa. Nabídky vybrané na míru dostanete souhrnně 1× denně e-mailem. S Premium profilem máte k ruce hlídačů rovnou 5 a když se něco objeví, informují vás obratem.















