Prodej domu 4+1 • 104 m² bez realitkyGriegweg 23a Geretsried Geretsried Bayern 82538
Griegweg 23a Geretsried Geretsried Bayern 82538MHD 3 minuty pěšky • Parkování • GarážNa prodej je částečně zrekonstruovaná polodům z roku 1970, nacházející se na pozemku o rozloze 397 m².
Obytná plocha činí přibližně 104 m² a rozkládá se na přízemí a patro. Navíc nabízí podkroví další možnosti pro úpravy. V suterénu se nachází zrekonstruovaný, vytápěný volnočasový pokoj.
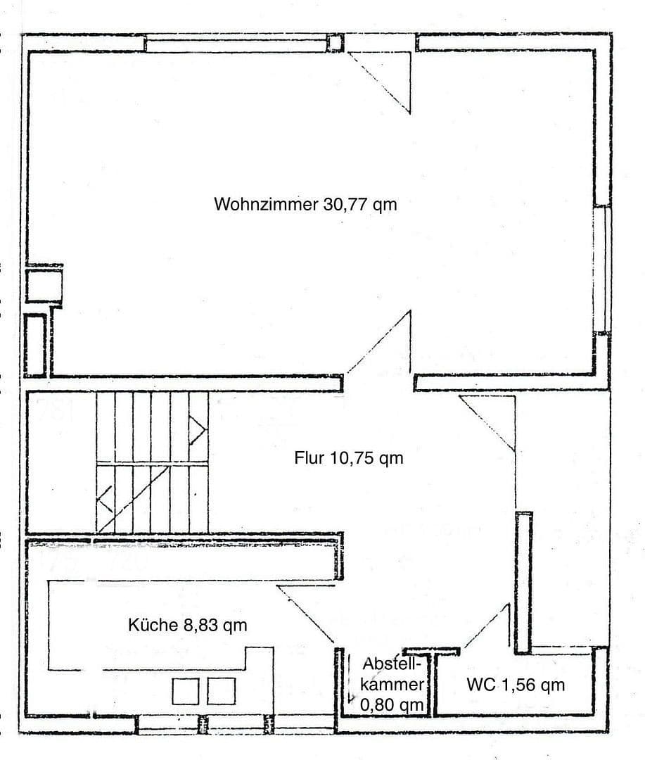
V přízemí se nachází obývací pokoj s parketovou podlahou z dubových tyčí, kuchyně, samostatné WC a úložná místnost. Z obývacího prostoru je přímý vstup do zahrady. Dům disponuje dvěma zahradami – předzahrádkou a větší zahradou v zadní části s přibližně 16 m² terasy, ideální pro odpočinek nebo rodinné aktivity.
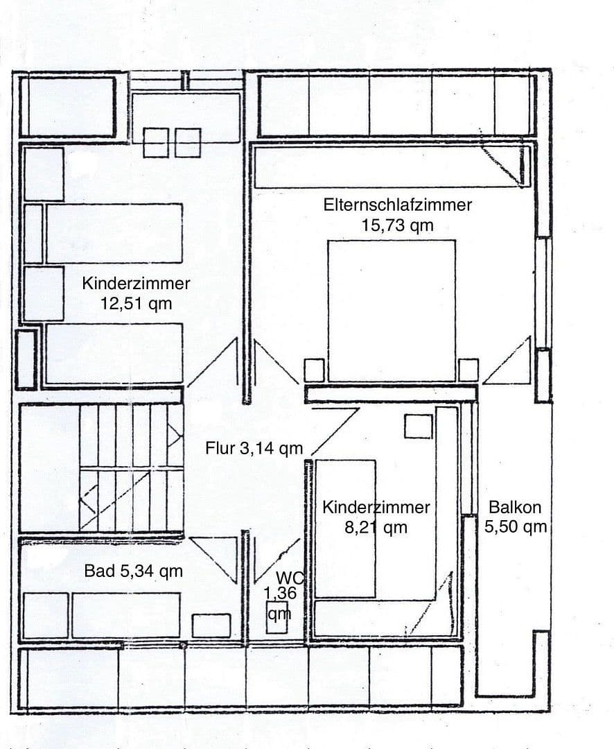
V patře se nachází ložnice rodičů, dvě dětské pokoje, koupelna s vanou, samostatné WC a přístup na balkon. Podlahy ve všech pokojích na této úrovni byly v roce 2018 nahrazeny vinylovou podlahou.
Podkroví momentálně obsahuje velký pokoj s oknem, ale není vytápěné a nabízí řadu možností pro další úpravy.
V suterénu se kromě kotelny, prádelny a úložných prostor nachází zrekonstruovaný, vytápěný volnočasový pokoj s vinylovou podlahou a oknem (světelná šachta), který je aktuálně využíván jako dětský pokoj.
K domu náleží garáž a dvě další parkovací místa přímo před domem. Garáž je potřeba zrekonstruovat, přičemž její cena činí 10 000 €.
Nemovitost je v současnosti stále obývána majitelkou, která se hodlá zmenšit a plánuje brzký odchod po prodeji.
Údaje o ploše:
Obytná plocha činí přibližně 104 m² a zahrnuje částečně (25 %) započítanou terasu a balkon.
Dále jsou k dispozici přibližně 49 m² užitné plochy v suterénu a přibližně 35 m² užitné plochy v nevyhřívaném podkroví.
V ložnicích, dětských pokojích a koupelně se místy setkávají s krovními svahy.
Všechny údaje o ploše jsou založeny na vlastních výpočtech a poskytovány bez záruky.
Nemovitost se nachází v klidné obytné oblasti ve vybudovaném sektoru, tzv. Hudebnické čtvrti v Geretsriedu, která je známá svou rodinnou atmosférou.
Základní škola a střední škola, školky, supermarket, lékárna, restaurace, kostel i autobusová zastávka jsou dosažitelné pěšky.
Lokalita je ideální pro rodiny s dětmi, které ocení klidné prostředí s dobrou infrastrukturou.
• Většina oken byla asi v roce 2014 vyměněna (trojité zasklení)
• Venkovní parapety z granitu
• Elektrické rolety v obývacím pokoji
• Vinylová podlaha v patře (2018)
• Vestavěná kuchyň (asi 2010)
• Vytápěný volnočasový pokoj v suterénu s oknem (světelná šachta)
• Podkroví s rozšířeným využitelným potenciálem (aktuálně nevyhřívané)
• Terasa a několik zahradních ploch
V okolí nemovitosti najdete
Stále hledáte to pravé?
Nastavte si hlídacího psa. Nabídky vybrané na míru dostanete souhrnně 1× denně e-mailem. S Premium profilem máte k ruce hlídačů rovnou 5 a když se něco objeví, informují vás obratem.













