
Pronájem kanceláře • 24 m² bez realitkyKöln Sülz Nordrhein-Westfalen 50935
Köln Sülz Nordrhein-Westfalen 50935MHD 4 minuty pěškyTento zmodernizovaný komerční prostor v centrální lokalitě na ulici Zülpicher (pouze 1 minuta od Gürtelu) se vynikajícím způsobem hodí pro ordinace, koučovací a poradenské služby, kreativní a ateliérové využití, stejně jako pro kompaktní kancelář.
Prostor díky velkému výlohám nabízí velmi dobrou viditelnost a je vhodný jak pro provoz směřovaný k veřejnosti, tak i pro klidnější využití.
Skvělá poloha na ulici Zülpicher, jen pár kroků od Gürtelu.
Výborná dostupnost díky napojení na linky KVB, což zajišťuje ideální dojezd.
Jednotka byla v roce 2023 kompletně zmodernizována.
Modernizační opatření (2023):
- Nová vnitřní izolace včetně čerstvě omítnutých stropů a zdí
- Obnovena elektrická instalace s přídavkem dalších zásuvek
Podlahovou krytinu je možné po konzultaci převzít.
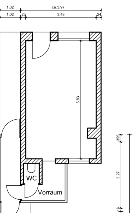
Velké výloha s přibližně 20 m² přístupné hlavní plochy. Zadní část zahrnuje samostatnou místnost s umyvadlem a WC.
Další individuální úpravy mohou být domluveny s pronajímatelem.
Vhodné pro:
• Ordinaci / ošetřovnu
• Poradenskou nebo koučovací místnost
• Malý prodejní nebo servisní prostor
• Kreativní nebo ateliérové využití
• Kancelář nebo sklad pro online obchod / start-upy
Parametry nemovitosti
| Dostupné od | 2. 1. 2026 |
|---|---|
| Číslo inzerátu | 975967 |
| Cena za jednotku | 22 € / m2 |
| Stav | Po rekonstrukci |
|---|---|
| Plocha kanceláře | 24 m² |
Co tato nemovitost nabízí?
| MHD 4 minuty pěšky |
V okolí nemovitosti najdete
Stále hledáte to pravé?
Nastavte si hlídacího psa. Nabídky vybrané na míru dostanete souhrnně 1× denně e-mailem. S Premium profilem máte k ruce hlídačů rovnou 5 a když se něco objeví, informují vás obratem.




