Prodej domu 5+1 • 114 m² bez realitky, Dolní Sasko
, Dolní SaskoMHD 2 minuty pěšky • ParkováníToto řadové středně velké rodinné bydlení se nachází v žádané rezidenční oblasti v malebném Rotenburgu. Dobře promyšlený půdorys nabízí dostatek prostoru pro velkou rodinu.
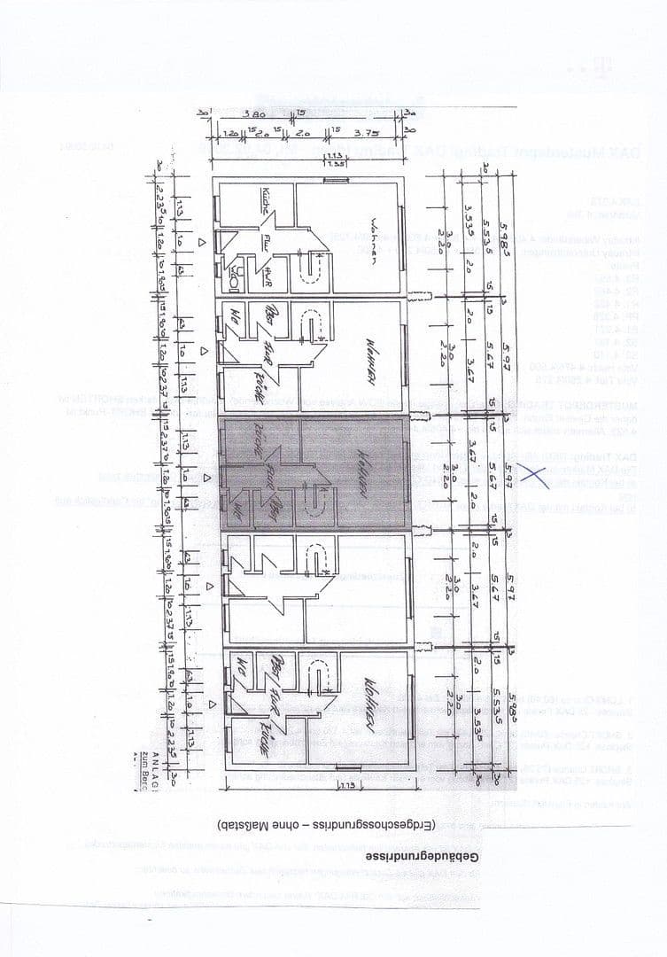
V přízemí domu se nachází kuchyň vybavená vestavěnou kuchyňskou linkou, velký a světlý obývací a jídelní kout s přístupem na terasu a malou nenáročnou zahrádku. Dále je zde v přízemí také komora a hostinská toaleta.
V horním patře najdete tři ložnice a velkou koupelnu s vanou a sprchou. V půdním podlaží se nachází další ložnice a komora s topením. Před domem je vyhrazené parkovací místo pro automobil. V blízkém okolí se nacházejí školy, školky i možnosti pro nakupování.
Jde o preferovanou lokalitu s velmi dobrou dopravní dostupností. Dálniční tah A1 je dosažitelný během několika minut. Také je třeba zdůraznit blízkost k mateřským školám, školským zařízením a obchodním možnostem. Lékařská péče je v Rotenburgu zajištěna na vysoké úrovni.
Navíc existují velmi dobrá železniční spojení do Hamburku a Bremenu.
- cca 114 m² obytné plochy a cca 9 m² užitné plochy
- 5 pokojů rozmístěných do 3 úrovní
- koupelna s vanou a sprchou a hostinská toaleta
- slunná terasa s nenáročnou zahrádkou
- 1 parkovací místo pro automobil
- Vestavěná kuchyňská linka je vybavena novou troubou, novým keramickým varným panelem, novým digestoří a kombinací chladicí a mrazicí skříňky.
Při kontaktu uveďte prosím své telefonní číslo, adresu a e-mailovou adresu. Bez kompletních kontaktních údajů nebude poskytnuta žádná odpověď.
Veškeré další dotazy ohledně nemovitosti klidně zasílejte e-mailem.
V okolí nemovitosti najdete
Stále hledáte to pravé?
Nastavte si hlídacího psa. Nabídky vybrané na míru dostanete souhrnně 1× denně e-mailem. S Premium profilem máte k ruce hlídačů rovnou 5 a když se něco objeví, informují vás obratem.



















