Prodej domu • 300 m² bez realitkySlovinská, Brno - Královo Pole, Jihomoravský kraj
Slovinská, Brno - Královo Pole, Jihomoravský krajVybaveno • Parkování • Sklep 20 m² • Terasa 35,2 m²Tato nemovitost již od 151 945 Kč měsíčně s roční úrokovou sazbou od 4,29 %.
Investiční příležitost – 4 nové byty v klidné části Brna, Královo Pole
Nabízíme jedinečnou možnost vlastnit všechny čtyři byty v jednom bytovém domě v atraktivní a klidné lokalitě Brno – Královo Pole. Dům je rozdělen prohlášením vlastníka na 4 samostatné bytové jednotky a prošel kompletní rekonstrukcí dokončenou v roce 2024.
Byty byly navrženy s důrazem na moderní bydlení, funkční dispozice a dlouhodobou investiční hodnotu.
⸻
Technické a kvalitativní přednosti domu
• nové vstupní hliníkové dveře, okna mají izolační trojskla
• protipožární a bezpečnostní dveře do bytů
• tepelně izolovaný dům s protihlukovou izolací stěn i podlah
• vytápění tepelným čerpadlem (vzduch–voda)
• podlahové vytápění v celé ploše bytů
• samostatné měření teplé i studené vody, elektroměry a měřiče tepla v každém bytě
• fotovoltaická elektrárna s bateriemi pro celý dům
• výrazně nízké provozní náklady
⸻
Standard bytů
• ideálně přepracované dispozice
• nadstandardní koupelny s velkoformátovou dlažbou, moderní sanitou a pračkami
• teplovodní koupelnový žebřík s elektrickým příhřevem (funkční i v létě)
• kuchyňské linky se spotřebiči
• kompletní vybavení: nábytek, skříně i vstupní šatní skříně
• kombinace dlažby a laminátových podlah
• každý byt má terasu, balkón nebo lodžii
⸻
Exteriér a společné prostory
• za domem tichý vnitroblok s vlastní zahradou
• úklidová místnost ve společných prostorách
• malý sklípek
⸻
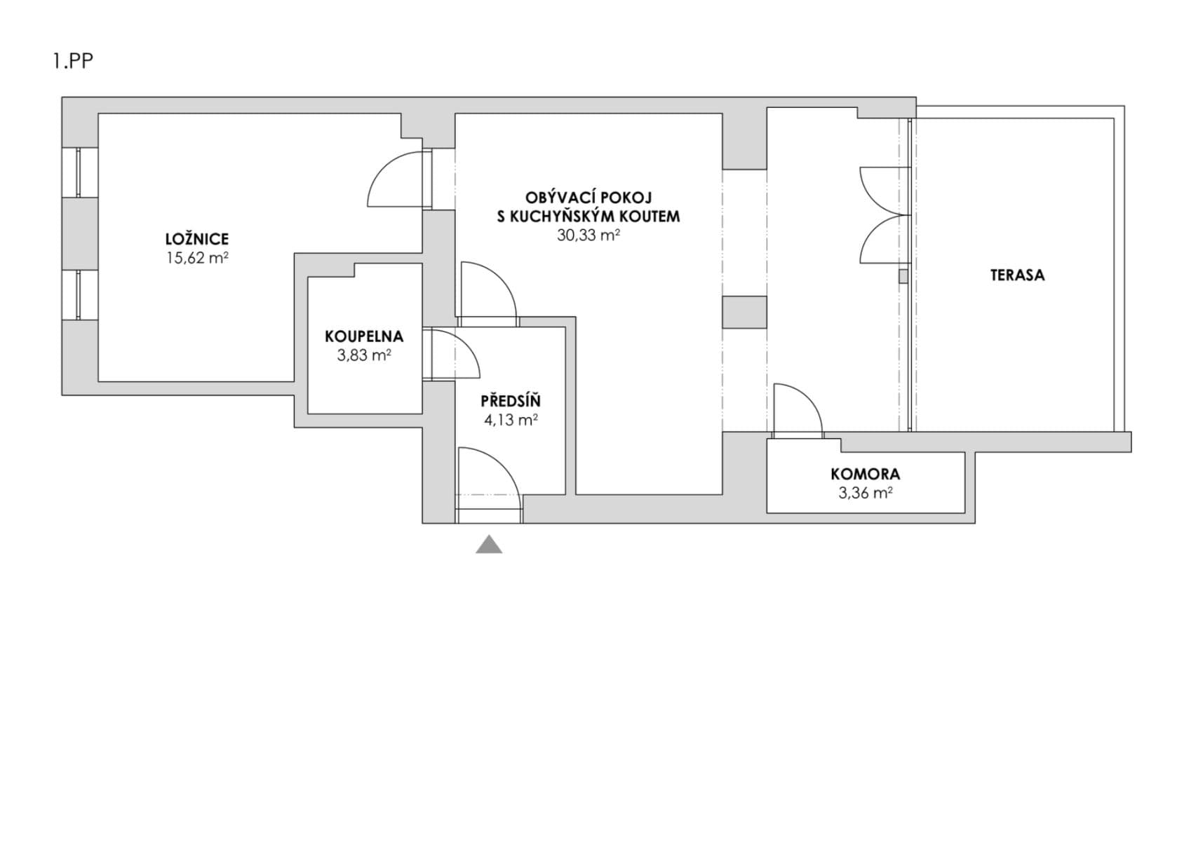
Přehled bytových jednotek
• Byt 01: 57,27 m² + lodžie 15,6 m²
• Byt 02: 60,5 m² + balkón 1,8 m²
• Byt 03: 66,21 m² + terasa 10,66 m²
• Byt 04: 80,58 m² + terasa 7,2 m²
⸻
Shrnutí
Ideální nabídka pro investory hledající stabilní výnos, případně pro zájemce o kombinaci vlastního bydlení a pronájmu. Klidná lokalita, kompletní rekonstrukce, moderní technologie a nízké náklady dělají z této nemovitosti výjimečnou příležitost na brněnském trhu.
Parametry nemovitosti
| Dostupné od | 29. 12. 2025 |
|---|---|
| Konstrukce budovy | Cihla |
| Vybaveno | Vybaveno |
| Nízkoenergetický | Ano |
| PENB | C - Úsporná |
| Užitná plocha | 300 m² |
| Rizika | Prověřit » |
| Stav | Po rekonstrukci |
|---|---|
| Dispozice | Ostatní |
| Číslo inzerátu | 976200 |
| Vlastnictví | Osobní |
| Poloha domu | V bloku |
| Plocha pozemku | 198 m² |
| Cena za jednotku | 128 085 Kč / m2 |
Co tato nemovitost nabízí?
| Sklep 20 m² | |
| Parkování |
| Terasa 35,2 m² |
V okolí nemovitosti najdete
Tato nemovitost již od 151 945 Kč měsíčně s roční úrokovou sazbou od 4,29 %.
Stále hledáte to pravé?
Nastavte si hlídacího psa. Nabídky vybrané na míru dostanete souhrnně 1× denně e-mailem. S Premium profilem máte k ruce hlídačů rovnou 5 a když se něco objeví, informují vás obratem.


















