Prodej pozemku • 1000 m² bez realitky, Dolní Sasko
- Přímý kontakt: Dieter Büge 01728118000
- Pro soukromé kupce bez provizí! Pro komerční kupce, kteří například chtějí postavit vícebytový dům (již jsou zájemci o první nájemní smlouvy), platíte 3 % plus 19 % DPH. Vaše stavební parcela se nachází v exkluzivní nové čtvrti s jedinečnou špičkovou polohou u jezera!
- Tyto atraktivní parcely (např. číslo domu 21) lze zakoupit VČETNĚ městské vily jako rozšiřitelného domu – viz https://www.allkauf-ausbauhaus.de/de/haeuser/hausserie/city-villa/city-villa-4 celkově již od 595 000 EUR. V ceně této městské vily (základní cena rozšiřitelného domu od 355 999 EUR) s 250 m² jsou zahrnuty: architektonické služby, balíček bezpečnosti stavby, balíček topení a elektroinstalace, trojitě zasklená okna včetně hliníkových rolety, vzduch-voda tepelná čerpadla, schody ze skutečného dřeva, podlahové krytiny a tapety, měření vzduchotěsnosti, světlá výška místností 2,75 m, izolační a opláštění-balíček, technika domu včetně potrubí, řízené větrací systémy s rekuperací tepla, sanitární zařízení, vnitřní dveře se zarážkami a obklady, zásuvky!
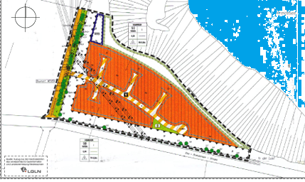
Pouze několik pozemků vhodných pro rodinný, dvojdomek a vícebytový dům je k dispozici. Pravděpodobně nejexkluzivnější nová čtvrť v Hemmooru s výhledem na jezero se nachází jen pár automobilových/kolových minut od centra města Hemmoor (okres Cuxhaven).
Nezmeškejte si své vysněné místo již dnes, neboť již nebude vyhlašována či schvalována žádná nová zóna u jezera! Počet parcel je omezen na 18.
9 volných pozemků pro soukromou výstavbu rodinného domu (viz WA 1): 839 až 1 990 m². Samostatně stojící domy a dvojdomky, jednopodlažní (+ mezipatro) až do šikmé výšky 8,50 m.
Pozemky pro rodinné a vícebytové domy (WA2, WA3) od 1 000 m². Šikmá výška 10 m (WA 2) a 11,50 m (WA 3) se 2- resp. 3 plnými podlažími. Využití stavební plochy (GFZ): 0,4.
Brzy zažijte výsadu a kouzlo ohromujícího panoramatického výhledu na křišťálově čisté jezero Kreide, který budete moci obdivovat jako náročný vlastník luxusní nemovitosti nebo jako nájemce exkluzivního bytu v nejlepší lokalitě!
Postavte si dle svých představ dům snů ve stavebním stylu Bauhaus, městskou vilu, dvojdomek nebo jako developer či investor vybudujte multifunkční dům na pozemku od 1 000 m², a to na prostorném pozemku o rozloze 810 až 1 990 m²!
Stavební pozemky v první linii u jezera mohou být zastavěny rodinnými, dvojdomky nebo samostatnými domy do 1 plného podlaží + 1 mezipatro s výškou budovy až 8,50 m, a pozemky pro rodinné a vícebytové domy ve druhé řadě mohou mít 2–3 podlaží s výškou do 10 respektive 11,50 m.
Pokud hledáte jako soukromý nebo komerční kupující pozemek v centrální a klidné špičkové poloze u jezera, je vhodné si co nejdříve domluvit prohlídku! K dispozici je jen pár pozemků! Upozornění: V této oblasti u jezera již nebudou schvalovány další stavební pozemky.
Kontaktní osobou pro nájemce, soukromé i komerční kupce je Dieter Büge. Telefonická dostupnost denně (i v sobotu/neděli) od 9.30 do 20.00 hod.! Telefon: 01728118000 nebo e-mail info@win-marketing.de Internet: www.wain-marketing.de. Exkluzivní prodej/kontaktní osoba: Dieter Büge – makléř nemovitostí a znalec
WIN-MARKETING, DIETER BÜGE, EXKLUZIVNÍ PRODEJ POZEMKŮ A NEMOVITOSTÍ OD ROKU 1992!
Těšíme se, že vás budeme moci podpořit při hledání stavebního pozemku, jako kupce domu či bytu, nebo jako nájemce bytu a společně s vámi již od začátku realizovat váš záměr.
Jezero Kreide se nachází ve Spolkové republice Německo, ve spolkovém státě Dolní Sasko, v okrese Cuxhaven. Jezero se nachází v západní části města Hemmoor-Warstade. Objevte Hemmoor – idylickou oázu na západním břehu řeky Oste v malebném okrese Cuxhaven, Dolní Sasko! Toto kouzelné městečko, obklopené nedotčenou přírodou, vám nabízí nejen vysokou kvalitu života, ale také dokonalé umístění pro váš nový domov.
Jen kousek od oblíbeného jezera Kreide vás čeká pozemek o rozloze cca 1 000 m² s jedinečným panoramatickým výhledem na jezero, ideální pro milovníky přírody a volnočasové aktivity. Jezero Kreide je oblíbenou lokalitou nejen pro potápění, ale i pro odpočinek a relaxaci – zde můžete nechat svou duši odpočinout a obdivovat krásu přírody.
S přibližně 8 700 obyvateli nabízí Hemmoor srdečnou komunitu a příjemné životní prostředí. Město se strategicky nachází mezi Stadtem a okresním městem Cuxhaven a je tak dokonalým výchozím bodem pro výlety do okolí.
Městské centrum Hemmooru, vzdálené jen cca 3 000 m, pro vás nabízí širokou škálu obchodních možností. V bezprostřední blízkosti najdete lékaře, autobusové zastávky, mateřskou školu a všechny školní stupně. Vše, co potřebujete pro každodenní život, máte pohodlně a rychle dostupné.
Díky napojení na silnici B73 máte rychlý přístup do měst Cuxhaven (cca 45 km), Stade (cca 30 km), Bremerhavenu (cca 55 km) a Hamburku (cca 83 km). Nemocnice v Hemmooru je dosažitelná autobusem nebo jízdou na kole za pouhých 15 minut a nabízí vám vynikající napojení na místní hromadnou dopravu.
Využijte příležitosti stát se součástí tohoto kouzelného maloměsta a naplňte si sen o vlastním bydlení v Hemmooru – místě, které spojuje kvalitu života, přírodu a komunitu!
Informace dle § 5 TMG
WIN-MARKETING, vlastník Dieter Büge
Oblast podnikání: DBI - DIETER BÜGE NEMOVITOSTI
Oprávnění podle § 34c GewO.
Adresa:
Süderende 12
D - 21782 Bülkau
Kontakt D/A/CH:
info(at)win-marketing.de
https://www.win-marketing.de
Telefon: 0172/8118000
Identifikační číslo DPH dle §27a zákona o DPH: DE204939419.
Řešení sporů
Evropská komise nabízí platformu pro online řešení sporů (OS): https://ec.europa.eu/consumers/odr.
Naši e-mailovou adresu naleznete výše v impressu.
Nejsme ochotni ani povinni účastnit se řízení o řešení spotřebitelských sporů před spotřebitelským sdružením.
Odpovědnost za obsah
Jako poskytovatel služby jsme dle § 7 odst. 1 TMG odpovědní za vlastní obsah na těchto stránkách podle obecných zákonů. Podle §§ 8 až 10 TMG však nejsme jako poskytovatel služby povinni sledovat přenášené nebo uložené cizí informace ani pátrat po okolnostech, které by naznačovaly nezákonné jednání.
Povinnosti odstranit nebo zablokovat používání informací dle obecných zákonů zůstávají nedotčeny. Jakákoli odpovědnost v této souvislosti vzniká až od okamžiku, kdy se dozvíme o konkrétním porušení práva. Jakmile se dozvíme o odpovídajících právních porušeních, obsah okamžitě odstraníme.
Odpovědnost za odkazy
Naše nabídka obsahuje odkazy na externí webové stránky třetích stran, nad jejichž obsahem nemáme žádnou kontrolu. Proto za obsah těchto cizích webů neneseme žádnou odpovědnost. Za obsah odkazovaných stránek je vždy odpovědný příslušný poskytovatel nebo provozovatel stránek. Odkázané stránky byly v době odkazování zkontrolovány na případné právní přestupky. Nezákonné obsahy nebyly při odkazování rozpoznatelné.
Trvalá kontrola obsahu odkazovaných stránek však není při absenci konkrétních náznaků právního porušení přiměřitelná. Jakmile se dozvíme o právních porušeních, takové odkazy okamžitě odstraníme.
Autorská práva
Obsahy a díla vytvořená provozovateli těchto stránek podléhají německému autorskému právu. Kopírování, úprava, šíření a jakékoli využití mimo hranice autorského práva vyžaduje písemný souhlas příslušného autora či tvůrce. Stahování a kopírování této stránky je povoleno pouze pro soukromé, nekomerční účely.
Pokud obsah na těchto stránkách nevytvořil provozovatel, jsou respektována autorská práva třetích stran. Obsahy třetích stran jsou zejména řádně označeny. Pokud přesto narazíte na porušení autorských práv, prosíme o příslušné upozornění. Jakmile se dozvíme o právních porušeních, takový obsah okamžitě odstraníme.
Parametry nemovitosti
| Dostupné od | 30. 12. 2025 |
|---|---|
| Plocha pozemku | 1 000 m² |
| Číslo inzerátu | 976235 |
|---|---|
| Cena za jednotku | 170 € / m2 |
Co tato nemovitost nabízí?
| MHD 8 minut pěšky |
V okolí nemovitosti najdete
Stále hledáte to pravé?
Nastavte si hlídacího psa. Nabídky vybrané na míru dostanete souhrnně 1× denně e-mailem. S Premium profilem máte k ruce hlídačů rovnou 5 a když se něco objeví, informují vás obratem.


















