Prodej domu 4+1 • 85 m² bez realitkyRahnsdorf Rahnsdorf Berlin 12589
Rahnsdorf Rahnsdorf Berlin 12589MHD 2 minuty pěšky • GarážJedinečná poloha, nezastižený výhled na Püttberge. Pozemek se nachází na svahu. Pouze jeden bezprostřední soused. Dům se nachází na konci ulice před přírodní rezervací.
Vyžaduje renovaci a částečnou sanaci. (viz fotografie, další informace rádi poskytneme e-mailem nebo telefonicky)
Střešní krytina a nátěr fasády byly obnoveny.
Horní patro: 1 pokoj, koupelna, balkon
Přízemí: 2 pokoje, kuchyň, hostinská toaleta, velká terasa
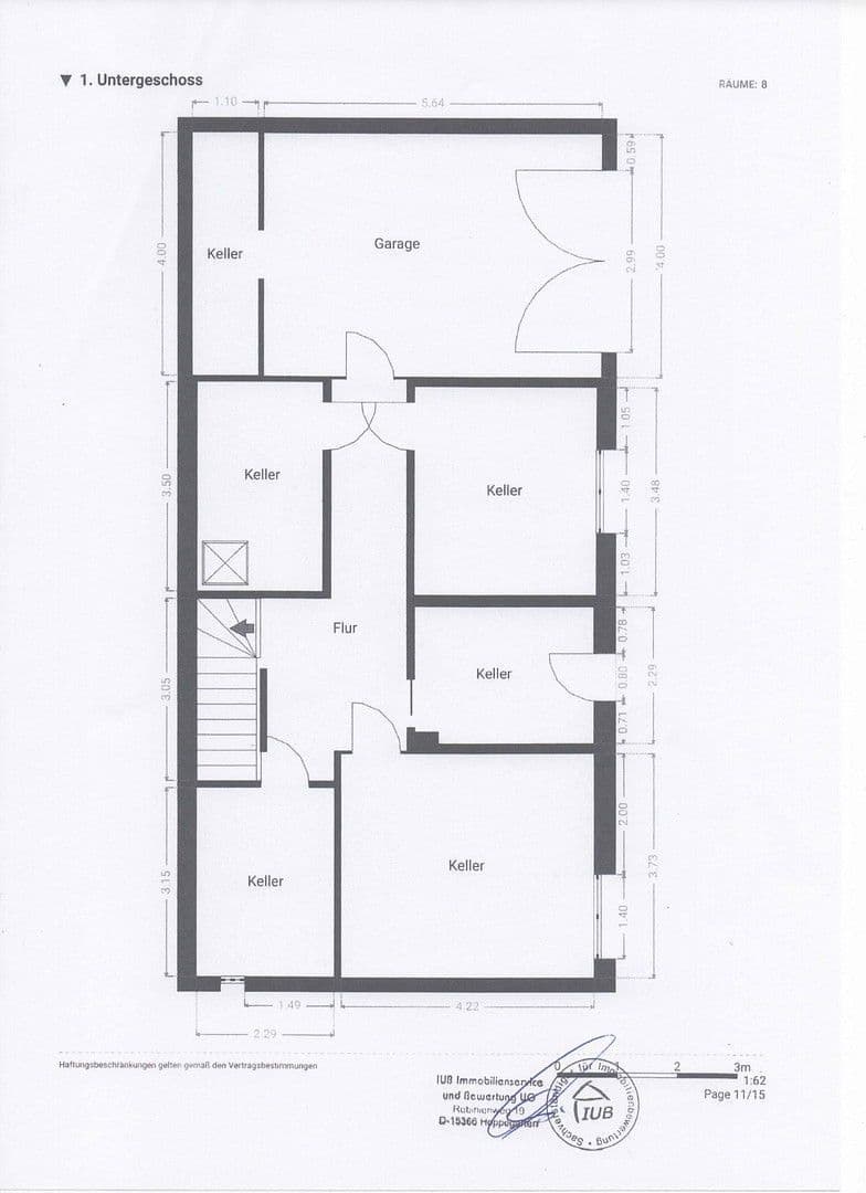
Suterén: 1,5 pokoje, velká garáž, technická místnost, 2 sklepní místnosti
V zahradě se nachází čerpadlovna se studnou.
Zdá se, že je možná další výstavba se druhým domem. V sousedství již bylo schváleno několik domů ve druhé řadě.
V okolí nemovitosti najdete
Stále hledáte to pravé?
Nastavte si hlídacího psa. Nabídky vybrané na míru dostanete souhrnně 1× denně e-mailem. S Premium profilem máte k ruce hlídačů rovnou 5 a když se něco objeví, informují vás obratem.

























