Prodej domu • 482 m² bez realitkyUhlandstraße 8, , Bavorsko
Uhlandstraße 8, , BavorskoMHD do minuty pěšky • ParkováníNa prodej se nabízí udržovaný obytný a obchodní dům se zhruba osmi jednotkami. Ze tří jich již došlo k prodeji, zbývajících pět jednotek – tvořených dvěma obchodními jednotkami a třemi byty – je nyní k dispozici.
Nemovitost zaujme svou solidní konstrukcí, dobrou nájemní strukturou a dlouhodobou výnosovou jistotou. S aktuálním ročním čistým nájemným přibližně 40 884 € a možností zvýšení na cca 50 000 € ročně představuje tento objekt atraktivní investici.
Přehled jednotek:
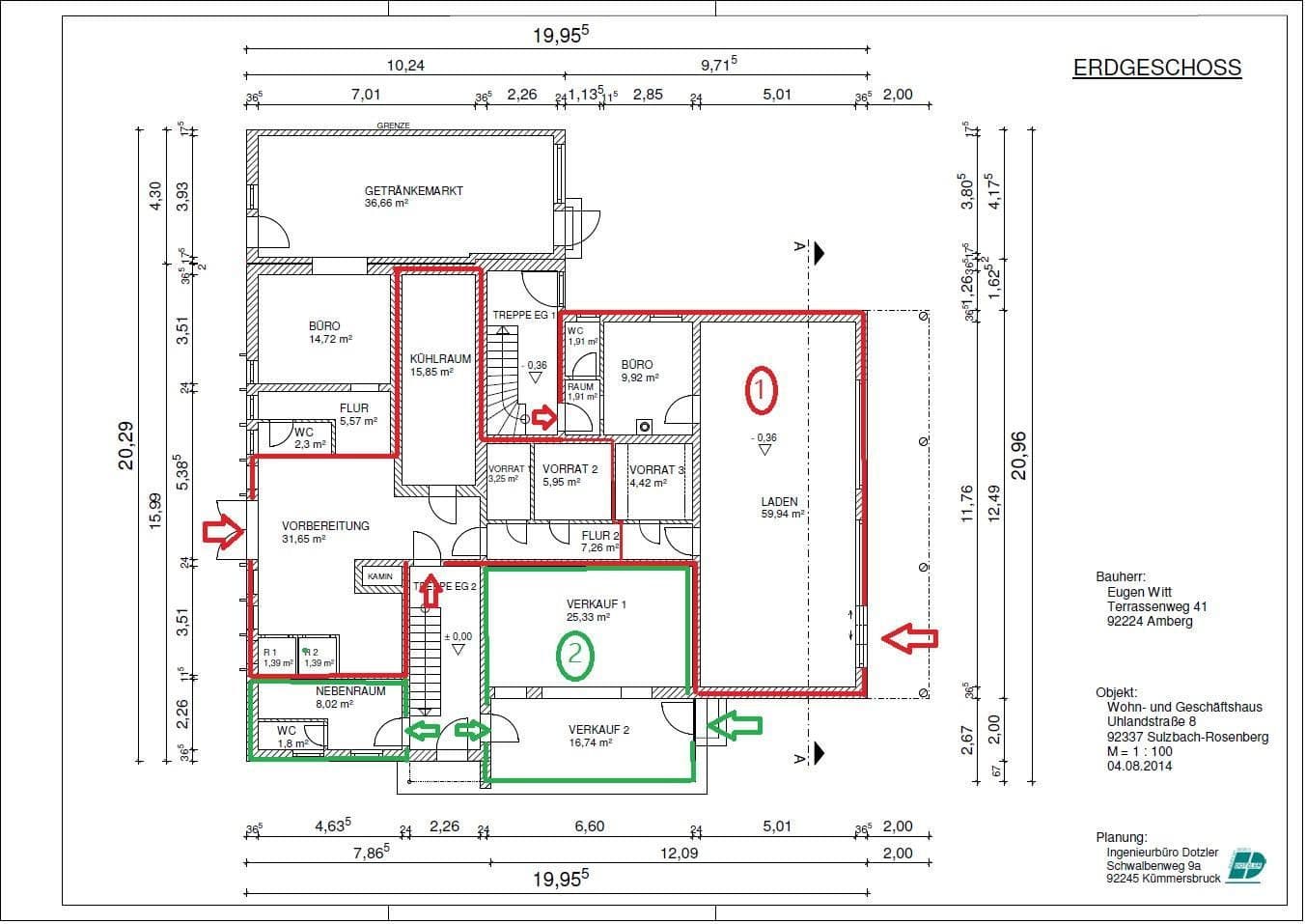
• Obchodní jednotka 1: 147 m² (82 m² prodejní prostor + 65 m² skladový prostor), aktuálně pronajata jako pizzerie.
• Obchodní jednotka 2: 54 m², aktuálně pronajata jako autoškola.
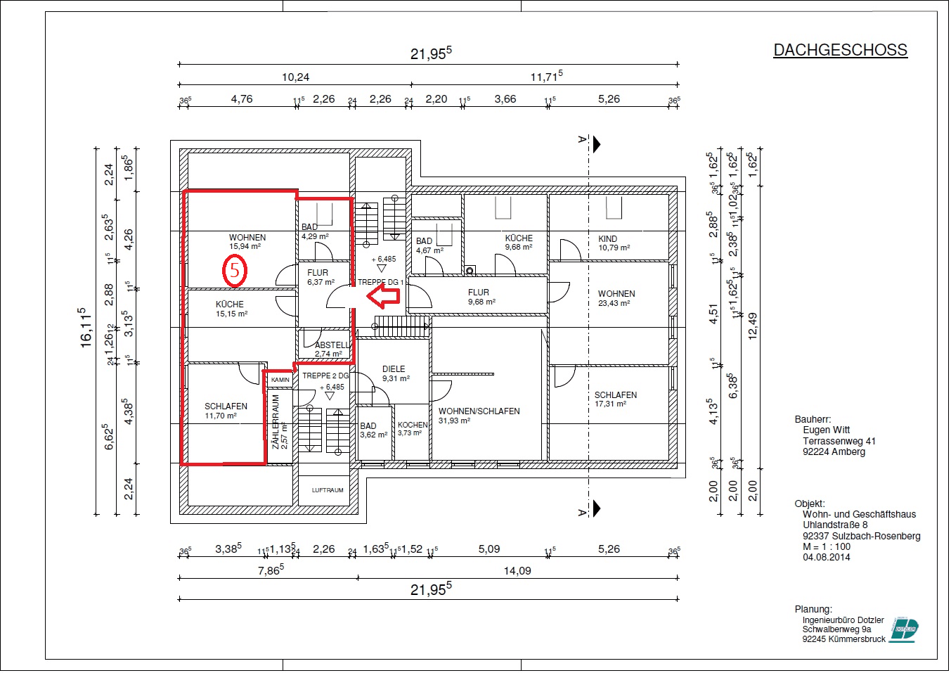
• Byty (3 jednotky s 136 m², 88 m², 57 m²): prakticky řešené byty, spolehlivě pronajaté.
Celková plocha (obytná a užitná): cca 482 m²
Ekonomické ukazatele:
• Aktuální roční čisté nájemné: cca 40 884 €
• Možnost úpravy: až na cca 50 000 € ročně
• Jednotky k prodeji: 5 (2 obchodní + 3 byty)
• Celkový počet jednotek v objektu: 8 (z toho 3 již prodány)
Hlavní přednosti:
• Atraktivní investice s solidním rozvojovým potenciálem
• Stabilní nájemní struktura (byty a obchodní prostory)
• Výhodná lokalita s vysokou viditelností a frekvencí návštěv
• Kompletně rekonstruováno (v 90. letech) a průběžně modernizováno
• Solidní stavba, udržovaný stav
Další informace:
Nemovitost je ideální investicí pro soukromé osoby i investory, kteří sázejí na dlouhodobě stabilní nájemní výnosy. Kombinace obytných a obchodních jednotek zajišťuje vyvážené využití, které nabízí dodatečnou jistotu.
Obytný a obchodní dům se nachází ve frekventované oblasti s vysokou viditelností a dobrou dostupností. Centrální poloha poskytuje obchodním nájemcům vynikající podnikatelskou základnu a zaručuje stálou poptávku.
Tento objekt se nachází v centru Loderhof (čtvrť Sulzbach-Rosenberg), což zajišťuje stabilní a trvale udržitelnou nájemní situaci. V bezprostřední blízkosti se nacházejí obchody, restaurace, školy a veřejná doprava.
Nemovitost byla v průběhu uplynulých desetiletí pravidelně modernizována a prezentuje se ve velmi dobrém stavu.
• Komplexní rekonstrukce v 90. letech: obnova elektroinstalace, rekonstrukce koupelen, topných zařízení (plynové jednotkové kotle) a dalších částí budovy
• 2000–2005: instalace plastových oken s izolačním dvojsklem a rolety v celém objektu
• Topení zajišťují plynové jednotkové kotle
• Solidní konstrukce s kombinovaným využitím (byty a obchodní prostory)
Prohlídky probíhají po telefonické domluvě!
Parametry nemovitosti
| Stáří | Nad 50 let |
|---|---|
| Číslo inzerátu | 976725 |
| Plocha pozemku | 780 m² |
| Cena za jednotku | 1 421 € / m2 |
| Stav | Dobrý |
|---|---|
| Užitná plocha | 482 m² |
| Celkem podlaží | 2 |
Co tato nemovitost nabízí?
| Sklep | |
| Parkování |
| MHD 0 minut pěšky |
V okolí nemovitosti najdete
Stále hledáte to pravé?
Nastavte si hlídacího psa. Nabídky vybrané na míru dostanete souhrnně 1× denně e-mailem. S Premium profilem máte k ruce hlídačů rovnou 5 a když se něco objeví, informují vás obratem.






















