Prodej domu • 237 m² bez realitkyReichertshausen - Steinkirchen Steinkirchen Bayern 85293
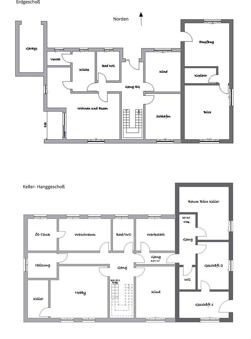
Reichertshausen - Steinkirchen Steinkirchen Bayern 85293MHD 1 minuta pěšky • Parkování • GarážNabídka se skládá z objektu s multifunkčním využitím, neboť kromě velmi dobře navrženého půdorysu lze k němu připojit k roku 2000 vytvořený přístavek, který umožňuje jeho rozmanité využití (např. jako kancelář, lékařská praxe HP nebo kosmetické studio). Kromě klidné obytné oblasti s vynikající dopravní dostupností lze nové objekty díky přístavku využít různorodě. Objekt byl postaven z masivního cihelného zdiva a má přibližně 357 m² (z toho cca 120 m² je přístavek se dvěma samostatnými vstupy) celkové plošné rozlohy. Nachází se na pozemku o rozloze cca 992 m² v klidné slepé ulici s jižní orientací. Lokalita je obzvlášť vhodná pro rodiny, protože ve vzdušné čáře do cca 80 metrů se nachází nově postavená mateřská školka včetně jeslí a do cca 200 metrů základní škola. Objekt byl opatrován stálým vlastnictvím a již byl energeticky zmodernizován (k dispozici aktuální energetický štítek). Původní budova byla postavena v roce 1974. Na pozemku se nachází garáž včetně PKW-carportu a samostatné kryté místo pro přípojné vozidlo.
Nemovitost je v současnosti využívána majiteli jak soukromě, tak komerčně a její předání je možné individuálně dle dohody.
Nemovitost se nachází v Reichertshausen-Steinkirchen v klidné slepé ulici. V bezprostřední blízkosti objektu jezdí autobusové linky 707, 9202 a 9203. Přibližně 3-5 km od objektu se nachází několik obchodních možností. Také velmi blízko se nachází základní škola Steinkirchen, vzdálená cca 200 metrů. V okruhu cca 1-5 km je rovněž dostupná výborná lékařská péče a různé možnosti pro volnočasové a sportovní aktivity (mimo jiné golfové hřiště, lesní lanové centrum, minigolf, tenisové kurty, sportoviště místního sportovního klubu). Do stanice S-Bahn Mnichov (linky S2 a regionální vlak) je cca 3 km, což umožňuje dojet přibližně za 30 minut na hlavní nádraží v Mnichově. Automobilovou dopravou jsou to jen přibližně 40 km do mnichovských i ingolštátských městských hranic. Do Pfaffenhofenu an der Ilm je to cca 10 km a v bezprostředním okolí se nachází řada velmi dobře udržovaných cyklostezek, které vedou například k koupališti u Kranzbergu, jež je dosažitelné na kole za přibližně 30 minut. K mnichovskému letišti je dojezd autem přibližně 30 minut a kulturně okres Pfaffenhofen i bezprostředně sousední okres Dachau nabízí pestrou škálu různých atrakcí.
Mezi existující vybavení patří mimo jiné částečně dubové parkety, dlaždice a kameninové nebo vinylové či laminátové podlahy. Plastová okna s dvojsklem Schüco s tepelnou ochranou. Moderně vybavená a nově zrekonstruovaná kuchyň. Solární topná voda doplněná o PV systém o výkonu 6 kW/h. Komplexní tepelná izolace včetně izolace střešní podkroví doplňuje energetické opatření. Stávající olejové topení je pravidelně udržováno a disponuje zásobníkem na teplou vodu. V obývacím pokoji se nachází švédský krb spojený s nerezovým komínem, který dle přání poskytuje příjemné teplo v zimě. Podle aktuálního energetického štítku je objekt ohodnocen ve třídě C.
Stávající budova je v současnosti využívána jako obytný dům a přístavek slouží jako kancelář a kosmetické studio (se dvěma samostatnými a oddělenými vstupy). Plán přístavku dále umožňuje různorodé využití, například jako dodatečná pronajímatelná jednotka nebo jako doplňková obytná jednotka. Nemovitost byla před pouhými 4 lety nově natřena kvalitní silikonovou barvou a přístupová cesta, vjezd do garáže i terasa byly rovněž před několika lety nově dlážděny. K dispozici je aktuální výpočet obytné plochy, který vyhotovil nezávislý znalec.
Parametry nemovitosti
| Stáří | Nad 50 let |
|---|---|
| Číslo inzerátu | 976879 |
| Plocha pozemku | 992 m² |
| Cena za jednotku | 3 882 € / m2 |
| Stav | Po rekonstrukci |
|---|---|
| Užitná plocha | 237 m² |
| Celkem podlaží | 2 |
Co tato nemovitost nabízí?
| Sklep | |
| MHD 1 minuta pěšky |
| Garáž | |
| Parkování | |
| Terasa |
V okolí nemovitosti najdete
Stále hledáte to pravé?
Nastavte si hlídacího psa. Nabídky vybrané na míru dostanete souhrnně 1× denně e-mailem. S Premium profilem máte k ruce hlídačů rovnou 5 a když se něco objeví, informují vás obratem.






































