Prodej domu • 672 m² bez realitkyTriftstr. 22, , Durynsko
Triftstr. 22, , DurynskoMHD 2 minuty pěšky • Parkování • GarážBytový a obchodní dům se zázemím pro rozvoj zadní budovy, zásadní rekonstrukcí a rozšířením hlavní budovy v letech 1995/96, s průběžnou další údržbou. V zadní budově se v přízemí nachází topná jednotka, dvojgaráž a dílna; objekt je plně pronajat – 2 byty o rozloze 234 m² a 2 komerční prostory o rozloze 114 m², přičemž dvojgaráž s dílnou je též pronajata. Roční příjem z nájmů činí 23.820 €.
Leinefelde-Worbis je město s přibližně 20 000 obyvateli v severním Durynsku s velmi dobrou infrastrukturou. V centru města se kříží silnice B 80 a B 247. Leinefelde-Worbis má přímé napojení na dálnici A 38 Göttingen-Halle. V Leinefelder se nachází přestupní stanice na trase Halle-Kassel. V roce 2026 se ve městě uskuteční státní zahradní výstava. Objekt sám o sobě se nachází v centru města ve formálně vymezené revitalizační zóně. Všechna důležitá zařízení a služby jsou dosažitelná pěšky.
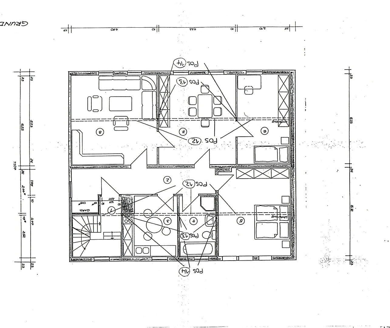
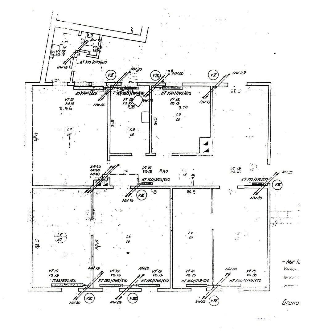
Fasáda a okna (směrem k ulici) byla v roce 2018 malířsky zrekonstruována, dřevěná okna, ústřední plynové vytápění, každý byt je vybaven koupelnou s vanou a sprchou, samostatným WC a umyvadlem; koupelny jsou obloženy dlažbou. V půdním podlaží se nachází kvalitně vybavená vestavěná kuchyně se spotřebiči a koupelnovým zařízením, dále různé vestavěné skříně, podlahy jsou pokryty laminátem, parketami a kobercem, je zde digitální satelitní přijímač a zadní budova je opatřena masivním schodištěm; jinak však objekt vyžaduje rekonstrukci.
Objekt je prodáván ze starobních důvodů. Kompenzační platby za revitalizační zónu již byly uhrazeny. Na požádání mohou být po prohlídce objektu poskytnuty půdorysy. K dispozici je také seznam všech údržbových opatření provedených po roce 1996. Zadní budova je obzvláště vhodná pro řemeslníky, kteří mohou přistoupit k vlastní rekonstrukci a přestavbě. Není zde povinnost rekonstrukce a objekt může být dále pronajímán v původním stavu.
Parametry nemovitosti
| Stáří | Nad 50 let |
|---|---|
| Stav | Dobrý |
| Číslo inzerátu | 977210 |
| Plocha pozemku | 502 m² |
| Dostupné od | 14. 1. 2026 |
|---|---|
| Podlaží | 3. podlaží z 4 |
| Užitná plocha | 672 m² |
| Cena za jednotku | 588 € / m2 |
Co tato nemovitost nabízí?
| Balkón | |
| Garáž | |
| Parkování | |
| Terasa |
| Sklep | |
| MHD 2 minuty pěšky |
V okolí nemovitosti najdete
Stále hledáte to pravé?
Nastavte si hlídacího psa. Nabídky vybrané na míru dostanete souhrnně 1× denně e-mailem. S Premium profilem máte k ruce hlídačů rovnou 5 a když se něco objeví, informují vás obratem.








































