Prodej domu 5+1 • 228 m² bez realitkyLölling Steiermark 9335
Lölling Steiermark 9335MHD 3 minuty pěškyEfektivita se setkává s emocionální inteligencí!
Budova je víc než projekt – je to prohlášení.
Vision by Danwood znamená architekturu s postojem. Je navržena pro lidi, kteří nesou odpovědnost a dokážou hodnoty učinit viditelnými.
Každý dům vzniká podle architektonicky náročného konceptu: jasný v projevu, precizní ve zpracování, bez kompromisů v kvalitě.
Pro vedoucí osobnosti, které nestaví jenom obytné prostory, ale tvoří – s vizí, stylem a podstatou.
Na vašem pozemku nebo v…
Güssing: Přibližně 2 600 m². Pozemek na zcela rovině, velikosti a umístění pozemků jsou volitelné – rozměry od 500 m² do 1500 m².
Zde jsou stavební pozemky extra třídy! V nejlepší lokalitě a s dechberoucím výhledem na nádherný hrad Güssing!
Güssing nabízí budoucnost zajišťující, dostupný a energeticky nezávislý život v přírodě, což činí investici do tamní nemovitosti strategickou hodnotovou investicí.
Proč Güssing
Energetický průkopník a udržitelnost:
Město je energeticky soběstačné a mezinárodně uznávané.
Vysoké pokrytí (přes 85 %) regionální biomasovou centrální topením vede ke stabilním a přijímaným nákladům na vytápění.
Dostupné ceny nemovitostí:
Ceny jsou výrazně nižší než rakouský průměr, což umožňuje splnit sen o vlastním domově s prostornými pozemky.
Silná infrastruktura a kvalita života:
Jako okresní předměstí zaručuje Güssing krátké vzdálenosti a vynikající služby.
Plánované velké investice:
Nový vzdělávací kampus a moderní lékařské centrum (od roku 2026).
Kulturní centrum (hrad Güssing) a blízkost termálních lázní.
Plná otevření S7 přináší významné výhody pro Güssing a jeho obyvatele:
Rychlejší napojení na aglomerace: Rychlostní silnice výrazně zkracuje dobu jízdy k dálnici A2 jižní, čímž se výrazně prodlužují doby cest do Grazu a Vídně.
Odlehčení regionu: Nová trasa přesměruje průjezdovou dopravu, která dříve zatěžovala obce jako Fürstenfeld a Rudersdorf, mimo tyto oblasti.
Ekonomické impulzy: Nové napojení, mimo jiné přes přípojku u Rudersdorf/Dobersdorf a blízkost napojení u Königsdorfu, posiluje Güssing jako okresní předměstí a ekonomickou lokalitu díky lepší dostupnosti a podpoře nových průmyslových parků.
Stabilita hodnot a rozvojový potenciál:
Cílené komunální investice do infrastruktury, oživení centra města a technologického centra zajistí dlouhodobou stabilitu hodnot nemovitostí.
Místní strategie je zaměřena na zvládání demografických výzev a etablování Güssingu jako atraktivní rezidenční i podnikatelské oblasti.
Cílová skupina
Rodiny, které hledají budoucnost, bezpečí a přírodu, a všichni, kteří kladou důraz na nízké náklady na energii a ekologickou odpovědnost.
Další pozemky v:
Pozemek, 8323 Kohldorf: Stavební pozemek s dostatkem slunce v hillockém regionu východního Štýrska, 15 km od Grazu!
Velikost: 758 m², Cena: 66 000 €
Pozemek, 8323 Kohldorf: Slunný stavební pozemek v Kohldorfu, 15 km východně od Grazu!
Velikost: 787 m², Cena: 69 000 €
Pozemek, 8311 Markt Hartmannsdorf: Plně připojený, slunný stavební pozemek v Markt Hartmannsdorf
Velikost: 920 m², Cena: 53 000 €
Pozemek, 9335 Lölling Graben: Stavební pozemek s úžasným výhledem v malebném karantinském horském prostředí
Velikost: 1001 m², Cena: 50 000 €
Pozemek, 8075 Hart bei Graz: Slunný pozemek před branami Grazu
Velikost: 1980 m², Cena: 475 000 €
Pozemek ke koupi ve Stainz: Slunný pozemek na okraji Stainzu
Velikost: 825 m², Cena: 149 000 €
Mezi vlastníkem pozemku a stavitelem domu neexistuje žádné ekonomické spojení.
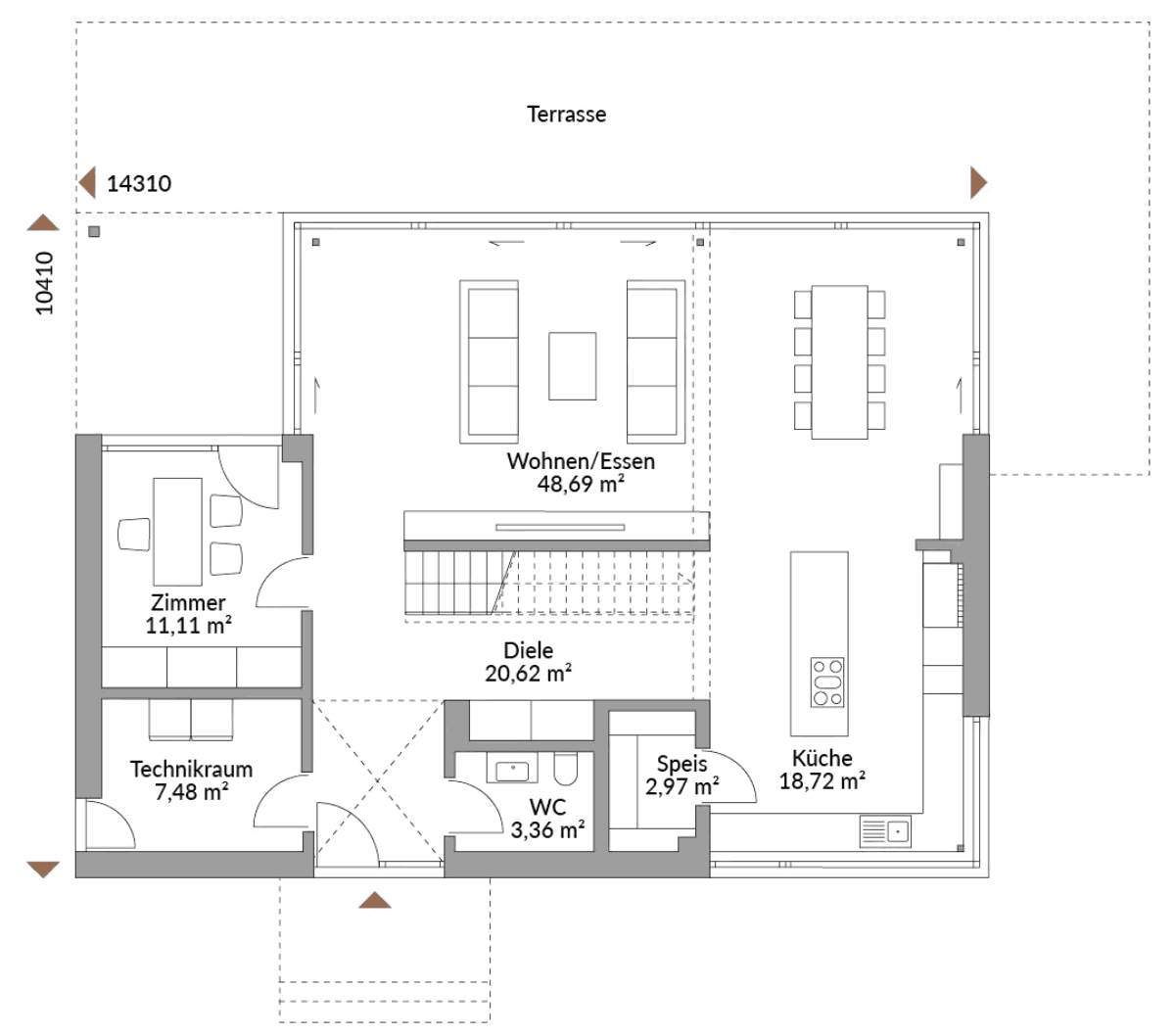
VISION „na klíč“ – stavební a servisní popis, domy na betonové desce!
Rozsah služeb
STROPNÍ VÝŠKA: Přízemí 3,05 m, podkroví 2,67 m
Technologický balíček VISION včetně podlahového vytápění (variabilní výkon tepelné čerpadlo s využitím zemní a vodní tepelné energie s integrovaným zásobníkem teplé vody)
Malířské práce
Pokládka obkladů
Podlahové práce
Sanitární vybavení
Chytrá domácnost
Elektrické rolety
Osobní interiérový architekt – dohlíží na každý krok plánování interiéru, od výběru vysoce kvalitních materiálů až po individuální návrh interiéru.
V okolí nemovitosti najdete
Stále hledáte to pravé?
Nastavte si hlídacího psa. Nabídky vybrané na míru dostanete souhrnně 1× denně e-mailem. S Premium profilem máte k ruce hlídačů rovnou 5 a když se něco objeví, informují vás obratem.
























