Prodej domu 3+1 • 87 m² bez realitkyBURGBLICK GRUNDSTÜCK EXKLUSIV NUR FÜR DANWOOD-HAUSBAU Güssing Burgenland 7540
BURGBLICK GRUNDSTÜCK EXKLUSIV NUR FÜR DANWOOD-HAUSBAU Güssing Burgenland 7540MHD 2 minuty pěšky • GarážBungalow: Níže v PDF naleznete několik příkladů cen!
Vážení stavební investoři,
Chcete si splnit sen o vlastním domě, ale nejste si jisti, který poskytovatel je pro vás ten pravý, nebo kdo vám dokáže nabídnout dům ve vámi požadované konstrukci?
S DAN-WOOD-HOUSE můžete zrealizovat svůj vysněný dům – a to i bez konkrétního stavebního plánu. Vyberte si z 130 různých typů domů a upravte si je zdarma podle svých představ. K dispozici jsou také různé varianty stěnových konstrukcí.
Jaká geniální myšlenka: Nejde o to, co DAN-WOOD nebo jednotlivé firmy nabízejí, ale o to, jak vypadají vaše individuální představy o vysněném bydlení! Zde vám nabídneme odborné poradenství, které vás nadchne!
Nabízím vám své individuální poradenství pro váš projekt! Začnu počáteční konzultací, kterou přednostně provedu přímo na vašem stavebním pozemku. Tvar, rozdíly ve výškách a orientace pozemku jsou zde klíčovými faktory!
Ještě pozemek nemáte? Žádný problém! Ráda vám poskytnu přehled o řadě báječných možností, jak si DAN-WOOD-House můžete přizpůsobit. Existuje tolik zajímavých aspektů, které je třeba probrat: typ domu, dispozice, tvar střechy, vytápění, elektroinstalace, stínění a případné vybavení, jako je například "Smart Home".
Je opravdu důležité znát celkové finanční náklady včetně domluv materiálů!
S potěšením vám oznamuji, že provedu předběžnou domluvu materiálů, abyste tyto náklady mohli snadno započítat. To je skutečně skvělá pomoc! Díky tomu si můžete nejen sestavit finanční plán, ale také hledat vhodné financování.
Neváhejte, kontaktujte mě hned! 0676 5537747
Objednávky katalogu zasílejte pod názvem "Katalog Serie Today" na tatjana.wyss@danwood.at
Při objednávce uveďte, prosím, vaši adresu a telefonní číslo,
na vašem pozemku nebo v…
Güssing: cca 2 600 m², umístění zcela rovinné, s volitelnou velikostí a polohou pozemku. Velikosti od 500 m² do 1500 m².
Zde jsou pozemky k výstavbě vyšší třídy! Nejlepší poloha a dechberoucí výhled na nádherný hrad Güssing!
Güssing nabízí budoucnost s udržitelným, dostupným a energeticky soběstačným životem v zeleném prostředí, což z investice do nemovitosti zde činí strategicky cenný krok.
Proč Güssing
Energetický průkopník a udržitelnost:
Město je energeticky soběstačné a mezinárodně uznávané.
Vysoké pokrytí (nad 85 %) regionální biomasa-dálkové vytápění vede k stabilním a nízkým nákladům na vytápění.
Dostupné ceny nemovitostí:
Ceny jsou ještě výrazně nižší než rakouský průměr, což umožňuje splnit si sen o vlastním domě s prostorným pozemkem.
Silná infrastruktura a kvalita života:
Jako příměstská obec zaručuje Güssing krátké cesty a nejlepší občanské vybavenosti.
Plánované velké investice:
Nový vzdělávací kampus a moderní lékařské centrum (od roku 2026).
Kulturní centrum (hrad Güssing) a blízkost termálních lázní.
Plná otevření S7 přináší Güssingu a jeho obyvatelům řadu výhod:
Rychlejší napojení na metropolitní oblasti: Rychlá silnice výrazně zkracuje čas jízdy na dálnici A2 jižní, čímž se výrazně zkrátí doba cest do Grazu a Vídně.
Odlehčení regionu: Přesměrovává tranzitní dopravu, která dříve značně zatěžovala obce jako Fürstenfeld a Rudersdorf, na novou trasu.
Ekonomické impulsy: Nové napojení, mimo jiné přes přípojku u Rudersdorf/Dobersdorf a blízkost k napojení Königsdorf, posiluje Güssing jako příměstskou obci a podnikatelské centrum díky lepší dostupnosti a podpoře nových průmyslových parků.
Stabilita hodnoty a růstový potenciál:
Cílené komunální investice do infrastruktury, revitalizace centra a technologického centra zajistí dlouhodobou stabilitu hodnoty nemovitostí.
Komunální strategie je zaměřena na řešení demografických výzev a vytvoření Güssingu jako atraktivního místa pro bydlení i podnikání.
Cílová skupina
Rodiny hledající budoucnost, bezpečí a přírodu, stejně jako všichni, kdo si cení nízkých nákladů na energii a ekologické odpovědnosti.
Další pozemky v:
Pozemek, 8323 Kohldorf: Stavební pozemek s bohatým slunečním světlem v hunedém steirském kopcovitém terénu, 15 km od Grazu!
Velikost 758 m², kupní cena € 66.000, --
Pozemek, 8323 Kohldorf: Slunný stavební pozemek v Kohldorfu, 15 km východně od Grazu!
Velikost 787 m², kupní cena € 69.000, --
Pozemek, 8311 Markt Hartmannsdorf: Plně uzavřený, slunný stavební pozemek v Markt Hartmannsdorf
Velikost 920 m², kupní cena € 53.000, --
Pozemek, 9335 Lölling Graben: Stavební pozemek s úžasným výhledem do krajiny malebných karantských hor
Velikost 1001 m², kupní cena € 50.000, --
Pozemek, 8075 Hart bei Graz: Slunný pozemek přímo před branami Grazu
Velikost 1980 m², kupní cena € 475.000, --
Pozemek na prodej ve Stainzu: Slunný pozemek na okraji Stainzu
Velikost 825 m², kupní cena € 149.000,
Mezi vlastníkem pozemku a stavitelem domu neexistuje žádné hospodářské spojení.
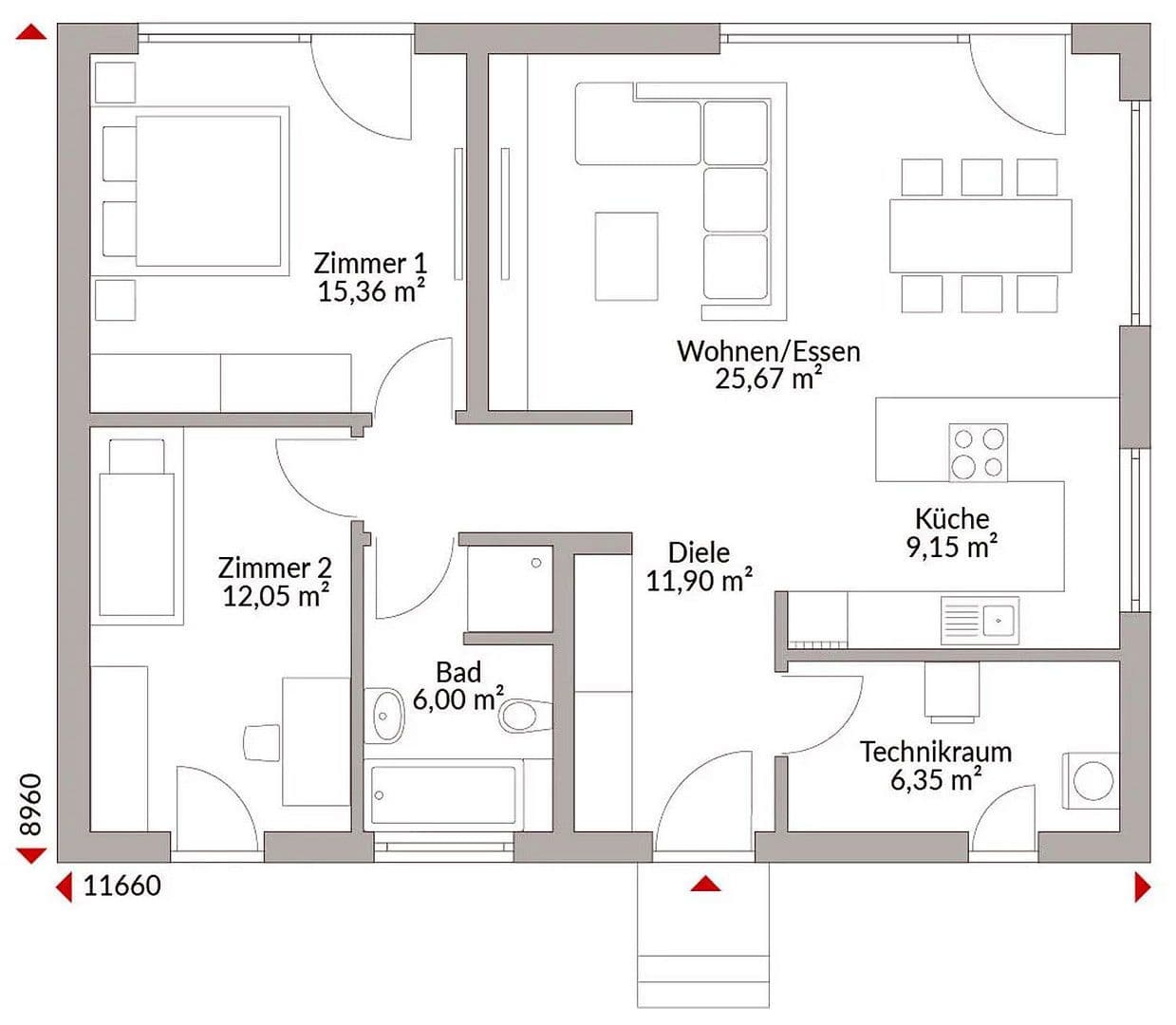
BUNGALOW 3 pokoje, koupelna s WC, exkluzivní vybavení!
Pozemek, 500 m², 1000 m², 1500 m² – dle přání k dispozici.
V ceně:
Klíčová realizace (nábytek stačí dovnést a hned se nastěhujete!)
Doručení a montáž od horní části základů.
Střešní konstrukce zesílená proti sněhové zátěži.
Vzduch-voda tepelné čerpadlo, podlahové vytápění.
Decentralizovaná rekuperační ventilace obytných prostor (v létě slouží i k chlazení).
Elektrické rolety v celém domě.
Všechny podlahové krytiny dle vašeho výběru.
Veškeré sanitární vybavení dle vašeho výběru.
Příprava na instalaci fotovoltaiky.
Kompletní balíček bez starostí.
VOLITELNĚ: Možnost vlastních prací je samozřejmě možná!
Poradenství – prodej: paní Tatjana Wyss
+43 676553 77 47, tatjana.wyss@danwood.at
Ihned k dispozici informace či první konzultace!
Další nabídky naleznete zde:
https://qr.scan.page/uploads/pdf/1751712478803_686335a001f76.pdf
Objednejte si stavební popis a katalogy!
K tomu je nutné uvést vaše telefonní číslo, e-mailovou adresu a adresu.
Děkujeme!
V okolí nemovitosti najdete
Stále hledáte to pravé?
Nastavte si hlídacího psa. Nabídky vybrané na míru dostanete souhrnně 1× denně e-mailem. S Premium profilem máte k ruce hlídačů rovnou 5 a když se něco objeví, informují vás obratem.












