
Pronájem bytu 2+1 • 70 m² bez realitkyFürkhofstr. 18 München-Bogenhausen Johanneskirchen Bayern 81927
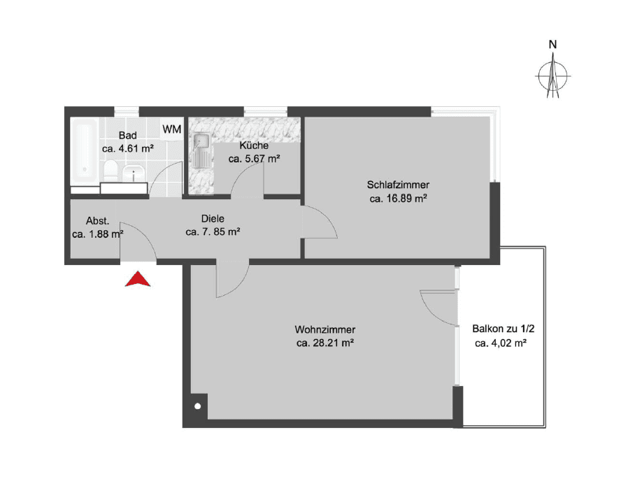
Fürkhofstr. 18 München-Bogenhausen Johanneskirchen Bayern 81927MHD 4 minuty pěšky • Výtah • GarážČerstvě zmodernizovaný 2+1 byt se nachází v 2. patře a je pohodlně dostupný výtahem (rekonstruováno v roce 2024). S přibližně 70 m² obytné plochy nabízí tento prostorný 2+1 byt mnoho prostoru k rozvoji a tím pádem i vysokou kvalitu života. Obě místnosti jsou prostorně řešené, což zvyšuje komfort bydlení. Nabízejí mnoho možností, jak rozmístit nábytek a individuálně si zařízení místností přizpůsobit. Dlouhá chodba spojuje všechny místnosti mezi sebou. Obývací pokoj o rozloze 28 m² se dá velmi dobře rozdělit na obývací a jídelní část. Přiléhající balkon o velikosti cca 8 m² je zastřešený a láká k posezení nejen v létě. Ložnice o přibližně 17 m² se výborně zařídí nábytkem a zároveň poskytuje dostatek místa pro velkou pracovní stůl (home office). Díky dvěma oknům s rolety pro zatemnění je v místnosti přítomno neobvykle mnoho denního světla. Kuchyně má okno a je vybavena vestavěnou kuchyňskou linkou se spotřebiči, které jsou zahrnuty v ceně nájmu. Koupelna je také opatřena oknem a nabízí vanu, záchod a umyvadlo. Je zde rovněž připojení pro pračku. Celý byt je vybaven parketovou podlahou, přičemž kuchyně a koupelna mají dlaždice. K bytu náleží také praktická sklepní místnost. Pomocí výtahu se pohodlně dostanete do sklepních prostor i do soukromé podzemní garáže. K dispozici je rovněž jeden parkovací stání v podzemní garáži (nikoli duplex), které lze navíc pronajmout.
Topení a ohřev teplé vody jsou zajišťovány prostřednictvím dálkového topení městských podniků Mnichova.
Byt se nachází v oblíbené rezidenční oblasti v Bogenhausenu.
Pouze přibližně 150 m od bytu (dva minuty chůze) se nachází supermarket EDEKA. Jen asi 200 m dále se nachází supermarket ALDI. Přibližně 350 m od domu je zastávka autobusu (linka 50) a tramvaj (linky 17 a 37). Obě tramvajové linky vás během pěti minut dovezou k metrostani U4 Arabellapark. Nádraží S-Bahn Johanneskirchen (linka S8 – na letiště nebo do centra města) je vzdáleno cca 900 m. Pro řidiče je připojení na okružní silnici (Mittlerer Ring) velmi výhodné, což umožňuje rychlý přístup do centra. Také letiště a oblíbené rekreační oblasti v okolí Mnichova jsou pohodlně dostupné veřejnou dopravou. Stejně jako v dalších obytných čtvrtích Bogenhausenu najdete rozsáhlé parkové a zelené plochy, které vybízejí ke procházkám, jízdě na kole a běhání. Také nedaleký Englischer Garten je vyhledávanou destinací k výletům. Výjimečnou zábavu však nabízí v létě i v zimě nedaleké Cosimabad s jediným vlnovým bazénem v Mnichově. Zejména v horkých dnech lákají k osvěžení okolní rybníky, jako je Feringasee nebo Poschinger Weiher (Unterföhringer See), řadu návštěvníků. Rozlehlé sluneční louky lemují břehy, vyhrazená grilovací místa a sportoviště pak dohromady tvoří příjemný letní zážitek z volného času. Ti, kteří hledají klidnější prostředí, jistě najdou stinné zákoutí v jedné z krásných pivnic zahrádek. Mnoho obchodů pro běžné potřeby, pohotovostních lékařů a další služby je snadno dostupných pěšky. Také školy a zařízení péče o děti jsou dostupné během několika minut chůze. S autem se do centra obvykle dostanete za cca 15 minut a mnichovské letiště je dosažitelné autem za pouhých 20 minut nebo pohodlně S-Bahn.
V okolí nemovitosti najdete
Stále hledáte to pravé?
Nastavte si hlídacího psa. Nabídky vybrané na míru dostanete souhrnně 1× denně e-mailem. S Premium profilem máte k ruce hlídačů rovnou 5 a když se něco objeví, informují vás obratem.


















