
Prodej bytu 5+kk • 201 m²Šlikova, Praha - Břevnov
Šlikova, Praha - BřevnovMHD 4 minuty pěšky • Výtah • Terasa 49 m²Využít program Bydlím hned, koupím později
Hledáte místo, které kombinuje pohodlí moderního bydlení, klidné prostředí a dostatek prostoru pro rodinu i relaxaci? Tento jedinečný slunný podkrovní byt o dispozici 5+kk (152 m2) + terasa (49,3 m2) vás okouzlí. Nachází se ve 4. a 5. nadzemním podlaží revitalizovaného cihlového domu na Břevnově.
Nemovitost je vytápěná kondenzačním plynovým kotlem (vyúčtování předložíme na požádání) a má nízké provozní náklady. Místnosti jsou převážně orientované na jižní stranu, takže jsou plné denního světla. Bezproblémový pevný internet, možnost i optického internetu. K bytu náleží sklep v přízemí domu. SVJ tvoří 16 bytových jednotek, majitelé jsou starousedlíci a znají se mezi sebou a dobře spolu vychází, ve vnitrobloku je společná zahrádka. Před domem rezidenční parkování. SVJ nemá žádný úvěr ani neplánuje v tuto chvíli navyšování poplatků.
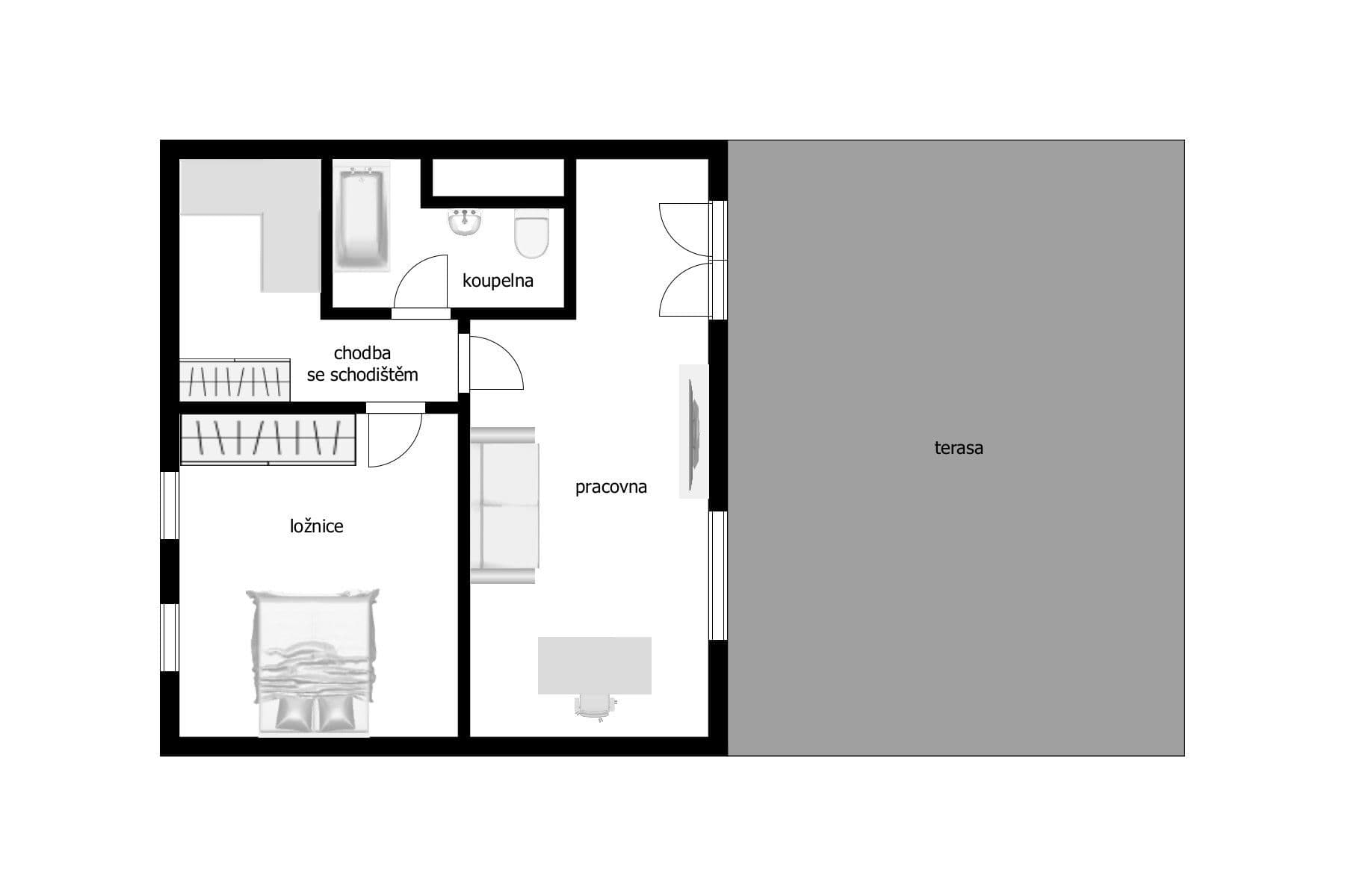
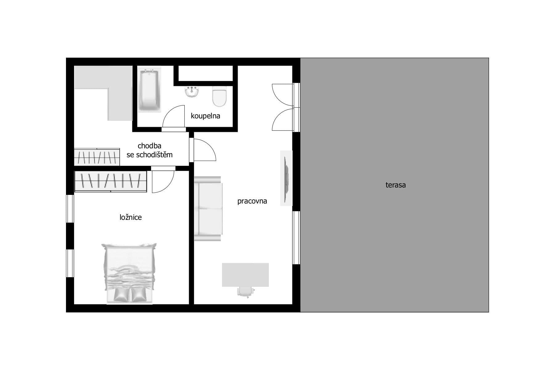
Dispozice bytu:
Byt disponuje dvěma koupelnami - v dolní části sprchový kout, toaleta, pračka, v horní části vana, toaleta, kotel. Z předsíně se dostanete do jídelny s kuchyňským koutem, dále do dětského pokoje a velké podkrovní místností, ze které vede schodiště do horního podlaží. Zde se pak nachází samostatná ložnice a další velký pokoj se vstupem na terasu (francouzské okno s bezpečnostní roletou). Ale záleží jen na vás jak si bydlení v těchto prostorách uspořádáte, nemovitost svou rozlohou vybízí ke kreativitě. Byt má několikabodové bezpečností dveře, dostatek vestavěných skříní se zrcadlovou plochou. I když se jedná o podkrovní byt, jsou tři místnosti bez zkosených stropů.
V blízkém okolí nemovitosti jsou školky, školy, zdravotní zařízení, obchody, restaurace i zajímavá místa pro sportovní vyžití - jako je Ladronka, Petřín, Obora Hvězda. Stejně daleko máte k Břevnovskému i Strahovskému klášteru. Prostě vše, co k životu potřebujete.
Technické parametry:
- PENB kategorie "E"
- Cihlový dům
- Moderní výtah
- Elektřina v mědi a rozvod vody v plastu
- Dřevěné podlahy a dlažba
- Kvalitní optický internet
- Rezidentské parkování před domem
- Ideální bydlení pro rodinu s dětmi
- Vestavěné skříně se zrcadlovou plochou
- Dostatek přirozeného denního světla
- Nízké režijní náklady
- Terasa vhodná pro zahradničení i relaxaci (přívod vody i elektřiny)
Osobní vlastnictví s možností financovat hypotečním úvěrem.
Are you looking for a place that combines the comfort of modern living, a peaceful environment, and plenty of space for family and relaxation? This unique sunny attic apartment with a layout of 5+kk (152 m2) + terrace (49.3 m2) will charm you. It is located on the 4th and 5th floors of a revitalized brick building in Břevnov.
The property is heated by a condensing gas boiler (billing can be provided upon request) and has low operating costs. The rooms are mainly oriented to the south, so they are filled with natural light. There is reliable high-speed internet available, including the option for fiber optic internet. The apartment includes a cellar in the ground floor of the building. The homeowners' association consists of 16 residential units, with long-term residents who know each other and get along well; there is a shared garden in the courtyard. Residential parking is available in front of the building. The homeowners' association has no loans and does not plan to increase fees at this time.
Apartment layout:
The apartment features two bathrooms - a shower corner, toilet, and washing machine in the lower part, and a bathtub, toilet, and boiler in the upper part. From the hallway, you can access the dining room with a kitchenette, and further into a children's room and a large attic room, from which stairs lead to the upper floor. Here, you will find a separate bedroom and another large room with access to the terrace (French windows with a security shutter). However, it's up to you how to arrange your living space; the property invites creativity with its layout. The apartment has multi-point security doors and ample built-in wardrobes with mirrored surfaces. Although it is an attic apartment, three rooms do not have sloped ceilings.
In the immediate vicinity of the property, there are kindergartens, schools, healthcare facilities, shops, restaurants, and interesting places for sports activities - such as Ladronka, Petřín, and Obora Hvězda. You are also equidistant to the Břevnov and Strahov Monasteries. Everything you need for life is simply within reach.
Technical parameters:
- Energy Performance Certificate (PENB) category "E"
- Brick building
- Modern elevator
- Electrical wiring in copper and water distribution in plastic
- Wooden floors and tiles
- High-quality fiber optic internet
- Residential parking in front of the building
- Ideal for families with children
- Built-in wardrobes with mirrored surfaces
- Ample natural daylight
- Low operating costs
- Terrace suitable for gardening and relaxation (with water and electricity supply)
Personal ownership with the possibility of financing through a mortgage loan.
Parametry nemovitosti
| Stav | Velmi dobrý |
|---|---|
| Dispozice | 5+kk |
| Podlaží | 5. podlaží z 6 |
| Vlastnictví | Osobní |
| Užitná plocha | 201 m² |
| Cena za jednotku | 99 453 Kč / m2 |
| Konstrukce budovy | Cihla |
|---|---|
| Vybaveno | Nevybaveno |
| Číslo inzerátu | 978064 |
| PENB | E - Nehospodárná |
| Rizika | Prověřit » |
Co tato nemovitost nabízí?
| MHD 4 minuty pěšky |
| Výtah | |
| Terasa 49 m² |
V okolí nemovitosti najdete
Využít program Bydlím hned, koupím později
Stále hledáte to pravé?
Nastavte si hlídacího psa. Nabídky vybrané na míru dostanete souhrnně 1× denně e-mailem. S Premium profilem máte k ruce hlídačů rovnou 5 a když se něco objeví, informují vás obratem.






























