Prodej domu 4+1 • 111 m² bez realitky, Dolní Sasko
, Dolní SaskoMHD 3 minuty pěšky • ParkováníNabízí se udržovaná polovina dvojdomu z roku 1998 na pozemku o rozloze cca 252 m². S přibližně 111 m² obytné plochy, 33 m² sklepní plochy a vlastním plynovým vytápěním nabízí nemovitost komfortní domov v žádané lokalitě.
Popis místností
V přízemí vás přivítá světlý vstupní prostor s hostinským WC a malým výklenkem, který se výborně hodí jako šatník nebo úložný prostor. Odtud máte přístup do kuchyně s přilehlým technickým prostorem a do prostorného obývacího a jídelního prostoru s přímým vstupem na terasu a do zahrady. Nabídku doplňuje carport a nástrojová chýše.
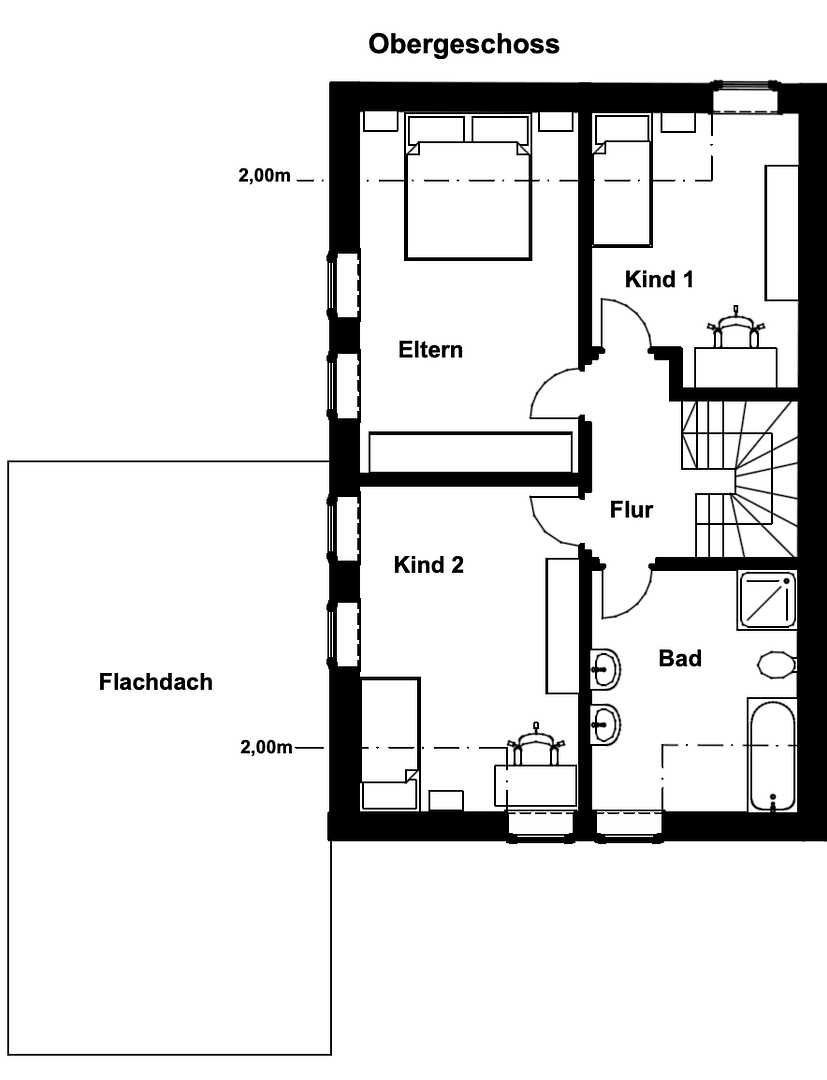
V horním patře se nachází hlavní ložnice, dvě dětské pokoje a koupelna se sprchou i vanou. Podkrovní prostor zatím není přestavěný a je přístupný zasuvným schodištěm. V suterénu jsou k dispozici dva úložné prostory, které poskytují dodatečné úložiště.
Zvláštnost
Prodej probíhá přímo od soukromého majitele – bez provize realitní kanceláře.
Pro další podrobnosti nebo další fotografie se prosím obraťte na nás a uveďte své jméno, telefonní číslo a e-mailovou adresu.
Nemovitost se nachází v centrální obytné zóně v srdci Altenlingenu – jedné z nejoblíbenějších rezidenčních čtvrtí pro rodiny. Obchodní možnosti, základní škola, mateřská škola a další zařízení jsou snadno dostupné.
V okolí nemovitosti najdete
Stále hledáte to pravé?
Nastavte si hlídacího psa. Nabídky vybrané na míru dostanete souhrnně 1× denně e-mailem. S Premium profilem máte k ruce hlídačů rovnou 5 a když se něco objeví, informují vás obratem.











