Pronájem bytu 4+1 • 116 m² bez realitkyHindenburgerstr 96 Neustadt an der Weinstraße Neustadt an der Weinstraße Rheinland-Pfalz 67433
Hindenburgerstr 96 Neustadt an der Weinstraße Neustadt an der Weinstraße Rheinland-Pfalz 67433MHD 2 minuty pěšky • GarážK pronájmu je byt WHG 1, prostorný maisonette byt s přibližně 115,27 m² obytné plochy, který se nachází v 1. patře přední budovy s přímým přístupem k hlavnímu vchodu. Byt se rozprostírá na dvou úrovních (1. a 2. patro) a zaujme promyšleným půdorysem, spoustou světla a výjimečným obytným prostředím. Budova samotná působí velmi upraveně a architektonicky přitažlivě.
Renovace a stav:
Byt je v současné době kompletně renovován a po dokončení bude předán v moderním, velmi udržovaném stavu:
- Všechny místnosti nově natřeny
- Nová okna v celém bytě
- Nové vchodové dveře bytu
- Nové podlahové lišty
- Nové vypínače a zásuvky
- Koupelna vizuálně osvěžena
- Velká terasa bude kompletně obnovena včetně nové hydroizolace
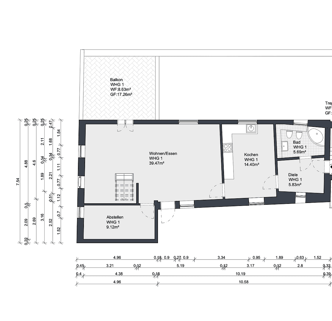
Půdorys a dispozice – WHG 1:
1. patro – Obývací a hostinská část:
- Předsíň (cca 5,83 m²)
- Prostorný obývací a jídelní kout (cca 39,47 m²)
- Samostatná kuchyňská část (cca 14,40 m²)
- Koupelna s dostatkem přirozeného světla (cca 5,69 m²)
- Další místnost (cca 9,12 m²)
→ Ideální jako dětský pokoj, kancelář nebo pokoj pro hosty
- Přístup na velkou terasu
→ Celková plocha terasy cca 18 m², která bude kompletně obnovena
Poznámka:
V nižší obytné části je strop poněkud nižší než obvykle, což prostoru dodává útulný a domácký charakter a výborně se hodí pro každodenní využití.
2. patro – Soukromé útočiště:
Horní patro je ideálně koncipováno jako soukromý spací a pracovní prostor:
- Ložnice (cca 8,62 m²)
- Pracovní / šatní místnost (cca 7,81 m²)
- Chodba (cca 15,38 m²)
Nádherný dřevěný strop s teplou, výjimečnou obytnou atmosférou
+ Malý francouzský balkon
Zvláštní přednosti:
- Celé horní patro je kompletně izolováno
- Nová okna zajišťují velmi dobrou tepelnou a zvukovou izolaci
- Okna na obou stranách umožňují optimální průvan v létě
- Velké množství přirozeného světla vytváří světlý a příjemný pocit
Tato úroveň je ideální jako ložnice se šatnou a domácí kancelář – klidná, soukromá a jasně oddělená od obytné a hostinské části.
Další vybavení:
- Sklep s možností umístění pračky a sušičky
- Velmi udržovaný objekt
- Centrální poloha v centru města s krátkými cestami k nákupům, gastronomii a MHD
Volitelně:
- Garáž v přilehlé budově k pronájmu za 70 € za měsíc
Krátký přehled:
Byt WHG 1
- cca 115,27 m² čisté obytné plochy – celková plocha cca 144,64 m²
- Maisonette rozprostřený přes 1. a 2. patro
- Velký obývací a jídelní kout
- 3 flexibilně využitelné místnosti
- Velká terasa (cca 18 m²)
- Čerstvě renovováno
- Sklep s možností praní
- Garáž volitelná
- Neustadt – centrální poloha
Závěr:
Výjimečný maisonette byt s jasným oddělením obytné části a soukromého útočiště, s dostatkem světla, kvalitní renovací a prostornou terasou – ideální pro páry, uživatele home office nebo malé rodiny, které chtějí bydlet centrálně a zároveň si cenit prostor a atmosféru.
Byt se nachází v ulici Hindenburgstraße, přímo v centru Neustadt an der Weinstraße – poloha, která spojuje městský život s vysokou kvalitou bydlení.
Tato centrální adresa ti nabízí vše, co pro každodenní život potřebuješ, přímo za dveřmi nebo v několika minutách chůze:
- Rozmanité možnosti nákupu a malé obchody
- Kavárny, restaurace a bary pro volný čas a gastronomii
- Lékaři, lékárny a další služby pro každodenní potřeby
- Velmi dobré spojení s veřejnou dopravou
- Krátké cesty ke školám, školkám a městské infrastruktuře
- ImmobilienScout24
Přes svou centrální polohu je okolí příjemně klidné a obydlené – perfektní mix městského života a komfortního bydlení.
Díky blízkosti zelených ploch, parků a cyklostezek lze ideálně vychutnat pfälzský životní styl s jeho venkovními a volnočasovými aktivitami. A poloha na okraji Pfälzerwaldu činí z Neustadtu místo, které vynikajícím způsobem spojuje přirozené prostředí s městskou zástavbou.
Byt WHG 1
- cca 115,27 m² čisté obytné plochy – celková plocha cca 144,64 m²
- Maisonette přes 1. a 2. patro
- Velký obývací a jídelní kout
- 3 flexibilně využitelné místnosti
- Velká terasa (cca 18 m²)
- Čerstvě renovováno
- Sklep s možností praní
- Garáž volitelná
- Neustadt – centrální poloha
Pronájem garáže v žádané centrální lokaci, přímo před vlastním vchodem, je volitelný a závisí na dostupnosti za 70 € měsíčně.
V okolí nemovitosti najdete
Stále hledáte to pravé?
Nastavte si hlídacího psa. Nabídky vybrané na míru dostanete souhrnně 1× denně e-mailem. S Premium profilem máte k ruce hlídačů rovnou 5 a když se něco objeví, informují vás obratem.





















