Prodej domu 3+1 • 87 m² bez realitkyGRUNDSTÜCK AUFGESCHL: EXKLUSIV NUR FÜR DANWOOD-HAUSBAU Markt Hartmannsdorf Steiermark 8311
GRUNDSTÜCK AUFGESCHL: EXKLUSIV NUR FÜR DANWOOD-HAUSBAU Markt Hartmannsdorf Steiermark 8311MHD do minuty pěšky • GarážBungalov: Níže v PDF najdete několik příkladů cen!
Vážení investoři do stavby,
chcete si splnit sen o vlastním bydlení, ale nejste si jisti, který dodavatel pro vás bude ten pravý, nebo kdo vám dokáže postavit dům v požadovaném provedení?
S DAN-WOOD-HOUSE můžete svůj vysněný dům zrealizovat – i když ještě nemáte konkrétní stavební plán. Vyberte si z 130 různých typů domů a upravte si je zdarma podle svých představ. Navíc máte na výběr z různých variant vnitřní stavby zdí.
Jaký geniální postřeh: Nejde o to, co DAN-WOOD nebo jednotlivé firmy nabízejí, ale jak vypadají vaše individuální představy o vašem vysněném bydlení! Zde vám nabídneme odborné poradenství, které vás nadchne!
Nabízím vám individuální poradenství pro váš projekt! Začínám první konzultací, kterou upřednostňuji přímo na vašem stavebním pozemku. Tvar, výškový rozdíl a orientace pozemku jsou přitom absolutními hlavními faktory!
Ještě nemáte pozemek? Žádný problém! Ráda vám poskytnu přehled o mnoha skvělých možnostech designu domů DAN-WOOD. Existuje tolik zajímavých aspektů, které je třeba probrat: typ domu, dispozice, tvar střechy, vytápění, elektroinstalace, zastínění a možné vybavení jako „chytrý dům“.
Je opravdu důležité znát celkové finanční náklady včetně provedení předběžného návrhu!
S potěšením vám oznamuji, že k tomu provedu předběžné vyúčtování – abyste si tyto náklady mohli snadno naplánovat! Je to opravdu skvělá pomoc! Díky tomu můžete nejen vytvořit finanční plán, ale také hledat financování.
Neváhejte, kontaktujte mě hned nyní! 0676 5537747
Objednávka katalogu na e-mail "Katalog Serie Today" tatjana.wyss@danwood.at
Při objednávce uveďte svou adresu a telefonní číslo.
Na vašem pozemku nebo v...
Güssing: cca 2 600 m², lokalita zcela rovinatá, velikosti pozemků a orientaci můžete volit dle libosti. Velikosti od 500 m² do 1500 m².
Zde se nacházejí stavební pozemky třídy „exkluziv“! V nejlepší lokalitě a s úchvatným výhledem na krásný hrad Güssing!
Güssing nabízí budoucnost zajišťující, dostupné a energeticky nezávislé bydlení v přírodě, což z investice do nemovitosti zde činí strategicky hodnotné aktivum.
Proč Güssing
Energetický průkopník a udržitelnost:
Město je energeticky nezávislé a mezinárodně uznávané.
Vysoké pokrytí (více než 85 %) regionální biomasovou dálkovou vytápěním vede ke stabilním a nízkým nákladům na vytápění.
Dostupné ceny nemovitostí:
Ceny jsou stále výrazně nižší, než je průměr v Rakousku, což umožňuje splnit sen o vlastním domě s prostorným pozemkem.
Silná infrastruktura a kvalita života:
Jako předměstí okresního centra zaručuje Güssing krátké vzdálenosti a nejlepší občanskou vybavenost.
Plánované velké investice:
Nový vzdělávací kampus a moderní lékařské centrum (od roku 2026).
Kulturní centrum (hrad Güssing) a blízkost termálních pramenů.
Kompletní otevření S7 přináší Güssingu a jeho obyvatelům značné výhody:
Rychlejší spojení s metropolitními oblastmi: Rychlá cesta výrazně zkracuje dobu dojezdu na dálnici A2 jižní směr, čímž se výrazně sníží doby cest do Grazu a Vídně.
Odlehčení regionu: Přesměrováním průjezdní dopravy, která dříve velmi zatěžovala obce jako Fürstenfeld a Rudersdorf, na novou trasu.
Ekonomické impulzy: Nové spojení, mimo jiné přes přípojku u Rudersdorf/Dobersdorf a blízkost k napojení na Königsdorf, posiluje Güssing jako předměstí okresního centra i jako obchodní lokalitu díky lepší dostupnosti a podpoře nových průmyslových zón.
Stabilita hodnoty a potenciál rozvoje:
Cílené komunální investice do infrastruktury, oživení centra města a technologického centra zajišťují dlouhodobou stabilitu hodnoty nemovitostí.
Komunální strategie se zaměřuje na zvládnutí demografických výzev a upevnění Güssingu jako atraktivní lokality pro bydlení i podnikání.
Cílová skupina
Rodiny, které hledají budoucnost, jistotu a přírodu, a všichni, kteří si cení nízkých nákladů na energii a ekologické odpovědnosti.
Další pozemky v:
Pozemek, 8323 Kohldorf: Stavební pozemek s hodně slunečním světlem v hrbolatém východním Štýrsku, 15 km od Grazu!
Velikost 758 m², kupní cena € 66 000, --
Pozemek, 8323 Kohldorf: Slunečný stavební pozemek v Kohldorfu, 15 km východně od Grazu!
Velikost 787 m², kupní cena € 69 000, --
Pozemek, 8311 Markt Hartmannsdorf: Zcela inženýrsky připravený, slunečný stavební pozemek v Markt Hartmannsdorf.
Velikost 920 m², kupní cena € 53 000, --
Pozemek, 9335 Lölling Graben: Stavební pozemek s nádherným dalekohledem v malebném karnevalském pohoří.
Velikost 1001 m², kupní cena € 50 000, --
Pozemek, 8075 Hart bei Graz: Slunečný pozemek před branami Grazu.
Velikost 1980 m², kupní cena € 475 000, --
Pozemek ve Stainzu kupte: Slunečný pozemek na okraji Stainzu.
Velikost 825 m², kupní cena € 149 000,
Mezi vlastníkem pozemku a stavitelem domu neexistuje žádné ekonomické propojení.
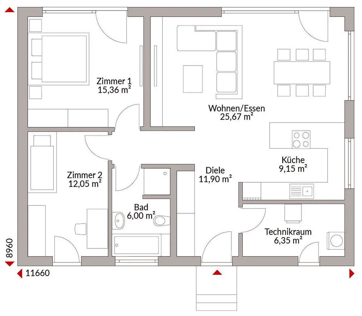
BUNGALOV se 3 pokoji, koupelna, WC, bez vybavení!
Pozemek, k dispozici velikosti 500 m², 1000 m², 1500 m² na vyžádání.
V ceně je zahrnuto:
Klíčové předání (nábytek můžete hned postavit a bydlet!)
Doručení a montáž od horní hrany základu.
Střešní konstrukce zesílená pro sněhovou zátěž.
Vzduch-voda tepelná čerpadla, podlahové vytápění.
Decentralizovaná větrání obytných prostor s rekuperací tepla (v létě slouží také k chlazení).
Elektrická žaluzie v celém domě.
Veškeré podlahové krytiny dle vašeho výběru.
Veškeré sanitární zařízení dle vašeho výběru.
Příprava pro fotovoltaiku.
Balíček "všechno pod kontrolou".
VOLITELNĚ: Samostatná účast na stavbě je samozřejmostí!
Poradenství – prodej Fr. Tatjana Wyss
+43 676 553 77 47 • tatjana.wyss@danwood.at
Okamžitá informace nebo první konzultace!
Další nabídky
https://qr.scan.page/uploads/pdf/1751712478803_686335a001f76.pdf
Vyžádejte si stavební popis a katalogy!
K tomu je nutné uvést telefonní číslo, emailovou adresu a vaši adresu.
Děkujeme!
V okolí nemovitosti najdete
Stále hledáte to pravé?
Nastavte si hlídacího psa. Nabídky vybrané na míru dostanete souhrnně 1× denně e-mailem. S Premium profilem máte k ruce hlídačů rovnou 5 a když se něco objeví, informují vás obratem.












