Prodej domu 3+1 • 87 m² bez realitkyGRUNDSTÜCK 800M GRAZ EXKLUSIV NUR FÜR DANWOOD-HAUSBAU Hart bei Graz Steiermark 8075
GRUNDSTÜCK 800M GRAZ EXKLUSIV NUR FÜR DANWOOD-HAUSBAU Hart bei Graz Steiermark 8075MHD 2 minuty pěšky • GarážBungalov: Níže v PDF naleznete několik příkladů cen!
Vážení stavební investoři,
chcete si konečně splnit sen o vlastním bydlení, ale nevíte, který dodavatel je pro vás ten pravý nebo kdo vám může postavit dům ve vámi požadovaném stylu?
S DAN-WOOD-HOUSE si můžete splnit svůj sen o domově – a to i přesto, že ještě nemáte hotový konkrétní stavební plán. Vyberte si z 130 různých typů domů a nechte je zdarma přizpůsobit vašim představám. K dispozici jsou také různé možnosti stavby zdí.
Jaká geniální myšlenka: Nejde o to, co DAN-WOOD nebo jednotlivé podniky nabízí, ale o to, jak vypadají vaše individuální představy o vašem vysněném bydlení! Zde se vám nabízí odborné poradenství, které vás nadchne!
Nabízím vám své individuální poradenství pro váš projekt! Začínám s úvodní konzultací, kterou přednostně provádím přímo na vašem stavebním pozemku. Tvar, reliéf a orientace pozemku jsou tu absolutními hlavními aktéry!
Pozemek ještě nemáte? Žádný problém! Ráda vám poskytnu přehled úžasných možností, jak lze DAN-WOOD domy designově upravit. Je třeba vyřešit tolik zajímavých aspektů: typ domu, dispozice, tvar střechy, vytápění, elektroinstalaci, stínění a případné vybavení jako „chytrý dům“.
Je opravdu důležité znát celkové finanční náklady včetně nákladů na výběr materiálů!
S potěšením vás mohu informovat, že provedu předběžnou konzultaci vzorků. Takto si tyto náklady velmi snadno naplánujete! Je to opravdu skvělá pomoc! Díky tomu nejenže sestavíte financovací plán, ale můžete se i pustit do hledání financování.
Neváhejte, kontaktujte mě hned teď! 0676 5537747
Objednávka katalogu pod „Katalog Serie Today“ tatjana.wyss@danwood.at
Při objednávce prosím uveďte vaši adresu i telefonní číslo
Na vašem pozemku nebo v...
Güssing: cca 2 600 m², lokalita zcela rovinná, velikosti pozemků a polohy dle vlastního výběru. Velikosti od 500 m² do 1500 m².
Zde jsou stavební pozemky extra třídy! V nejlepší lokalitě a s dechberoucím výhledem na nádherný hrad Güssing!
Güssing nabízí život orientovaný do budoucnosti, cenově dostupný a energeticky nezávislý v prostředí zeleně, což činí investici do nemovitosti zde strategickou hodnotovou investicí.
Proč Güssing
Energie jako pionýr a udržitelnost:
Město je energeticky soběstačné a mezinárodně uznávané.
Vysoké pokrytí (více než 85 %) regionálním biomasovým dálkovým vytápěním vede ke stabilním a příznivým nákladům na vytápění.
Dostupné ceny nemovitostí:
Ceny jsou stále výrazně příznivější než průměr v Rakousku, což umožňuje splnit sen o vlastním domě se štědrými pozemky.
Silná infrastruktura a kvalita života:
Jako předměstí okresu zaručuje Güssing krátké vzdálenosti a nejlepší zázemí.
Plánované velké investice:
Nový vzdělávací kampus a moderní lékařské centrum (od roku 2026).
Kulturní centrum (hrad Güssing) a blízkost lázní.
Plná otevřenost S7 přináší Güssingu a jeho obyvatelům zásadní výhody:
Rychlejší spojení s metropolitními oblastmi: Rychlá silnice výrazně zkracuje dobu jízdy na dálnici A2 směrem na jih, čímž se výrazně zkracují doby cest do Grazu a Vídně.
Úleva pro region: Nová trasa přesměrovává průjezdovou dopravu, která předtím zatěžovala obce jako Fürstenfeld a Rudersdorf.
Ekonomické impulzy: Nové spojení, mimo jiné i přes odbočku u Rudersdorf/Dobersdorf a blízkost k připojení Königsdorf, posiluje Güssing jako předměstí okresu a ekonomické centrum díky lepší dostupnosti a podpoře nových průmyslových parků.
Hodnotová stabilita a rozvojový potenciál:
Cílené komunální investice do infrastruktury, revitalizace městského centra a technologického centra zajišťují dlouhodobou hodnotovou stabilitu nemovitostí.
Městská strategie se zaměřuje na zvládání demografických výzev a zakotvení Güssingu jako atraktivního místa pro bydlení a podnikání.
Cílová skupina
Rodiny, které hledají budoucnost, bezpečí a přírodu, stejně jako všichni, kterým záleží na nízkých nákladech na energie a ekologické odpovědnosti.
Další pozemky v:
Pozemek, 8323 Kohldorf: Stavební pozemek s mnoha slunnými místy v východním Štýrském kopcovitém terénu, 15 km od Grazu!
Velikost 758 m², kupní cena € 66 000, --
Pozemek, 8323 Kohldorf: Slunný stavební pozemek v Kohldorfu, 15 km východně od Grazu!
Velikost 787 m², kupní cena € 69 000, --
Pozemek, 8311 Markt Hartmannsdorf: Plně inženýrsky zajištěný, slunný stavební pozemek v Markt Hartmannsdorf
Velikost 920 m², kupní cena € 53 000, --
Pozemek, 9335 Lölling Graben: Stavební pozemek s úchvatným výhledem v malebném karinskem horském prostředí
Velikost 1001 m², kupní cena € 50 000, --
Pozemek, 8075 Hart při Grazu: Slunný pozemek u bran Grazu
Velikost 1980 m², kupní cena € 475 000, --
Pozemek ke koupi v Stainzu: Slunný pozemek na okraji obce Stainz
Velikost 825 m², kupní cena € 149 000,
Mezi vlastníkem pozemku a stavitelem domu neexistuje žádné hospodářské spojení.
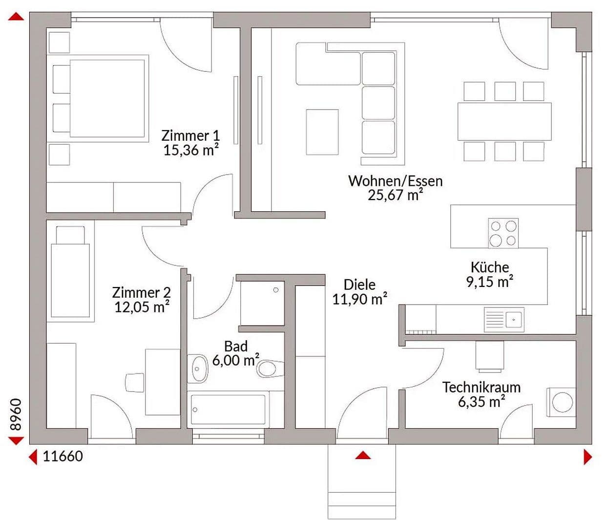
BUNGALOV 3+1 s koupelnou a toaletou, bez příplatkového vybavení!
Pozemek: 500 m², 1000 m², 1500 m² – dle přání k dispozici.
V ceně:
Hotový dům (naskládejte nábytek a můžete bydlet!)
Dodávka a montáž od horní hrany základů.
Střešní konstrukce zesílená proti sněhové zátěži.
Vzduch-voda tepelná čerpadla, podlahové vytápění.
Decentralizovaná větrání obytných prostor se rekuperací tepla (v létě chladič).
Elektrické žaluzie v celém domě.
Veškeré podlahové krytiny dle vašeho výběru.
Veškeré sanitární zařízení dle vašeho výběru.
Příprava pro fotovoltaiku.
Balení „vše bez starostí“.
VOLITELNĚ: Samostatná práce je samozřejmě možná!
Poradenství – prodej paní Tatjana Wyss
+43 676553 77 47 tatjana.wyss@danwood.at
Okamžitá informace či úvodní konzultace!
Další nabídky:
https://qr.scan.page/uploads/pdf/1751712478803_686335a001f76.pdf
Požádejte o stavební popis a katalogy!
Je k tomu nutné uvést vaše telefonní číslo, e-mailovou adresu a adresu.
Mnohokrát děkuji!
V okolí nemovitosti najdete
Stále hledáte to pravé?
Nastavte si hlídacího psa. Nabídky vybrané na míru dostanete souhrnně 1× denně e-mailem. S Premium profilem máte k ruce hlídačů rovnou 5 a když se něco objeví, informují vás obratem.












