Prodej domu • 240 m² bez realitky, Braniborsko
, BraniborskoMHD 3 minuty pěšky • ParkováníPrivátní prodej / bez provize:
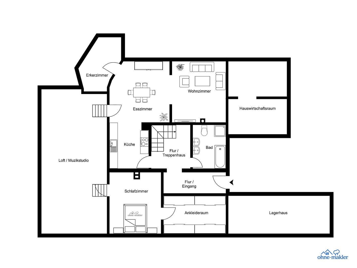
Historický venkovský dům, postavený Ferdinandem Kindermannem, se nachází v klidné vilové kolonii Waldsieversdorf a nabízí na 240 m² prostor pro bydlení, práci i kreativní vyžití.
Dříve využívaný jako cukrárna a kavárna v 20. letech 20. století, dům se skládá ze dvou bytů na dvou patrech, které lze případně propojit, a loftu, který je v současnosti využíván jako hudební studio. Prostorný loft je flexibilně využitelný – například jako ateliér, pro sport, fitness nebo jógu, jako výstavní prostor, pro kreativní komerční účely nebo jako individuální obytný prostor. Slunečný vnitřní dvůr a malá zahrádka dokonale doplňují atmosféru. Hlavní dům je podkrovní, dále je zde dlažbaný skladový prostor a cihlový carport, plus tři parkovací místa. Dům není zapsán jako památkově chráněný. Lesy a velké jezero Däbersee vhodné ke koupání jsou dostupné pěšky. Nádraží s přímým spojením do Berlína se nachází pouhých asi 5 km odtud – ideální pro rodiny a kreativní jedince, kteří touží po domově s mnohostranným využitím na jednom z nejkrásnějších míst Märkische Schweiz. Historie mého domu je popsána v knize "Waldsieversdorf - EINST UND JETZT" od Kirsten Lauritsen a Karin Stein-Bachinger (nakladatelství CULTURCON medien, ISBN 978-3-7308-1715-5).
Obec Waldsieversdorf se nachází uprostřed přírodní rezervace Märkische Schweiz, asi 2 km od města Buckow, a je státně uznávaným rekreačním místem. Oblast je bohatá na lesy a jezera. Waldsieversdorf poblíž Buckow je oblíbená zejména u rodin – v okolí se nachází škola, dvě mateřské školy, obchod s biopotravinami, pekárna, kavárny a restaurace, kino, divadlo, antikvariát, lékárna a lékařský dům. Přímé spojení do Berlína z RB 26/nádraží Müncheberg a S-Bahn 5 ve Strausbergu.
• Historický venkovský dům ve vilové kolonii Waldsieversdorf, postavený cca v roce 1909 Ferdinandem Kindermannem, bývalá cukrárna a kavárna z 20. let 20. století
• 2 byty a loft (s výškou až 4 m, s ocelovými nosníky/dvojitým T-trámovým stropem), který je v současnosti hudebním studiem, dostatečně velký pro ateliér, kreativní volnočasový prostor nebo jako individuální obytný prostor
• Byty lze v případě potřeby spojit, se společným schodištěm
• Dům má 8 místností, 2 kuchyně, 2 koupelny (jedna s vanou, druhá se sprchou); v obývacím pokoji v přízemí se nachází krb; obytná plocha podle aktuálního zaměření činí 240 m²
• Původní dřevěná podlaha v obývací/jídelně v přízemí
• Slunečný vnitřní dvůr a zahrádka
• Dodatečné užitné prostory: malý dlažbaný sklad (24 m²) a vytápěná přístavba se zařízením pro vodu/kanalizaci, sloužící jako domácí hospodářský prostor (24 m²)
• Suterén: 72 m², přístupný
• Carport pro jedno auto nebo obytný vůz (vysoký/zdivo, bývalý pekárenský objekt); pozemek má navíc 3 parkovací místa
• Všechny inženýrské sítě jsou k dispozici (voda, odpadní voda, plyn, elektřina, internet)
• Nová optická propojení (sklolákno) od roku 2024
• Celý obytný prostor je vytápěn plynovým topením (Buderus/Logomax Plus GB), instalovaným v roce 2016
• Pravidelně rekonstruován/renovován od roku 2015
• Není pod ochranou památek
• Kupní cena: 449 000 € (k jednání)
• K nastěhování dle dohody
Není pod ochranou památek.
Parametry nemovitosti
| Stáří | Nad 50 let |
|---|---|
| Číslo inzerátu | 979533 |
| Užitná plocha | 240 m² |
| Celkem podlaží | 2 |
| Stav | Po rekonstrukci |
|---|---|
| PENB | G - Mimořádně nehospodárná |
| Plocha pozemku | 567 m² |
| Cena za jednotku | 1 871 € / m2 |
Co tato nemovitost nabízí?
| Sklep | |
| Parkování |
| MHD 3 minuty pěšky |
V okolí nemovitosti najdete
Stále hledáte to pravé?
Nastavte si hlídacího psa. Nabídky vybrané na míru dostanete souhrnně 1× denně e-mailem. S Premium profilem máte k ruce hlídačů rovnou 5 a když se něco objeví, informují vás obratem.





























