
Prodej bytu 4+1 • 113 m² bez realitkyKassel Kassel Hessen 34128
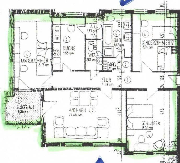
Kassel Kassel Hessen 34128MHD 2 minuty pěškyJedná se o velmi atraktivní, téměř jako nový zrekonstruovaný a prostorně uspořádaný vlastnický byt, který se nachází v klidné vedlejší ulici, je chráněný a díky své zadní poloze neviditelný zvenčí, obklopen zelení. Byt se nachází v 1. patře a obytná plocha se dělí na obývací pokoj s přístupem na balkon, ložnici, dětský pokoj, dětský/pracovní pokoj (rovněž s přístupem na balkon), moderní koupelnu s přirozeným denním světlem (2011) s vanou, sprchou, toaletou a bidetem, moderní hostinskou toaletu (2011, umístěnou uvnitř bytu), kuchyň s vestavěnou kuchyňskou linkou (2022) a spižírnu, dále pak chodbu.
Pekárna (~50 metrů!), lékárna, různí lékaři a obchodní možnosti jsou dosažitelné během několika minut chůze. Totéž platí o autobusové zastávce Harleshausen Mitte. V místě se nachází také mateřská škola a základní škola „Am Krauthof“ je vzdálena 450 m. Před domem se nachází několik (veřejných) a zdarma využitelných parkovacích míst. Park „Am Kubergraben“ s dětským hřištěm začíná přímo za domem.
Kassel-Harleshausen se rozprostírá na nejseverozápadnějším okraji města, je obklopen zelení a protkán poli i loukami, a proto patří k nejpopulárnějším a nejatraktivnějším čtvrtím Kasselu s velmi vysokou kvalitou bydlení.
Obchodní příležitosti jsou k dispozici. Díky výborné dostupnosti veřejné dopravy nebo autem je centrum města snadno dosažitelné, stejně jako dálnice A 44. Pro sportovní vyžití či pobyt v přírodě je k dispozici řada možností.
Byt je moderně a většinou jako nový vybaven. Důležité vybavení a chronologické investice do samostatného vlastnictví zahrnují:
2011: kompletní a kvalitní rekonstrukce koupelny s denním světlem a hostinské toalety včetně obkladů stěn a podlah, elektrické podlahové vytápění
2014: nové vstupní dveře s hliníkovou vložkou, profilový cylindrický zámek se třemi stupni uzamknutí, bocní těsnění
2020: pokládka pravého dubového parketového dřeva v celém bytě (s výjimkou kuchyně a koupelny), pokládka kvalitního vinylu v kuchyni
2020: nové bílé vnitřní dveře a lakování rámů dveří a radiátorů
2020: elektro práce → instalace proudového chrániče (FI), výměna/rozšíření vypínačů a zásuvek
2022: nová moderní vestavěná kuchyň (Burger) s oboustranně lakovanými čelem, včetně všech elektrospotřebičů (všechny Siemens a odsávání od firmy Berbel)
2025: Byt zrenovován (všechny místnosti kromě koupelny nově tapetovány a natřeny)
Rozlohy jednotlivých místností:
• Obývací pokoj: 24,60 m²
• Ložnice: 18,28 m²
• Dětský/pracovní pokoj: 16,76 m²
• Dětský pokoj: 15,14 m²
• Kuchyň s vestavěnou kuchyňskou linkou: 9,63 m²
• Spižírna: 1,93 m²
• Koupelna s denním světlem a podlahovým vytápěním: 6,67 m²
• Hostinská toaleta: 2,62 m²
• Chodba/systém vzájemné komunikace: 11,49 m²
• Šatna: 2,23 m²
• Loggia: 7,16 m²
V okolí nemovitosti najdete
Stále hledáte to pravé?
Nastavte si hlídacího psa. Nabídky vybrané na míru dostanete souhrnně 1× denně e-mailem. S Premium profilem máte k ruce hlídačů rovnou 5 a když se něco objeví, informují vás obratem.
















