Pronájem kanceláře • 480 m² bez realitkyMax-Eyth-Str.23, , Bádensko-Württembersko
Max-Eyth-Str.23, , Bádensko-WürttemberskoMHD 4 minuty pěšky • Výtah • ParkováníProvisionsfrei k pronájmu v Ditzingenu-Hirschlanden (průmyslová zóna)
Ideální příležitost pro velmi malé nově vznikající firmy nebo pro přesun již fungujících větších společností. Pronajímané prostory jsou Čerstvě zrenovovány!
Pronajímatelné prostory se nacházejí v obchodní zóně Ditzingen-Hirschlanden přímo u dálnice A81. Budovy stojí na rohovém pozemku v rámci této obchodní oblasti. Nabízí se krásný výhled na okolní pole a louky.
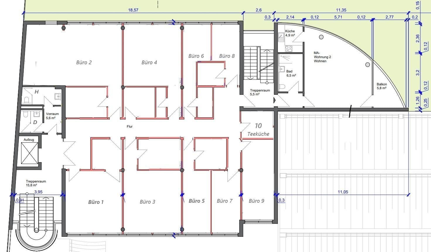
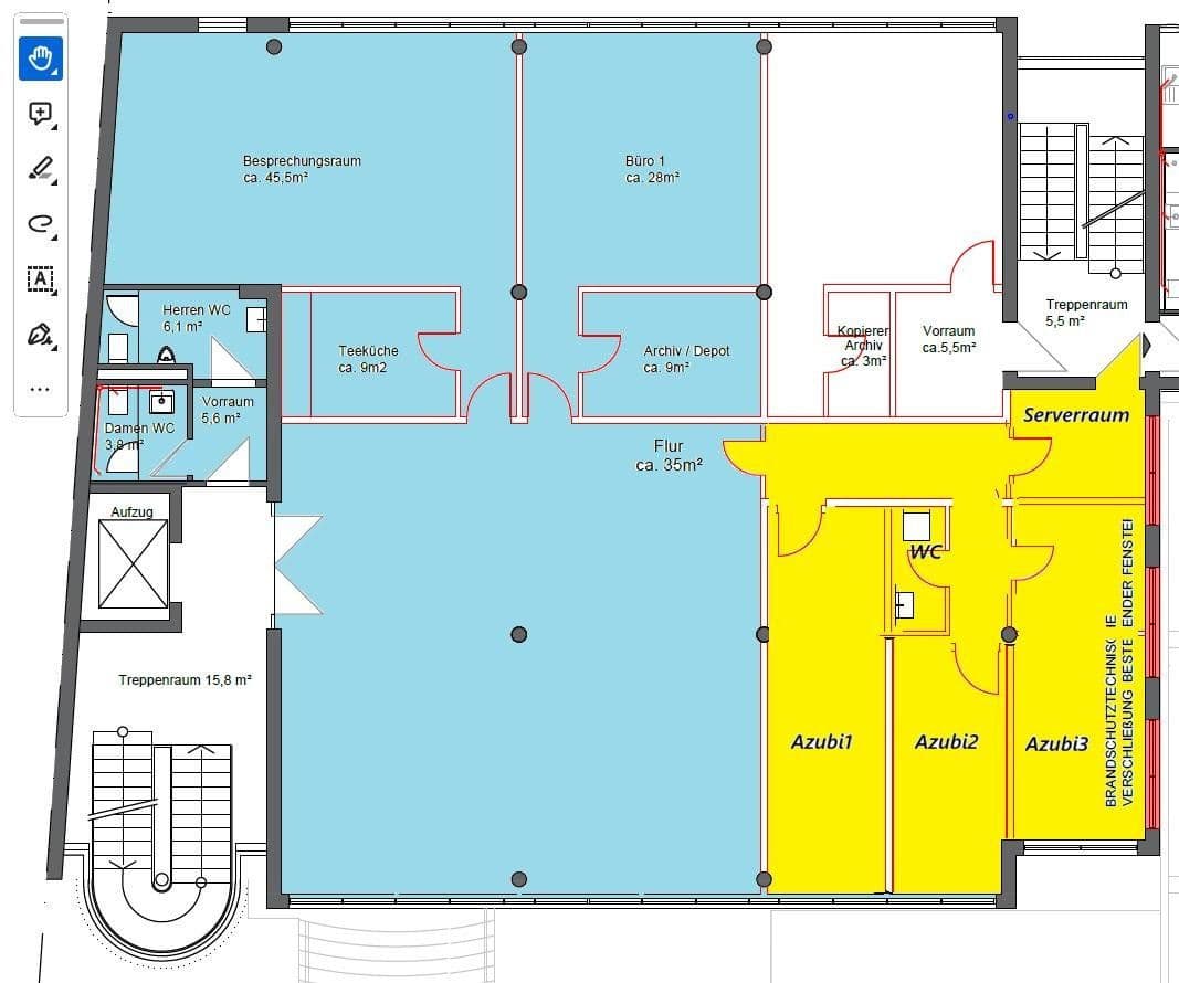
Můžete si pronajmout buď menší kancelář o rozloze od 15 m², nebo jednu z obou celkových podlaží (každé 240 m²). U samostatných kanceláří je k dispozici společná čajovna. Internet a topení jsou již zahrnuty v provozních nákladech.
(Můžete si rovněž pronajmout skladovací prostory / haly nebo více parkovacích stání. Viz dále níže)
K dispozici je středně velký osobní výtah. Celý objekt je navíc monitorován pomocí videokamer.
Kromě toho je možné pronajmout:
- Parkovací místa pro vozidla v požadovaném počtu (1–30) přímo na dvoře
- Skladové/produkční prostory v suterénu a v přízemí o požadované rozloze (75–960 m²)
- Tři apartmány pro zaměstnance (každý 2,5 pokojů, 55 m²) na zadní straně budovy
- Penthouse o rozloze 300 m², případně jako exkluzivní kancelářský prostor ve 3. patře
Zavolejte nám a řekněte nám, co přesně hledáte a potřebujete. Jsme naprosto flexibilní.
Parametry nemovitosti
| Stáří | Nad 50 let |
|---|---|
| Podlaží | 2. podlaží z 2 |
| Plocha kanceláře | 480 m² |
| Stav | Po rekonstrukci |
|---|---|
| Číslo inzerátu | 980133 |
| Cena za jednotku | 1 € / m2 |
Co tato nemovitost nabízí?
| Sklep | |
| Výtah | |
| MHD 4 minuty pěšky |
| Parkování |
V okolí nemovitosti najdete
Stále hledáte to pravé?
Nastavte si hlídacího psa. Nabídky vybrané na míru dostanete souhrnně 1× denně e-mailem. S Premium profilem máte k ruce hlídačů rovnou 5 a když se něco objeví, informují vás obratem.






















