Pronájem nebytového prostoru • 76 m² bez realitkyWeiserstraße 28 Salzburg Schallmoos Salzburg 5020
Weiserstraße 28 Salzburg Schallmoos Salzburg 5020MHD 2 minuty pěškyKvůli odchodu do důchodu půjčuji od této chvíle
BEZ PROVIZE
svůj obchodní prostor v bezprostřední blízkosti hlavního nádraží v Salzburgu.
Obchodní místnost se nachází v přízemí obytného bloku s celkem 42 byty a třemi dalšími obchodními prostory.
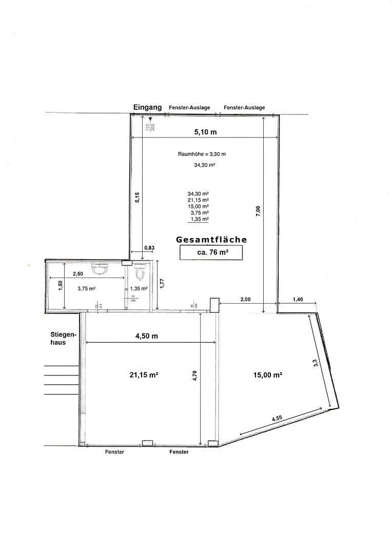
Celková obchodní plocha cca 76 m² je rozdělena do 3 místností:
1. Prodejní místnost (cca 50 m²)
a
2. Kancelář (cca 21 m²) – tyto dvě místnosti odděluje pouze provizorní příčka, kterou je možné v případě potřeby odstranit.
3. Skladovací místnost s vodním přípojkou (resp. malá kuchyň o rozloze cca 5 m²) a WC (cca 1 m²)
Obchod má dvě vstupní dveře: jedny ze strany ulice a druhé (masivní bezpečnostní dveře) na zadním dvoře obytného bloku, resp. ve vstupní chodbě budovy.
I skladovací místnost je od kanceláře oddělena bezpečnostními dveřmi.
Všechny výklopy, dvě velká okna ve dvoře a vstupní dveře jsou navíc chráněny žaluziemi.
Celý obchodní prostor byl před několika lety nákladně a komplexně zrekonstruován – byly vyměněny všechny elektroinstalace, zásuvky, vypínače, radiátory a dveře.
Podlaha byla pokryta keramickými dlaždicemi z kameniny.
Celý prostor byl nedávno nově natřen.
Byl instalován kabelový alarm (který je však technicky již zastaralý), ale stále funguje.
Nabízený obchodní prostor je vynikající také jako kancelář.
Měsíční nájem činí 1.500 EUR. Nájemce hradí i provozní náklady, které momentálně činí cca 386 EUR včetně DPH, přičemž obchodní prostor nebyl v posledních letech vytápěn. Bezprostředně pod obchodem se nachází topírna celého obytného bloku, takže teplota místností v zimě téměř neklesá pod 19 °C.
P.S. Pro gastronomický provoz je nevhodný. Energetický štítek je k dispozici. Obchodní prostor je rovněž k prodeji (VP 330.000 EUR).
Salzburg Schallmoos / Neustadt – v bezprostřední blízkosti zadní nástěnky hlavního nádraží v Salzburgu, resp. cca 250 metrů od hlavního vchodu HBF Salzburg.
Cca 60 metrů k autobusovým zastávkám v obou směrech.
Cca 100 metrů k celodenně obsluhované policejní stanici.
Parametry nemovitosti
| Stáří | Nad 50 let |
|---|---|
| Číslo inzerátu | 980137 |
| Cena za jednotku | 20 € / m2 |
| Stav | Po rekonstrukci |
|---|---|
| Plocha nebytového prostoru | 76 m² |
Co tato nemovitost nabízí?
| Bezbariérový přístup | |
| MHD 2 minuty pěšky |
V okolí nemovitosti najdete
Stále hledáte to pravé?
Nastavte si hlídacího psa. Nabídky vybrané na míru dostanete souhrnně 1× denně e-mailem. S Premium profilem máte k ruce hlídačů rovnou 5 a když se něco objeví, informují vás obratem.























