Prodej bytu 3+1 • 33 m² bez realitky, Braniborsko
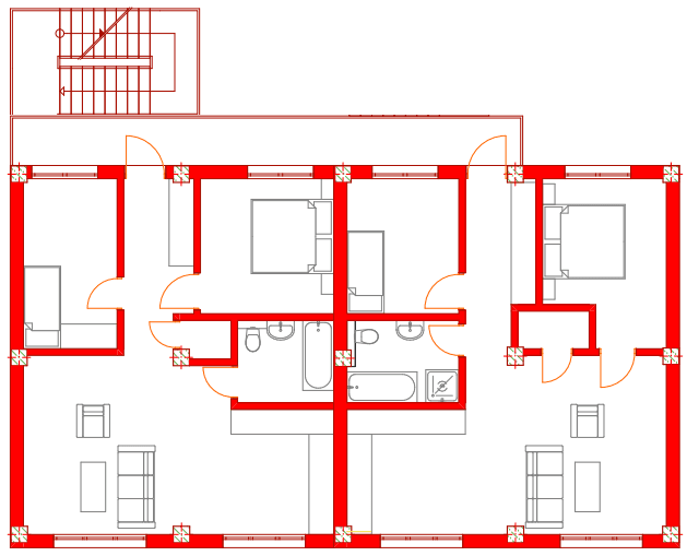
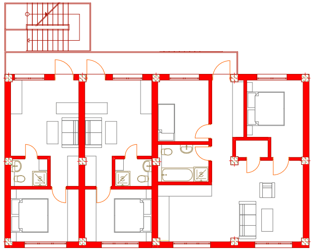
, BraniborskoMHD 2 minuty autem • ParkováníV našem moderním novostavbovém komplexu je k prodeji celkem 7 bytových jednotek s obytnou plochou přibližně od 33 m² do 64 m². Byty zaujmou promyšlenými dispozicemi a kvalitním provedením. Stropní výšky až 3,60 m vytvářejí prostorný, světlý a vzdušný pocit z bydlení.
Jedna z jednotek disponuje vlastní terasou. Podlahová okna s trojitým zasklením zajišťují světlé místnosti, optimální energetickou účinnost a zároveň soukromí díky integrovaným zrcadlovým a stínícím prvkům. Vyšší standard vybavení nabízí kvalitní základ a umožňuje individuální úpravy dle osobních představ.
Fehrbellin, nacházející se ve stejnojmenné části obce, nabízí klidnou, ale přitom dobře dostupnou lokalitu. Infrastruktura zahrnuje potřebné možnosti pro každodenní nákupy i lékařskou péči. Dobré spojení do nadregionální dopravní sítě jistě ocení i dojíždějící. Četné zelené plochy a okolní příroda vybízejí k volnočasovým aktivitám v přírodě.
Navíc jsou v tomto novostavbovém komplexu k prodeji další bytové jednotky různých velikostí. V případě zájmu Vám rádi poskytneme přehled dostupných jednotek a osobně Vás seznámíme s různými možnostmi.
V okolí nemovitosti najdete
Stále hledáte to pravé?
Nastavte si hlídacího psa. Nabídky vybrané na míru dostanete souhrnně 1× denně e-mailem. S Premium profilem máte k ruce hlídačů rovnou 5 a když se něco objeví, informují vás obratem.








