Pronájem bytu 1+kk • 40 m² bez realitkyBirkenallee 4 Dessau-Roßlau Roßlau (Elbe) Sachsen-Anhalt 06862
Jedná se o udržovanou obytnou zástavbu na prostorném pozemku, přičemž je zde i dětské hřiště nacházející se na venkovním areálu.
Parkovací místa pro hosty se rovněž nacházejí na tomto pozemku.
K dispozici je služba správce domu, zimní údržby a úklidu schodiště.
Bytové sídlo je dopravně výhodně situováno vůči silnicím B184, B187 či dálnici A9. Má také dobré spojení s veřejnou městskou hromadnou dopravou.
Infrastruktura: lékárna, diskont potravin, všeobecná medicína, mateřská škola, základní škola, gymnázium, integrovaná škola, veřejná doprava.
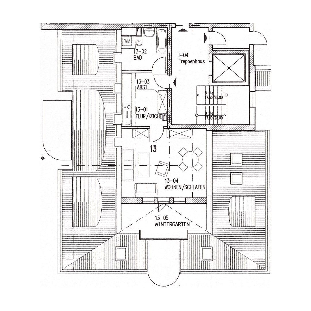
Jednopokojový byt (39,5 m²) se nachází v Dessau-Roßlau, v městské části Roßlau (Birkenallee), a disponuje koupelnou s přirozeným denním světlem (včetně připojení pro pračku), zimní zahradou, parkovacím místem pro osobní automobil, sklepním prostorem a navíc prostorným podkrovním prostorem, který je přístupný pomocí vysouvací žebříkové stupnice.
Mezi další vybavení patří mimo jiné vestavěná kuchyň s jídelním koutem.
Ve sklepním podlaží se dále nachází rekreační místnost, místnost na uskladnění jízdních kol i dětských kočárků a také místnosti určené pro praní a sušení prádla.
V okolí nemovitosti najdete
Stále hledáte to pravé?
Nastavte si hlídacího psa. Nabídky vybrané na míru dostanete souhrnně 1× denně e-mailem. S Premium profilem máte k ruce hlídačů rovnou 5 a když se něco objeví, informují vás obratem.














