
Pronájem bytu 2+1 • 80 m² bez realitky, Dolní Sasko
, Dolní SaskoMHD 7 minut pěškyDům byl v roce 2008 zateplen dle pokynů KfW a proKlima a je připojen k systému dálkového vytápění.
Nachází se v dopravně klidné oblasti v blízkosti městského lesa Eilenriede, kde jsou k dispozici různé možnosti nákupu a stravování. Tramvajová zastávka je dosažitelná za 5 minut a centrum (nádraží) je dostupné na kole za přibližně 15 minut.
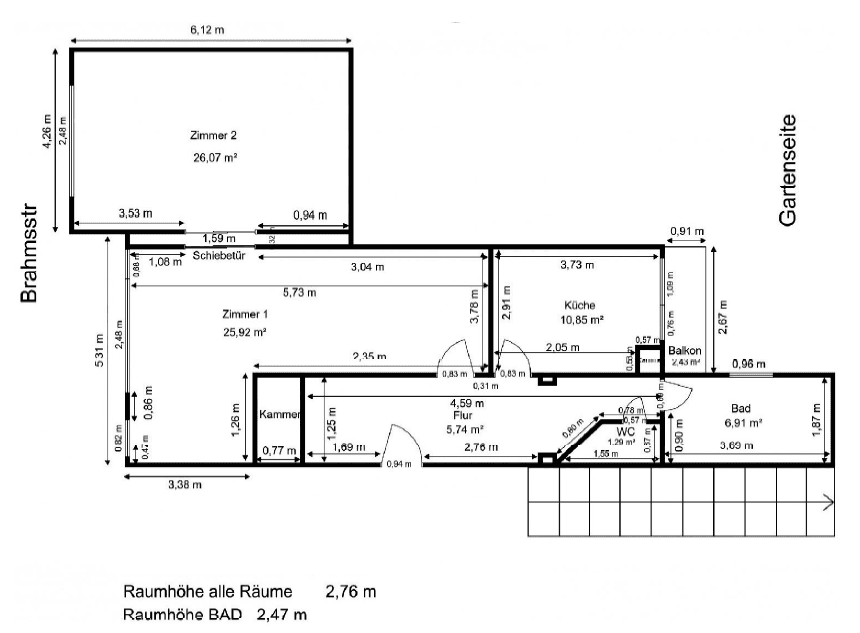
K dispozici je koupelna se sprchou, hostinská toaleta a kuchyň s balkonem orientovaným na jihozápad.
Uvedené nájemné se vztahuje na jednu osobu; za každou další osobu se aktuálně k teplému nájmu připočítá 25,00 € (za zásobování vodou a odpadové služby), přičemž úklid schodiště je již v teplém nájmu zahrnut, avšak kabelová televize ne.
Energetické náklady (pouze za elektřinu) a náklady na vytápění (v podobě zálohy vůči Stadtwerke Hannover) hradí nájemce sám.
V nájemní smlouvě je stanovena minimální doba pronájmu 2 roky.
V okolí nemovitosti najdete
Stále hledáte to pravé?
Nastavte si hlídacího psa. Nabídky vybrané na míru dostanete souhrnně 1× denně e-mailem. S Premium profilem máte k ruce hlídačů rovnou 5 a když se něco objeví, informují vás obratem.












