Prodej bytu 3+1 • 81 m² bez realitky, Bádensko-Württembersko
, Bádensko-WürttemberskoMHD 1 minuta pěšky • ParkováníNyní využijte výhodu časného rozhodnutí a ušetřete 30 000 €: rezervujte si byt do 31.12.2025 a zajistěte si cenu 415 000 € namísto 445 000 €.
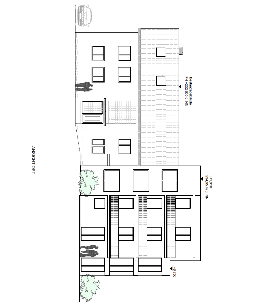
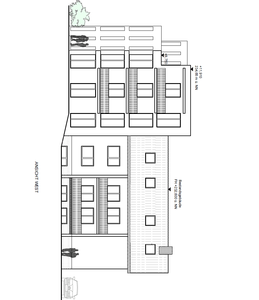
Kousek od areálu lázeňského parku obce Bad Bellingen vzniká vedle staršího stávajícího objektu samostatný novostavbový projekt složený ze sedmi bytových jednotek. Dva byty v přízemí, prvním i druhém patře mají obytnou plochu mezi 48 m² a 49 m² a dvě místnosti. Penthouse v 3. patře se vyznačuje dalším ložnicí a obytnou plochou přes 80 m². Všechny byty těží z velkého množství podlahových oken, která zajišťují světlou a příjemnou atmosféru. Promyšlené dispozice s otevřeným obývacím, kuchyňským a jídelním prostorem podtrhuje modernost celého projektu. Koupelny ve všech bytech jsou vybaveny bezzdvižnou sprchou, přičemž u tří se orientují na východ a velká koupelna v půdní části má navíc okno. Byty v přízemí jsou bezbariérově přístupné, a proto jsou ideální i pro seniory. Na velké terase si můžete vychutnat buď ranní, nebo večerní slunce. Byty ve vyšších patrech jsou dostupné po schodišti, přičemž počet schodů je vzhledem k malému počtu pater poměrně přehledný. Tyto jednotky mají místo terasy balkon, penthouse dokonce disponuje dvěma balkóny.
Bad Bellingen je obec s více než 5 000 obyvateli na severozápadě okresu Lörrach, nacházející se v trojmezí Německo-Francie-Švýcarsko. Příjezd na dálnici č. 5 trvá jen 10 minut, což umožňuje dojet do měst Lörrach za 30 minut, Mülhausen za 40 minut a Basilej rovněž za 30 minut – město, které je známé svým mezinárodním letištěm. Dopravu pak doplňují regionální a expresní vlaky podél trati Rheintalschiene, přičemž samotný Bad Bellingen má i vlastní nádraží.
Obec si od objevu termálních pramenů v padesátých letech minulého století vybudovala přeshraniční renomé jako lázeňské a turistické středisko. Tímto prospívá lokální ekonomika a celková infrastruktura obce. K dispozici je zde vše potřebné pro každodenní život – v docházkové vzdálenosti od novostavby se nachází lázeňský park se spoustou volnočasových aktivit, jako je oblíbené bazén Balinea, stezka naboso, dětské hřiště nebo fitness dráha. V okolí najdete řadu obchodů, velký supermarket a gastronomické provozovny. Přiléhající Rýn a nedaleký Hertinger Wald dále rozšiřují přírodní bohatství regionu.
• Udržitelná výstavba dle energeticky efektivního standardu KfW 40
• Podlahové vytápění ve všech místnostech (vzduch-voda tepelné čerpadlo)
• Moderně navržený bytový koncept s otevřenou kuchyní
• Podlahová plastová okna (trojitě zasklená) s elektrickými hliníkovými rolety
• Podlahové krytiny: parketová podlaha v obývacím a ložnicovém prostoru a dlaždice 60x60 cm v koupelně
• Stěnové krytiny: malířské vlna v obývacím a ložnicovém prostoru a dlaždice 60x30 cm v koupelně
• Nadčasové provedení koupelny s bezzdvižnou sprchou, oknem a sanitárním vybavením či armaturami renomovaných firem Duravit a Hansgrohe
V okolí nemovitosti najdete
Stále hledáte to pravé?
Nastavte si hlídacího psa. Nabídky vybrané na míru dostanete souhrnně 1× denně e-mailem. S Premium profilem máte k ruce hlídačů rovnou 5 a když se něco objeví, informují vás obratem.













