Pronájem nebytového prostoru • 988 m² bez realitkyOtto-Kipp-Straße 2 Scharbeutz Pönitz Schleswig-Holstein 23684
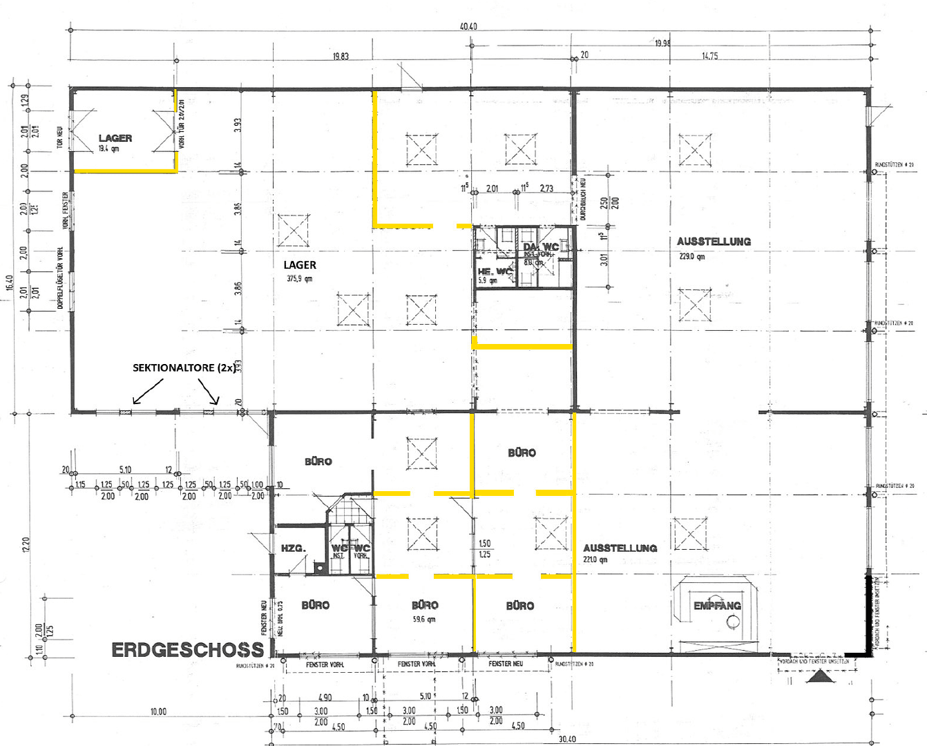
Otto-Kipp-Straße 2 Scharbeutz Pönitz Schleswig-Holstein 23684MHD 4 minuty pěškyNa pronájem je k dispozici komerční nemovitost o rozloze přibližně 988 m², situovaná v dopravně výhodné lokalitě Scharbeutz – čtvrť Gleschendorf.
Prostor je funkčně rozdělen na skladové, výstavní a kancelářské prostory, včetně sanitárního zázemí, a je ideální pro firmy, které chtějí na jednom místě spojit administrativu, prezentaci a skladování.
Zvláštním přínosem je instalovaná fotovoltaická elektrárna, jež umožňuje roční výrobu elektřiny přibližně 50 000 kWh (referenční rok 2021). Elektřinu lze za nízkou cenu získat přímo od majitelky.
Přehled prostor a vybavení:
- Celková plocha: přibližně 988 m²
- Skladový prostor se dvěma sekčními vraty
- 13 parkovacích míst přímo u objektu, další parkovací místa dle dohody
- Fotovoltaická elektrárna za atraktivních podmínek
- Možnost flexibilního rozdělení prostoru
- Celý prostor se nachází bez schodů v přízemí
- Velmi dobrá dostupnost pro zákazníky, zaměstnance a dodací dopravu
Další možné využití:
- Řemeslné a obchodní podniky
- Obchodní a distribuční společnosti
- Firmy s potřebou showroomu a skladu
- Logisticky orientovaní poskytovatelé služeb
- Kancelářské a servisní společnosti s potřebou prostoru
- Plánujete jiné využití? Stačí se zeptat!
Výborná, dopravně výhodná lokalita v obchodní oblasti Gleschendorf (obec Scharbeutz) s rychlým napojením na regionální dopravní síť.
Bez provize!
Kontakt a prohlídka:
Zájemci jsou srdečně zváni, aby nás kontaktovali prostřednictvím zprávy.
Prosíme, zašlete nám krátké představení vaší společnosti, informace o plánovaném využití prostoru a vaše kontaktní údaje, zejména telefonní číslo.
Ozveme se vám co nejdříve, abychom prodiskutovali další podrobnosti.
Parametry nemovitosti
| Stáří | Nad 50 let |
|---|---|
| Číslo inzerátu | 981328 |
| Cena za jednotku | 7 € / m2 |
| Stav | Dobrý |
|---|---|
| Plocha nebytového prostoru | 988 m² |
Co tato nemovitost nabízí?
| MHD 4 minuty pěšky |
V okolí nemovitosti najdete
Stále hledáte to pravé?
Nastavte si hlídacího psa. Nabídky vybrané na míru dostanete souhrnně 1× denně e-mailem. S Premium profilem máte k ruce hlídačů rovnou 5 a když se něco objeví, informují vás obratem.























