Prodej bytu 5+1 • 100 m² bez realitkyMadamenweg 173 Braunschweig Braunschweig Niedersachsen 38118
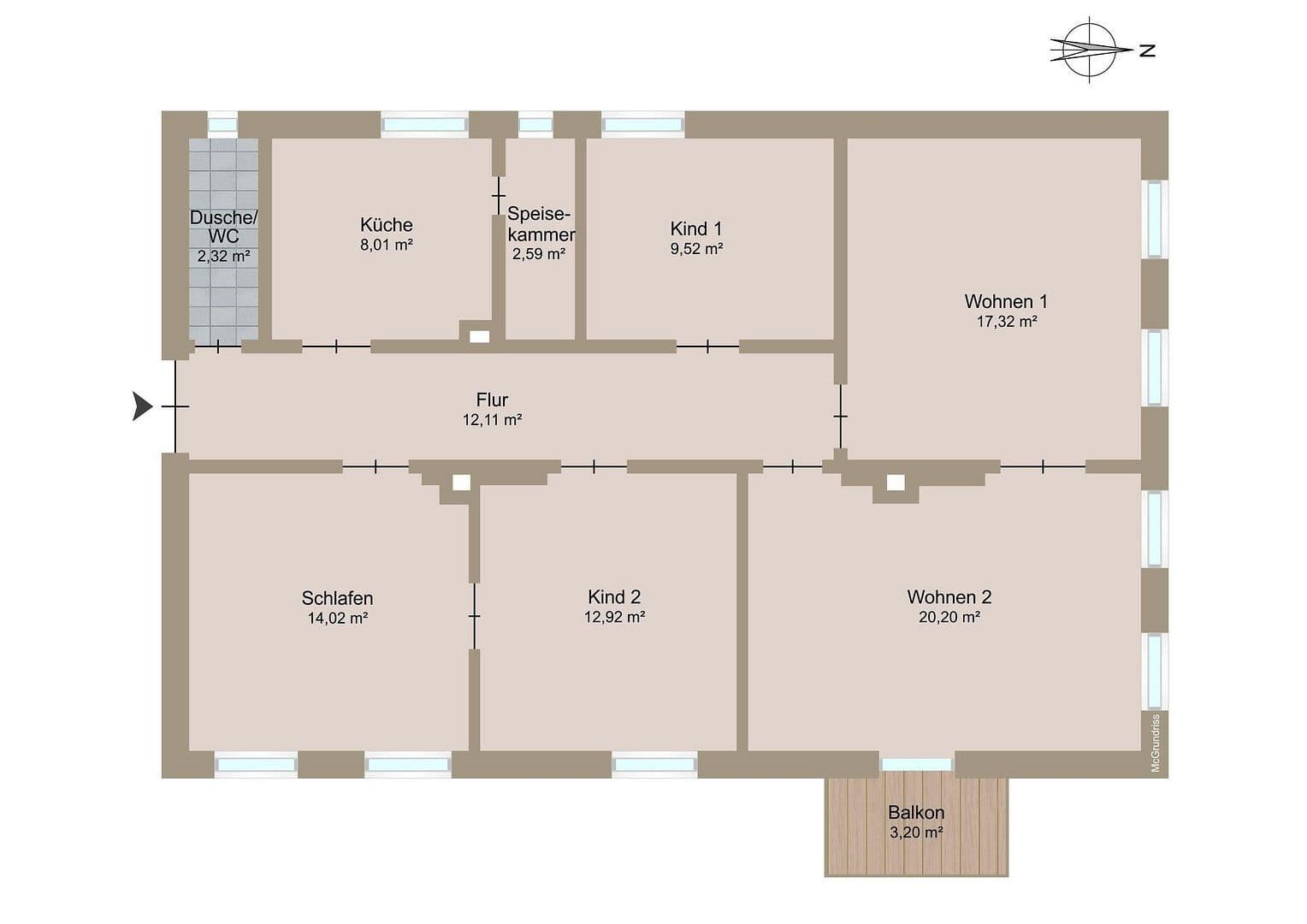
Madamenweg 173 Braunschweig Braunschweig Niedersachsen 38118MHD do minuty pěškyDiese helle 5-pokojový byt o přibližně 100 m² obytné plochy se nachází ve 2. patře půvabného rodinného domu z doby Gründerzeit v oblíbené západní části Braunschweigu. Výška stropu 3,60 m a zdobené stukkové prvky v obývacím a jídelním pokoji podtrhují historický charakter bytu. Plynové kotelové topení bylo obnoveno v roce 2021. Balkon zve k příjemnému posezení. K dispozici je také sklep, který poskytuje další úložné prostory. Rozložení pěti pokojů je ideální pro rodiny nebo pro osoby, které potřebují více místa pro koníčky či pracoviště. Byt také disponuje vestavěnou kuchyní. Aby měl novému majiteli prostor pro úplné přizpůsobení dle vlastních představ, byt se prodává v nezařizovaném stavu – nepotřený, nenatřený či netapetovaný. Koupelna může vyžadovat případnou rekonstrukci nebo zvětšení, například novým přerozdělením prostor koupelny, kuchyně a spižírna. Byt je nabízen k prodeji přímo od soukromého vlastníka bez provize. Prohlídky jsou možné po individuální domluvě.
Byt na adrese Madamenweg 173 se nachází uvnitř kruhové silnice a sousedí přímo s centrem města. Západní část Braunschweigu je živou čtvrtí s vysokou hustotou obyvatel a dobrou směsí rodin, mladých profesionálů a seniorů. Veřejná doprava je díky několika autobusovým linkám, které mají zastávku přímo před domem, velmi dobře dostupná. Obchody, lékaři, mateřská škola a školy jsou situovány v bezprostřední blízkosti. Okolí je přátelské a bezpečné s kombinací vícegeneračních i rodinných domů. Centrální poloha a výborná infrastruktura činí ze západní části kruhové oblasti atraktivní lokalitu pro různé skupiny obyvatel.
- Balkon
- Dubová parketa
- 3,60 m výška stropu, částečně se stukkováním
- Plynové kotelové topení z roku 2021 (Vailant atmoTEC exclusive VC 104/4-7A)
- Teplá voda pro kuchyň a koupelnu z průtokového ohřívače
- Izolační skla oken
V okolí nemovitosti najdete
Stále hledáte to pravé?
Nastavte si hlídacího psa. Nabídky vybrané na míru dostanete souhrnně 1× denně e-mailem. S Premium profilem máte k ruce hlídačů rovnou 5 a když se něco objeví, informují vás obratem.

















