
Pronájem bytu 3+1 • 72 m² bez realitkyJügesheimer Weg 31, , Hessen
Jügesheimer Weg 31, , HessenMHD 3 minuty pěšky • Výtah • ParkováníObjevte tento stylový 3-pokojový byt v podkroví exkluzivního rodinného domu, který má pouhých šest bytových jednotek. Zde se setkává kvalitní architektura s naprostým klidem, což vytváří harmonický životní styl. Celý dům patří jediné rodinné vlastnické skupině – což je zárukou pečlivé údržby a přátelského sousedství.
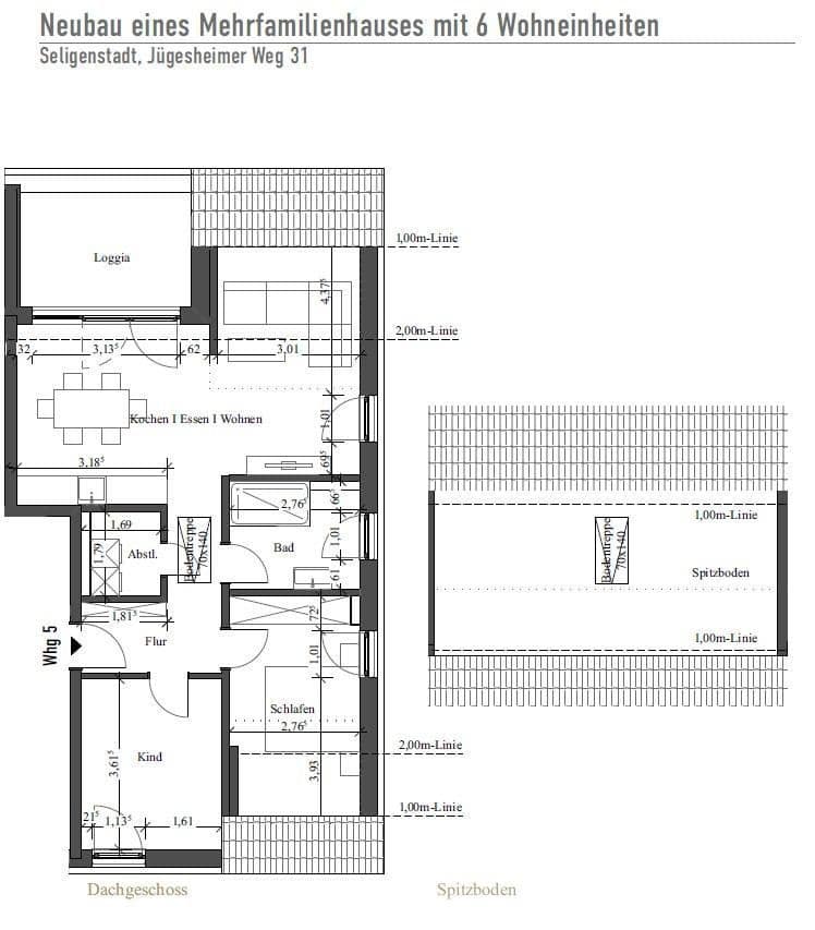
Srdcem bytu je:
Úchvatně útulný obytný a jídelní prostor s integrovanou otevřenou kuchyní – ideální pro pohodové večery, kreativní vaření i naprosté uvolnění. Široká okenní stěna loggie spolu s dalším střešním oknem a nástěnným oknem vytvářejí světlou a vzdušnou atmosféru. Slunečný západní balkon zve až do večerních hodin, aby den krásně dozněl.
Nemovitost se nachází v klidné slepé ulici v Seligenstadt Froschhausen. Přípojení na dálnici je ideální.
Autobusové linky 58 a OF-85 jsou dosažitelné pěšky.
V bezprostřední blízkosti najdete několik restaurací, kavárnu i lékaře. Dále je zde zelená a parková plocha, poštovní schránka, lékárna i kadeřnictví.
Vybavení bytu je moderní a promyšlené:
- Kvalitní vinylová podlaha v trendy dubovém designu
- Tepelné čerpadlo s funkcí chlazení – udržitelné a pohodlné
- Stylová koupelna s moderními armaturami
- Samostatné hostinské WC
- Prostorová sprcha (walk-in)
- Vana
- Praktická úložná místnost s prostorem pro pračku a sušičku
- V domě je výtah pro pohodlný přístup
- V případě potřeby lze pronajmout i druhé parkovací místo
- Satelitní příjem
- Glasový (optický) kabel
- Velký sklep o rozloze téměř 4 m² pro nájemce
- Uzamykatelné garáže na kola na pozemku, i pro elektrokola
- Služby domovníka jsou v ceně – o nic se nemusíte starat
Těšíme se na Váš zájem o byt. Abychom si mohli udělat lepší představu, žádáme Vás, aby Vaši poptávku doplnili několika slovy o sobě (například povolání, rodinná situace, počet osob, které se nastěhují, apod.). Tím rychleji posoudíme, zda byt odpovídá Vašim požadavkům.
Děkujeme Vám za Váš zájem!
V okolí nemovitosti najdete
Stále hledáte to pravé?
Nastavte si hlídacího psa. Nabídky vybrané na míru dostanete souhrnně 1× denně e-mailem. S Premium profilem máte k ruce hlídačů rovnou 5 a když se něco objeví, informují vás obratem.












