Prodej domu • 144 m² bez realitkyBremerhaven Klushof Bremen 27576
Bremerhaven Klushof Bremen 27576MHD 4 minuty pěškyTento řadový dům s 8 místnostmi nabízí vynikající základ pro kreativní koncepce na ploše přibližně 143,60 m², například pro:
- rodiny, které si přejí realizovat individuální dispozice dle vlastních představ,
- vícegenerační domácnosti s oddělenými zónami pro ústup a pracovní prostory,
- kombinaci bydlení a práce: flexibilně propojené prostory pro kancelář/studio,
- zájmovečné a řemeslnické činnosti, jež vyžadují dostatek místa pro dílnu a skladovací prostory.
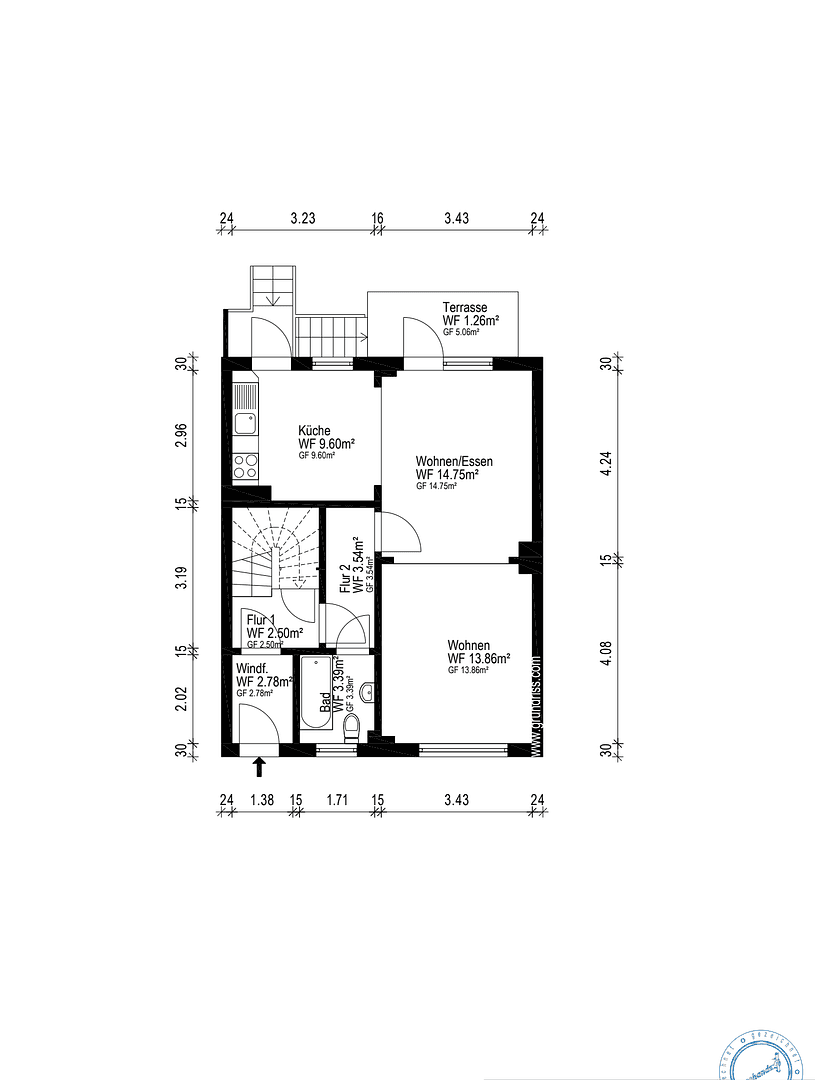
Představte si moderní zážitek z bydlení, kdy se kuchyň, obývací a jídelní prostor v přízemí o rozloze 55,38 m² plynule spojují a poskytují přímý vstup do zahrady včetně terasy.
Patro s rozlohou 51,60 m² umožňuje vytvořit pohodlné ústupové prostory pro jednotlivé členy rodiny.
V zrekonstruovaném půdním prostoru o rozloze 41,55 m² si můžete vytvořit další obytný prostor s vlastním WC – ideální pro flexibilní využití jako dětský pokoj, pracovní kout či studio.
Sklep o rozloze 49,70 m² nabízí spoustu úložného prostoru vhodného pro pračku/sušičku.
Řadový dům se nachází v klidné a žádané lokalitě bremerhavenské čtvrti Lehe. Okolí zaujme zelenými zahradami a příjemným sousedstvím. Obchody potřebné pro každodenní život, školy a školky jsou snadno dostupné. Vynikající dostupnost prostřednictvím veřejné dopravy a blízkost k silnicím B 212 a A 27 zajišťují optimální spojení. Možnosti pro volnočasové aktivity a odpočinek podél Weseru, stejně jako kulturní vyžití a centrum města, jsou dosažitelné během krátké doby.
Využijte příležitost proměnit skutečný klenot v Bremerhavenu – Lehe ve své osobní mistrovské dílo. Potřeba rekonstrukce zde nepředstavuje nejistotu, ale spíše výzvu k tvořivosti, odvaze a sebeurčení.
Prosím, žádné dotazy od realitních makléřů!
Parametry nemovitosti
| Stáří | Nad 50 let |
|---|---|
| Stav | Před rekonstrukcí |
| PENB | F - Velmi nehospodárná |
| Plocha pozemku | 320 m² |
| Cena za jednotku | 1 388 € / m2 |
| Dostupné od | 28. 1. 2026 |
|---|---|
| Číslo inzerátu | 982289 |
| Užitná plocha | 144 m² |
| Celkem podlaží | 3 |
Co tato nemovitost nabízí?
| Balkón | |
| Terasa |
| Sklep | |
| MHD 4 minuty pěšky |
V okolí nemovitosti najdete
Stále hledáte to pravé?
Nastavte si hlídacího psa. Nabídky vybrané na míru dostanete souhrnně 1× denně e-mailem. S Premium profilem máte k ruce hlídačů rovnou 5 a když se něco objeví, informují vás obratem.





