Prodej domu • 613 m² bez realitky, Hessen
, HessenMHD 1 minuta pěšky • Parkování • GarážToto rodinný dům z roku 1960 je určen především pro realitní investory, kteří chtějí bezpečně, do hmotné hodnoty a bez výrazného operačního zásahu investovat svůj kapitál.
Nemovitost prošla v letech 2023/2024 komplexní energetickou rekonfigurací na standard KfW-Effizienzhaus 70 EE a dnes představuje hotovou investici s osmi plně pronajatými obytnými jednotkami, stabilní strukturou nájemníků a dlouhodobě udržitelným, spolehlivým cashflow. Všechny nákladné obory – střecha, fasáda, okna, topení, tepelná izolace a požární ochrana – již byly modernizovány dle aktuálních technických standardů, což zaručuje zachování hodnoty, takže se důraz klade čisto na výnos.
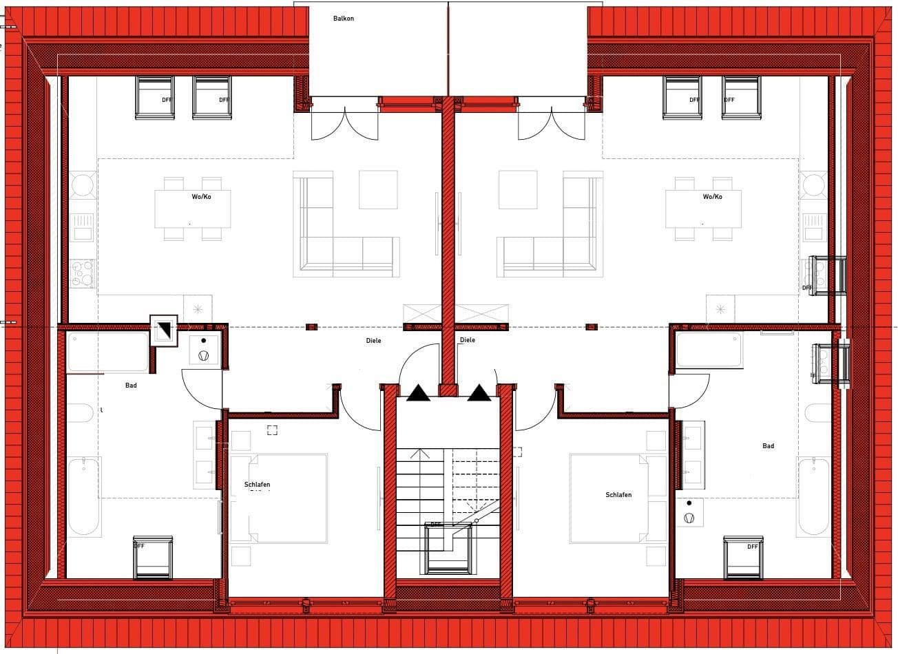
S přibližně 613 m² obytné plochy generuje objekt roční čisté nájemné příjmy ve výši 83 532 € (skutečnost = plánovaná hodnota), což představuje výnos 4,07 %. Nemovitost tak nabízí vzácnou kombinaci bezpečnosti, kvality a tržní atraktivity. V rámci provedených opatření byl navíc zrealizován půdorysní podkrovní přístav s dvěma moderními byty (podlahové topení, střešní terasy, prostorné koupelny s dostatkem denního světla), což dále zvyšuje udržitelnost příjmů z nájmu. Garáže a venkovní parkovací místa, rekonstruované venkovní prostory a klidná obytná lokalita s pěší dostupností na S-Bahn (S1 Rodgau-Weiskirchen) zvyšují stabilní poptávku a podtrhují dlouhodobou pronajímatelnost. Dům sdílí pozemek s rovněž zrekonstruovaným „sesterským“ domem a má ideálně přidělený podíl na pozemku ve výši 680 m².
Na prodej je jeden ze dvou domů, které jsou stále ideálně dělené. Obzvláště pohodlné pro kapitálové investory: současný vlastník si ponechává sousední dům a po vzájemné dohodě může i nadále převzít kompletní správu. Volitelně lze však zakoupit i druhý dům.
Jedná se o investici pro kupce s vlastním kapitálem, kteří ocení klid a hledají hodnotnou nemovitost, která již dnes dodržuje to, co jiní teprve slibují!
Rodgau, s přibližně 45 000 obyvateli, je největším městem okresu Offenbach a leží v hospodářsky silném regionu Rhein-Main, jihovýchodně od Offenbach am Main. Rozmanitá firemní struktura, přes 9 000 pracovních míst a vynikající dopravní dostupnost přes dálnici A3, silnici B45, S-Bahn (S1) a blízké letiště ve Frankfurtu podtrhují atraktivitu lokality.
+ Klidná obytná lokalita – ulice pro místní obyvatele
+ Dobrá dopravní dostupnost (15 minut do Frankfurtu – A3)
+ Nádraží S-Bahn Weiskirchen (S1) je pohodlně dostupné pěšky
+ Základní služby a obchody jsou v docházkové vzdálenosti
+ Školy a školky v bezprostřední blízkosti
+ Stabilní situace na trhu práce díky blízkosti Frankfurtu a Offenbachu
+ Různé možnosti volnočasových a rekreačních aktivit v okolí
V případě dalšího zájmu Vám rádi poskytneme další podklady nemovitosti, jako je rozpis nájmů, půdorysy apod.
Parametry nemovitosti
| Stáří | Nad 50 let |
|---|---|
| Číslo inzerátu | 982311 |
| Užitná plocha | 613 m² |
| Celkem podlaží | 4 |
| Stav | Po rekonstrukci |
|---|---|
| PENB | C - Úsporná |
| Plocha pozemku | 680 m² |
| Cena za jednotku | 3 344 € / m2 |
Co tato nemovitost nabízí?
| Sklep | |
| MHD 1 minuta pěšky |
| Garáž | |
| Parkování |
V okolí nemovitosti najdete
Stále hledáte to pravé?
Nastavte si hlídacího psa. Nabídky vybrané na míru dostanete souhrnně 1× denně e-mailem. S Premium profilem máte k ruce hlídačů rovnou 5 a když se něco objeví, informují vás obratem.




















