
Pronájem nebytového prostoru • 390 m² bez realitkyStockumer Straße 28, , Severní Porýní-Vestfálsko
Stockumer Straße 28, , Severní Porýní-VestfálskoMHD 3 minuty pěškyTato vysoce kvalitní skladová plocha se nachází v budově Intechlo Building B14, zavedené a reprezentativní obchodní nemovitosti v technologickém parku ve Wittenu. Budova zaujme svou masivní ocel–betónovou konstrukcí, profesionální infrastrukturou a vysokou úrovní bezpečnosti.
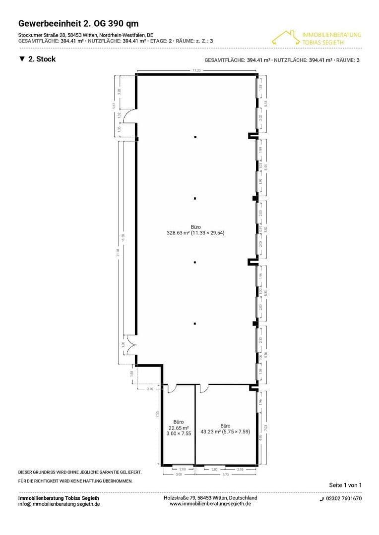
Skladová jednotka o rozloze přibližně 390 m² ve 2. patře nabízí optimální podmínky pro firmy, které si cení bezpečnosti, čistoty, dostupnosti a flexibility. Díky prostornému řezu lze plochu individuálně přizpůsobit různým skladovacím konceptům a využít ji naplno.
Dodávky se provádějí pohodlně pomocí nákladového výtahu, alternativně je k dispozici moderní osobní výtah. Vstup je přizpůsoben osobám se sníženou pohyblivostí. Současná kobercová podlaha může být bez problémů odstraněna a pod ní se nachází hladká, pevná betonová podlaha, která je ideální pro skladové a logistické účely.
Budova Intechlo Building B14 se nachází ve vynikající lokalitě u křižovatky dálnic Bochum/Dortmund/Hagen, což zaručuje rychlou dostupnost pro zákazníky a zaměstnance. Vjezd na dálnici A44 směřující do Bochumu a Dortmundu je vzdálen jen několik minut. Stanice S-Bahn Witten-Annen je dosažitelná pěšky za přibližně 3–5 minut a je propojena hlavní linkou S33, která spojuje sousední města Bochum, Dortmund a Hagen.
Toto optimální spojení činí z nemovitosti ideální lokalitu pro firmy, které potřebují rychlou a snadnou dostupnost.
Vybavení a přidaná hodnota
Bezpečnost a služby
• 24hodinová kontrola přístupu
• bezpečnostní a dozorčí služba
• příjem pošty a řízení návštěv
• údržbářský servis
• udržované, reprezentativní prostředí
Technika a komfort
• volitelně vytápěná plocha (prostřednictvím centrálního plynového topení)
• kvalitní osvětlení
• datová/počítačová kabeláž
• možnost optického internetu
• vestavěná kuchyň k dispozici
• toalety pro ženy, muže a osoby se zdravotním postižením
• vícenásobný týdenní úklid společných prostor
Udržitelnost
• fotovoltaická instalace na střeše
• energeticky efektivní technologie budovy
Prohlídky
Pro další informace nebo sjednání prohlídky nás neváhejte kontaktovat telefonicky nebo nám zašlete dotaz.
Doplňující informace
Energetický průkaz je při prohlídce k dispozici.
Všechny údaje jsou uvedeny dle nejlepšího vědomí. Případné chyby a mezitímní pronájem jsou vyhrazeny. Tento expozes je předběžná informace, právní základ tvoří pouze uzavřená nájemní smlouva. Za správnost a úplnost se neodpovídá.
Impresum
Údaje podle § 5 TMG
Realitní poradenství Tobias Segieth
Holzstraße 79
58453 Witten
Telefon: +49 2302 7601670
E-mail: info@immobilienberatung-segieth.de
Vlastník:
Tobias Segieth
Právní forma:
Živnost
Dozorčí orgán:
Městský řádní úřad Witten
Marktstraße 16
58452 Witten
https://www.witten.de/rathaus-service/verwaltung/aemter-dezernate/dezernat-3/ordnungsamt/
Povolení podle § 34c Gewerbeordnung uděleno:
Ennepe-Ruhr-Kreis
Hauptstraße 92
58332 Schwelm
Odborný název a profesní předpisy
Odborný název:
Realitní makléř
Příslušná komora:
IHK Mittleres Ruhrgebiet
Ostring 30-32
44787 Bochum
Uděleno v:
Německo
EU řešení sporů
Evropská komise poskytuje platformu pro online řešení sporů (OS): https://ec.europa.eu/consumers/odr/. Naši e-mailovou adresu naleznete výše v impresu.
Řešení spotřebitelských sporů/univerzální řešitelství sporů
Nejsme povinni ani ochotni účastnit se řešení sporů před spotřebitelským orgánem.
Centrální kontaktní místo podle Digital Services Act – DSA (Nařízení (EU) 2022/265)
Naše centrální kontaktní místo pro uživatele a úřady podle článků 11 a 12 DSA je dosažitelné následovně:
Telefon: +49 2302 7601670
E-mail: info@immobilienberatung-segieth.de
Parametry nemovitosti
| Stáří | Nad 50 let |
|---|---|
| Stav | Po rekonstrukci |
| Číslo inzerátu | 982456 |
| Cena za jednotku | 5 € / m2 |
| Dostupné od | 28. 1. 2026 |
|---|---|
| Podlaží | 2. podlaží z 2 |
| Plocha nebytového prostoru | 390 m² |
Co tato nemovitost nabízí?
| MHD 3 minuty pěšky |
V okolí nemovitosti najdete
Stále hledáte to pravé?
Nastavte si hlídacího psa. Nabídky vybrané na míru dostanete souhrnně 1× denně e-mailem. S Premium profilem máte k ruce hlídačů rovnou 5 a když se něco objeví, informují vás obratem.











